29 Deerview Dr, Ingleside, Ontario K8V 5P4
Contact us about this property
Highlights
Estimated valueThis is the price Wahi expects this property to sell for.
The calculation is powered by our Instant Home Value Estimate, which uses current market and property price trends to estimate your home’s value with a 90% accuracy rate.Not available
Price/Sqft$513/sqft
Monthly cost
Open Calculator
Description
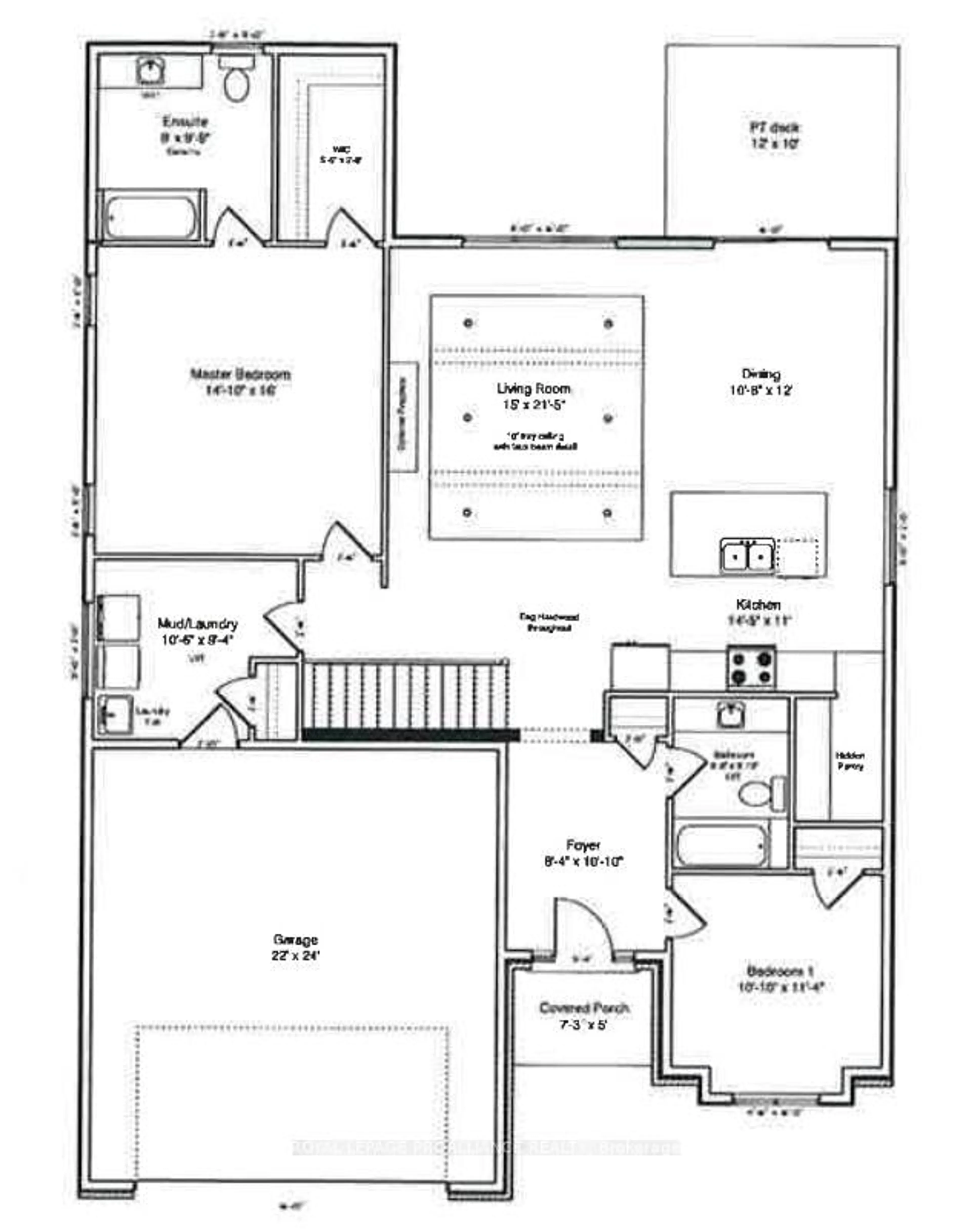
This beautifully crafted custom home by Van Huizen Homes, located in the charming Woodland Heights community, combines contemporary style with practical living. The main floor offers 2 comfortable bedrooms, including a primary suite with a large private ensuite and a spacious walk-in closet. A second bathroom on the main floor adds extra convenience. The open concept living area is perfect for both relaxing and entertaining, with a striking tray ceiling in the living room that adds a touch of elegance. the kitchen is equipped with a generous walk-in pantry, providing plenty of storage space for all your culinary needs. Convenience is key with a mud and laundry room that connects directly to the attached two-car garage, offering easy access to the home. Relax and enjoy the outdoors with a large covered front porch and a rear deck measuring 12' x 10', ideal for dining or lounging. If you're looking for more space, the basement offers the option to be finished at an additional cost, adding two extra bedrooms, a third bathroom, and a recreation room for expanding your living space to suit your needs. This exquisite home does qualify for the new HST Rebate, with an after rebate value of $799,557.52!! Stop by the model home at 37 Deerview Drive to see how Van Huizen Homes can help you customize your ideal home!
Property Details
Interior
Features
Main Floor
Foyer
2.56 x 3.08Primary
4.3 x 4.88Living
4.57 x 6.552nd Br
3.08 x 3.47Exterior
Features
Parking
Garage spaces 2
Garage type Attached
Other parking spaces 4
Total parking spaces 6
Property History
3



















