Contact us about this property
Highlights
Estimated valueThis is the price Wahi expects this property to sell for.
The calculation is powered by our Instant Home Value Estimate, which uses current market and property price trends to estimate your home’s value with a 90% accuracy rate.Not available
Price/Sqft$590/sqft
Monthly cost
Open Calculator
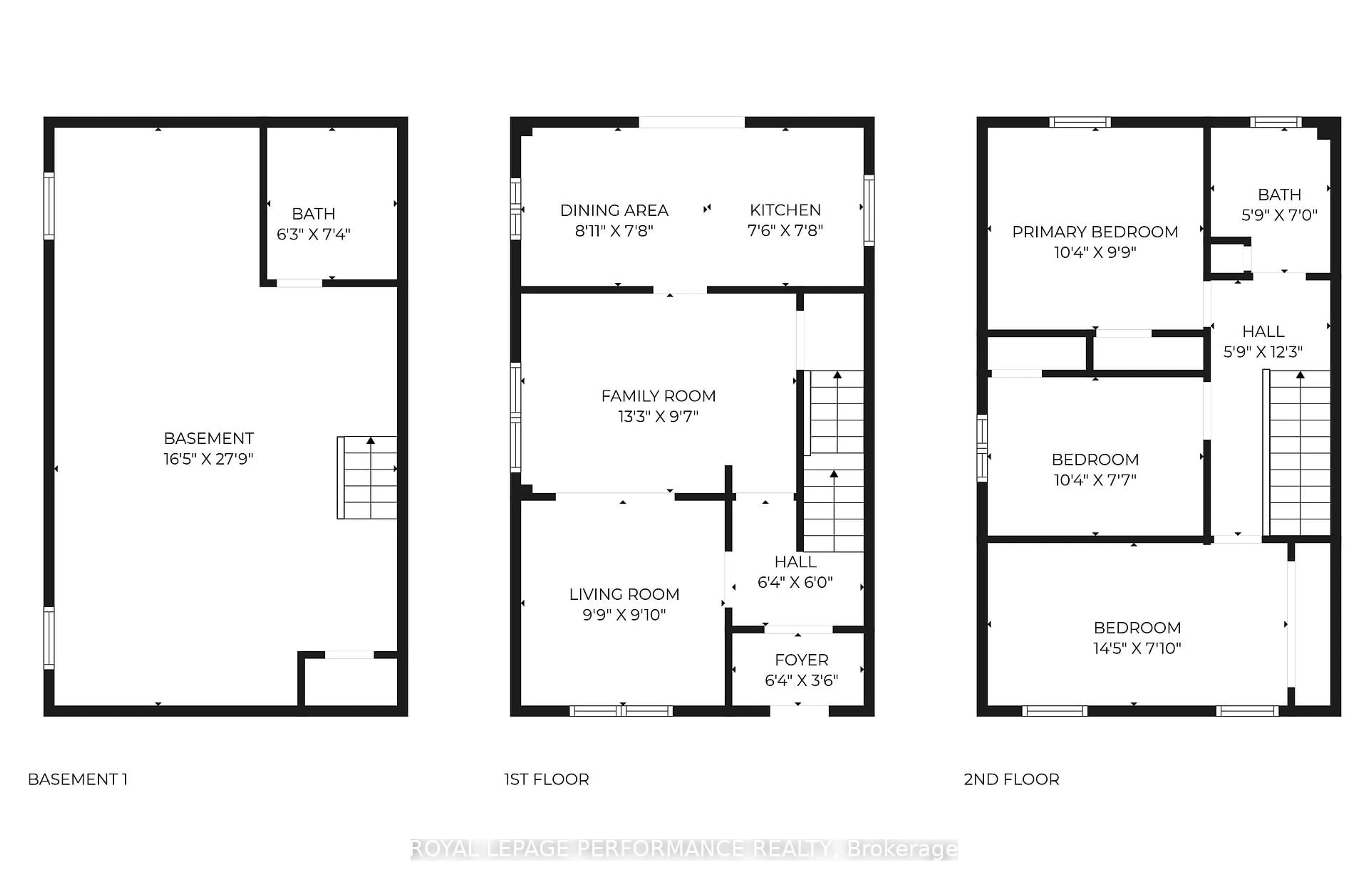
Description
Welcome to this meticulously maintained detached home in the heart of Westboro. Offering three spacious bedrooms and two full bathrooms, this home combines comfort, functionality, and location. Beautiful hardwood floors flow throughout the main living areas, while the western exposure fills the home with warm natural light. Enjoy outdoor living on the large rear deck, perfect for relaxing or entertaining. Conveniently located on a bus route and close to all the amenities Westboro is known for, this home is an exceptional opportunity for families, professionals, or anyone seeking a well-cared-for property in a sought-after neighbourhood.
Upcoming Open House
Property Details
Interior
Features
Main Floor
Living
3.22 x 2.97Dining
3.22 x 2.97Kitchen
2.56 x 5.3Foyer
1.93 x 2.36Exterior
Features
Parking
Garage spaces -
Garage type -
Total parking spaces 3
Property History
38
























