1555 HIGHBURY Ave #20, London East, Ontario N5Y 5R2
Contact us about this property
Highlights
Estimated valueThis is the price Wahi expects this property to sell for.
The calculation is powered by our Instant Home Value Estimate, which uses current market and property price trends to estimate your home’s value with a 90% accuracy rate.Not available
Price/Sqft$394/sqft
Monthly cost
Open Calculator
Description
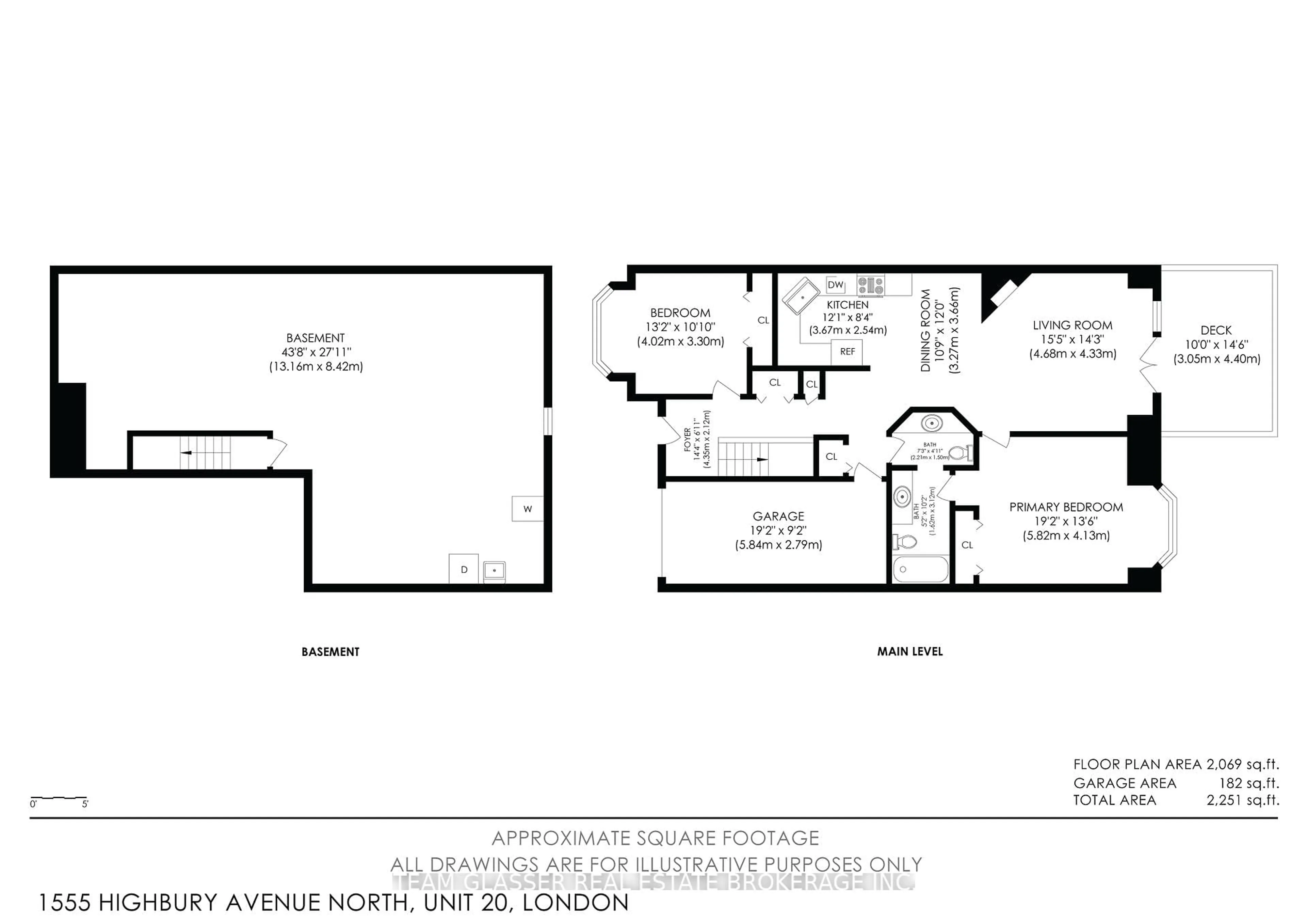
Tucked into one of North East London's most sought after communities, this beautifully maintained 2 bedroom, 1.5 bathroom bungalow condo offers easy living without compromising on space or style. From the moment you step inside, natural light and an open layout set the tone, with a kitchen featuring ample cabinetry, hard surface countertops, stainless steel appliances, and neutral finishes that flow seamlessly into the main living area anchored by a cozy fireplace. The primary bedroom is set at the rear of the home with a large closet and ensuite, while the second bedroom offers flexibility for guests or a home office. Step outside to a private patio, perfect for morning coffee, summer evenings, or unwinding at the end of the day. Main floor laundry hookups add convenience, while the location close to parks, shopping, and major routes makes this a smart choice for low maintenance living in a highly desirable area. New furnace 2023. Move in ready and easy to enjoy.
Property Details
Interior
Features
Main Floor
Foyer
4.35 x 2.12Living
4.68 x 4.33Kitchen
3.67 x 2.54Bathroom
2.21 x 1.5Exterior
Parking
Garage spaces 1
Garage type Attached
Other parking spaces 1
Total parking spaces 2
Condo Details
Inclusions
Property History
47























