26 Redwood Dr, Belleville, Ontario K8N 0K4
Contact us about this property
Highlights
Estimated valueThis is the price Wahi expects this property to sell for.
The calculation is powered by our Instant Home Value Estimate, which uses current market and property price trends to estimate your home’s value with a 90% accuracy rate.Not available
Price/Sqft$571/sqft
Monthly cost
Open Calculator
Description
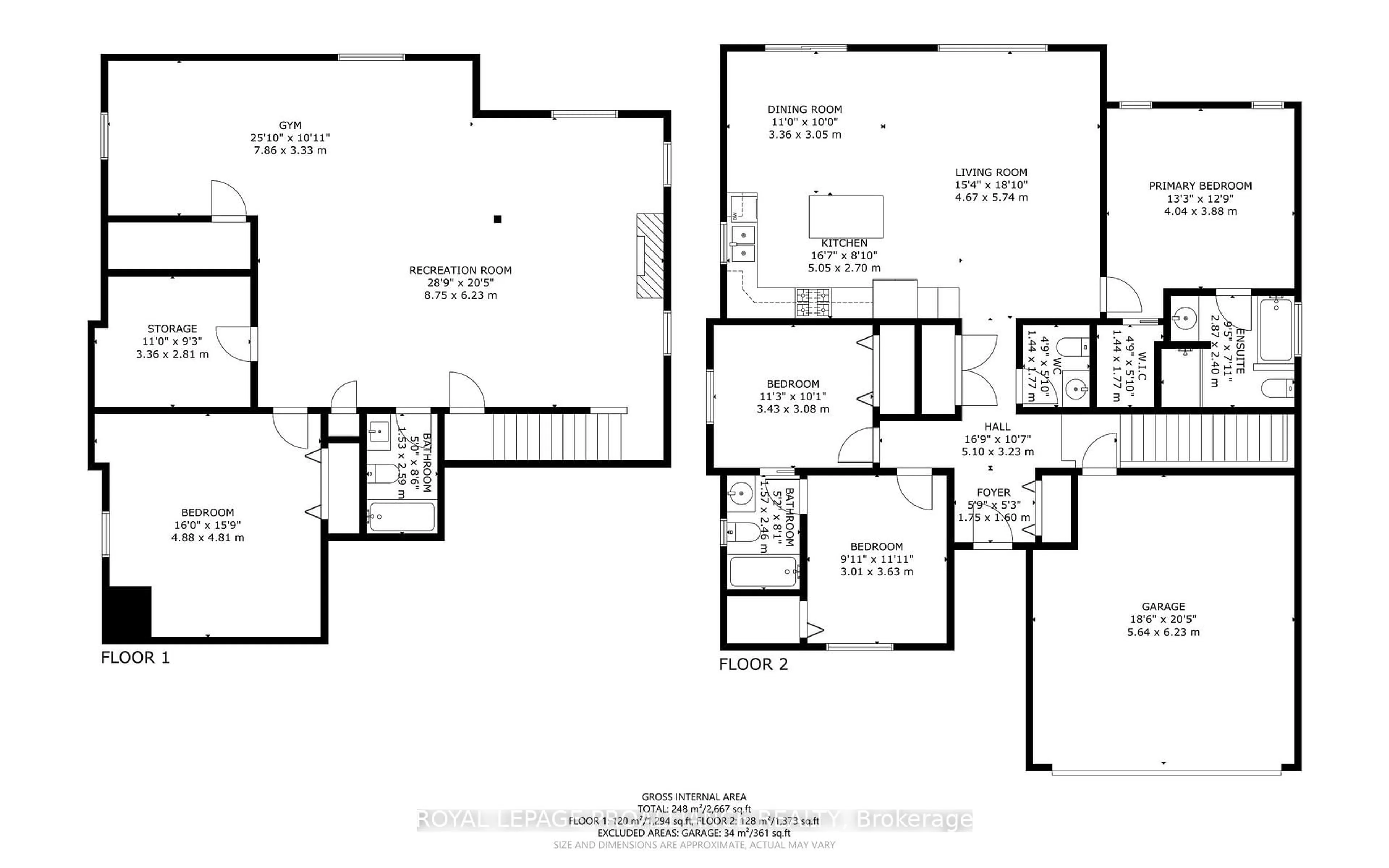
If you're looking to live in a subdivision, this one truly takes the cake for style, space, and location. Adjacent to and backing onto green space in the popular Heritage Park community, this beautiful bungalow offers a smart, functional floor plan with no compromises. Ideal for couples, families, or retirees, the home features a bright, open-concept main living area with 9' ceilings and plenty of natural light. The primary bedroom suite is privately tucked away at the back of the home, overlooking the park and your professionally landscaped yard. Main floor laundry adds everyday convenience, along with a powder room thoughtfully located near both the foyer and garage entrance. Two additional bedrooms on the main level share a well-designed Jack-and-Jill full bath. The fully finished lower level is impressively bright with large windows and includes a spacious recreation/family room with a cozy gas fireplace, a full bedroom and bathroom, and room to add another bedroom if desired. Outside, enjoy landscaped front and back yards, a large deck, hot tub, fully fenced yard, and gate access directly to the green space - perfect for relaxing evenings and crisp winter nights alike. Located just minutes to shopping, schools, trails, and Quinte Sports & Wellness Centre, and quick access to Highway 401! Heritage Park is known for its quiet streets, walkable green spaces, and proximity to all Belleville amenities. Fall in love with city living in a setting that still feels peaceful and connected to nature.
Upcoming Open House
Property Details
Interior
Features
Lower Floor
Family
8.75 x 6.23Gas Fireplace
4th Br
4.88 x 4.81Rec
7.86 x 3.33Bathroom
2.59 x 1.534 Pc Bath
Exterior
Features
Parking
Garage spaces 2
Garage type Attached
Other parking spaces 2
Total parking spaces 4
Property History
50






