395 Bloor St #1603, Toronto, Ontario M4W 0B4
Contact us about this property
Highlights
Estimated valueThis is the price Wahi expects this property to sell for.
The calculation is powered by our Instant Home Value Estimate, which uses current market and property price trends to estimate your home’s value with a 90% accuracy rate.Not available
Price/Sqft$420/sqft
Monthly cost
Open Calculator
Description
Welcome to this beautiful and luxurious Rosedale On Bloor Condos your dream home or an investment located at Bloor St & Sherbourne St, Toronto. Open Concept Layout with stainless steel appliances, quartz countertops, Upgrade with smooth ceilings and modern kitchen backsplash. Flooring throughout. Rogers Ignite high-speed internet, Enjoy a Large Bedroom with Large Window, Amenities including brand new indoor pool, Gym, Party Room and More. Outdoor Terrace with BBQ/Lounge Area, 24 hrs concierge. 1 Min Walk To Sherborne Subway Station And 10 Mins Walk To Yonge & Bloor. Steps Away From Yorkville With High End Boutique Shops And World Renounced Rest/Bars
Property Details
Interior
Features
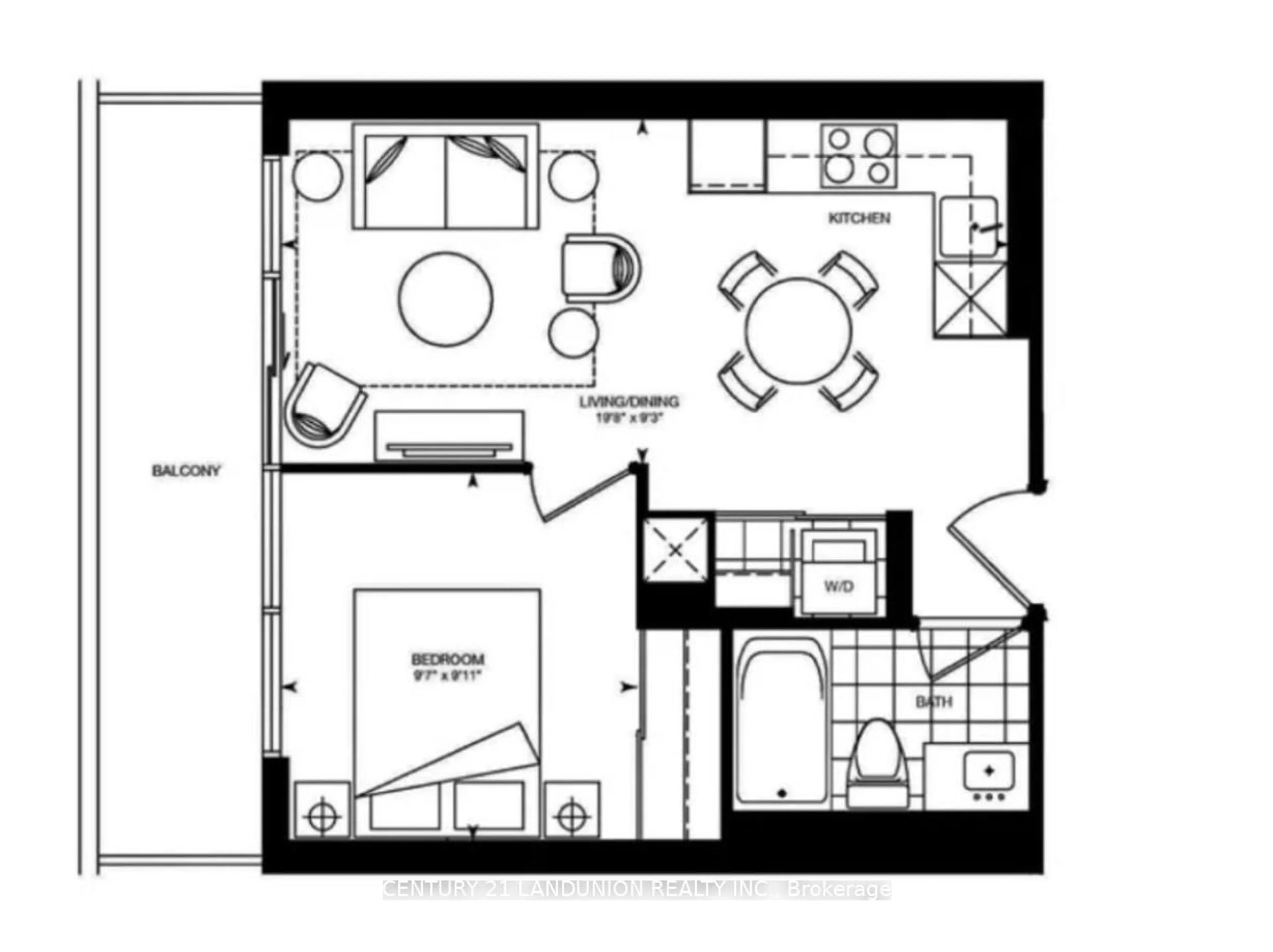
Main Floor
Living
6.0 x 3.13Laminate / Open Concept / W/O To Balcony
Dining
6.0 x 3.13Combined W/Dining / Laminate
Kitchen
6.0 x 3.13Combined W/Dining / Stainless Steel Appl / Quartz Counter
Br
2.93 x 3.02Closet / Laminate / Large Window
Exterior
Features
Condo Details
Inclusions
Property History
30

























