Contact us about this property
Highlights
Estimated valueThis is the price Wahi expects this property to sell for.
The calculation is powered by our Instant Home Value Estimate, which uses current market and property price trends to estimate your home’s value with a 90% accuracy rate.Not available
Price/Sqft$1,739/sqft
Monthly cost
Open Calculator
Description
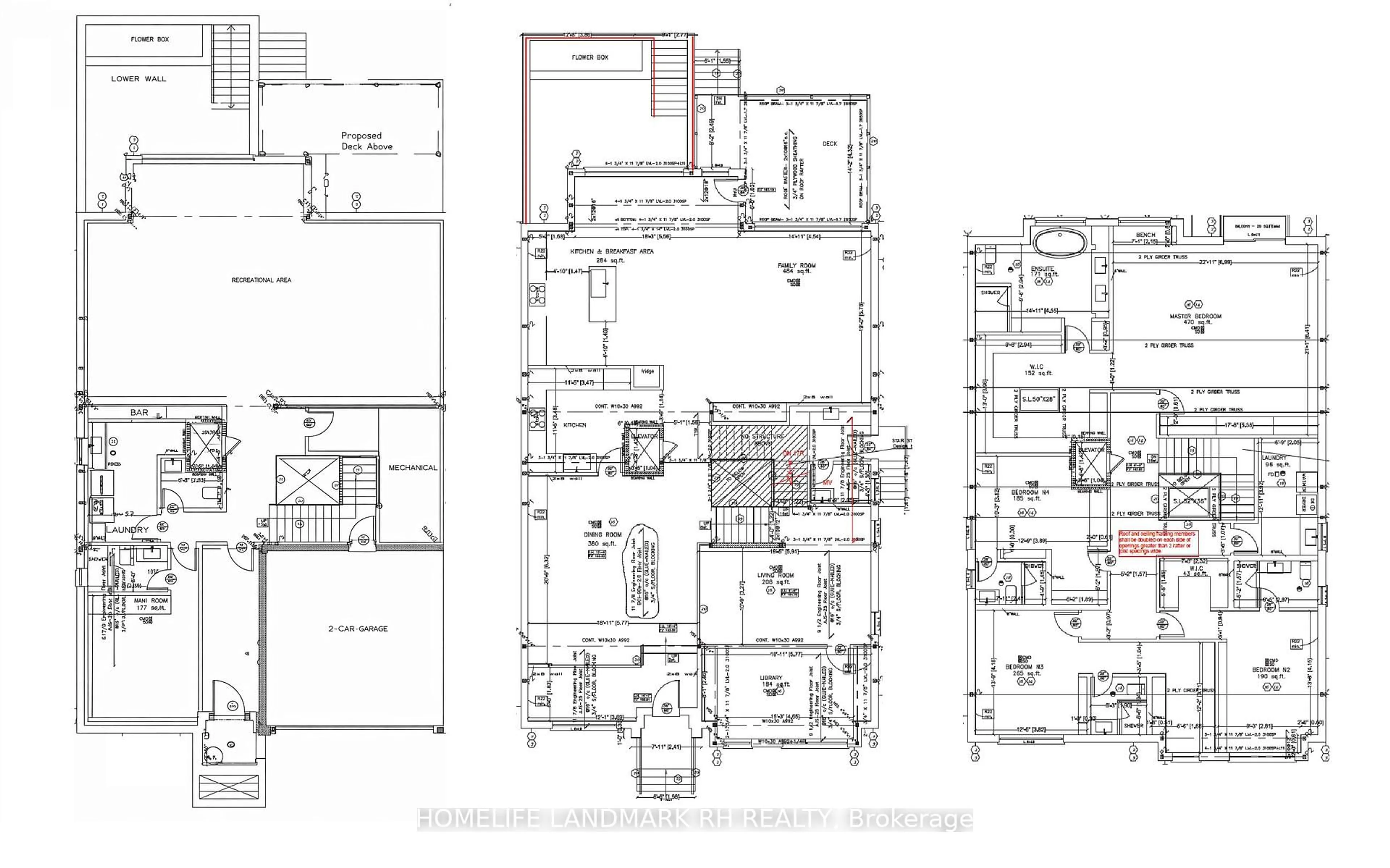
Detached Bungalow In High Demand Location In North York - Willowdale! Build Your Dream Home @ 50 X 155 Feet Large Lot. Building Permit Ready With Drawing: 10' On Main & Bsmt , 9' On The 2nd Floor. Steps To Park, School & Public Transit. Close To Yonge, Sheppard & Finch, Civic Centre & All Amenities. Good For End User & Investor. ** Drawings Provided By Seller, Just For Reference** ** High Ranking Earl Haig Secondary School ** Steps To Park & Public Transit. Close To Subway Station, Shopping, Library & Restaurants. Mins To Hospital, Hwy401 & 404...
Property Details
Interior
Features
Main Floor
Kitchen
3.27 x 3.15hardwood floor / Breakfast Area / Walk Through
Living
4.83 x 3.45hardwood floor / Separate Rm / South View
Dining
3.32 x 3.15hardwood floor / W/O To Deck / Separate Rm
Exterior
Features
Parking
Garage spaces 1
Garage type Attached
Other parking spaces 3
Total parking spaces 4
Property History
15
























