3 EXECUTIVE DRIVE, Hampton, New Brunswick E5N5J7
Contact us about this property
Highlights
Estimated valueThis is the price Wahi expects this property to sell for.
The calculation is powered by our Instant Home Value Estimate, which uses current market and property price trends to estimate your home’s value with a 90% accuracy rate.Not available
Price/Sqft$182/sqft
Monthly cost
Open Calculator
Description
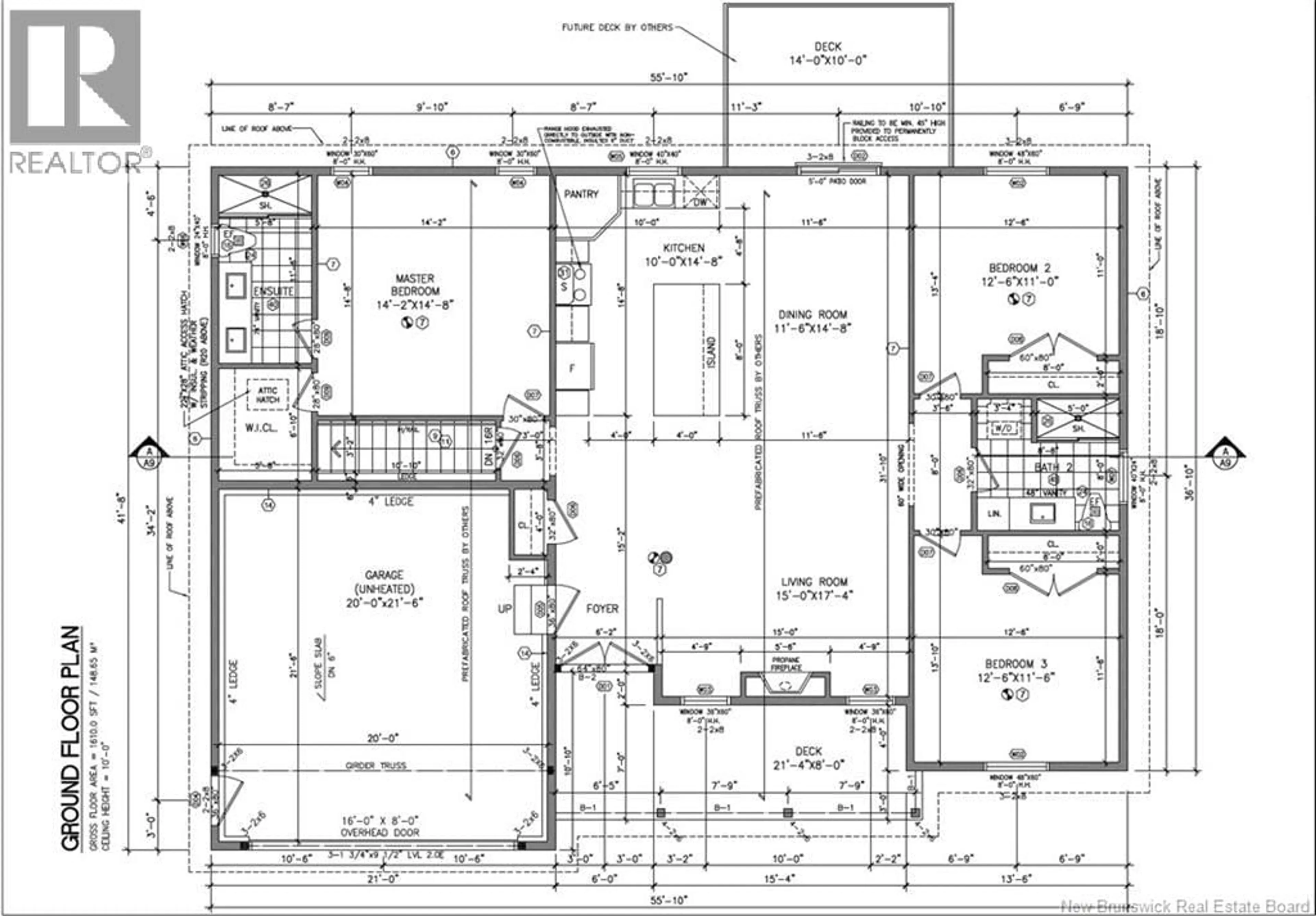
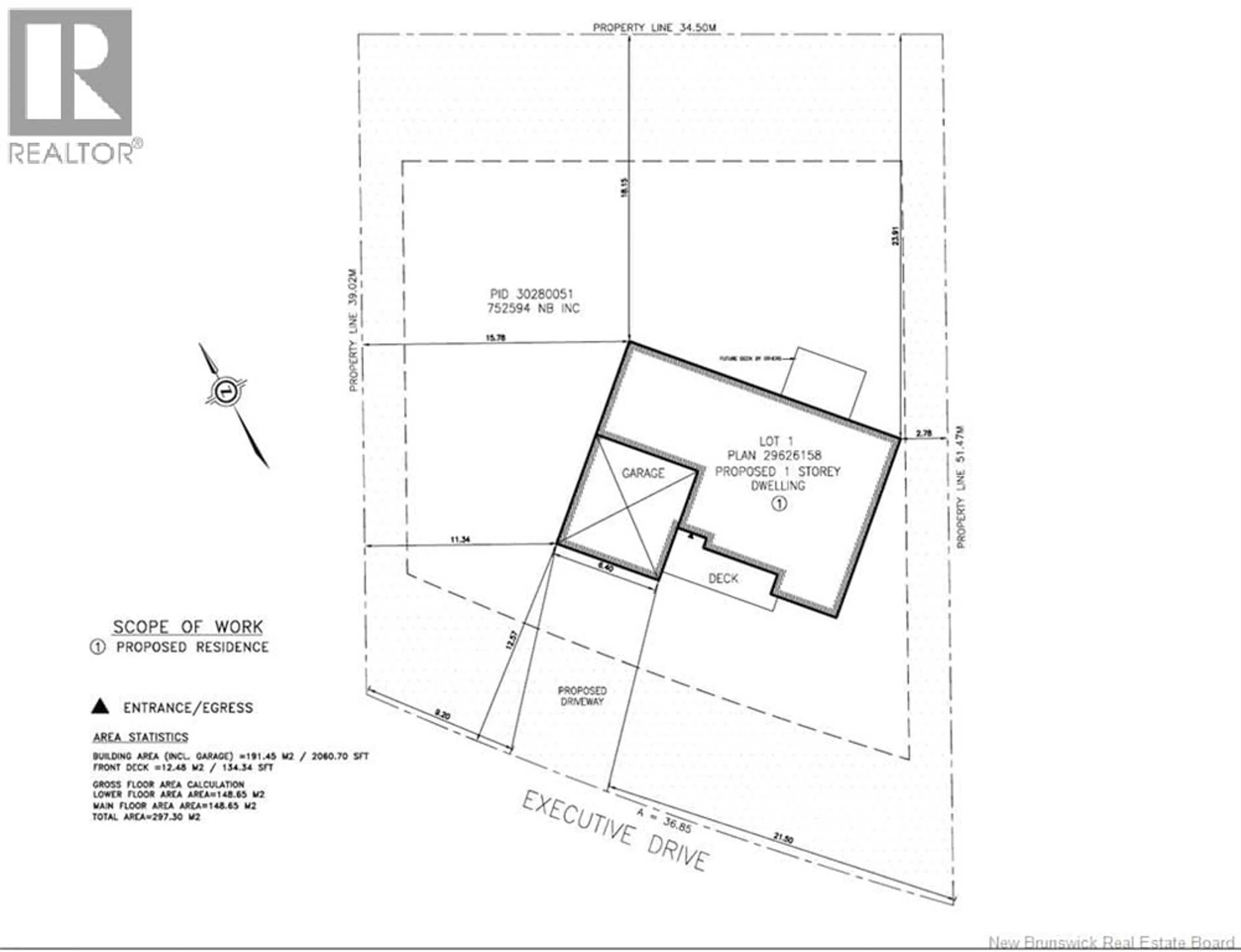
Beautiful new construction in the heart of Hampton, offering modern style, quality craftsmanship, and great flexibility for todays families. With the foundation and framing complete, the home will be ready in a few months, and early buyers may still select some finishes. The main level features approx. over 1,600 sq. ft. of bright, open-concept living with 10 ft ceilings, engineered hardwood floors, a stylish fireplace, and a modern kitchen with quartz countertops, walk-in pantry, and sleek cabinetry. The layout includes a spacious primary bedroom with walk-in closet and ensuite, plus two additional bedrooms and a full bath, ideal for families or those seeking one-level living. The fully finished lower level adds another approx. over 1,600 sq. ft. with 9 ft ceilings, including two bedrooms (one non-conforming), a large rec room, and a finished walkout in-law suite with its own bathroom and kitchenette, perfect for extended family or potential rental income. A two-car garage, paved driveway, quality exterior finishes, and a 10-Year Atlantic Home Warranty complete this impressive package. A rare chance to own a thoughtfully designed new home in one of Hamptons most welcoming communities. All measurements to be verified by the buyer. HST rebate to be assigned to the builder. (id:39198)
Property Details
Interior
Features
Basement Floor
Bedroom
9'8'' x 12'4''Bedroom
10'10'' x 16'4''Property History
12





