508 - 3200 CORVETTE WAY, Richmond, British Columbia V6X0T8
Contact us about this property
Highlights
Estimated valueThis is the price Wahi expects this property to sell for.
The calculation is powered by our Instant Home Value Estimate, which uses current market and property price trends to estimate your home’s value with a 90% accuracy rate.Not available
Price/Sqft$858/sqft
Monthly cost
Open Calculator
Description
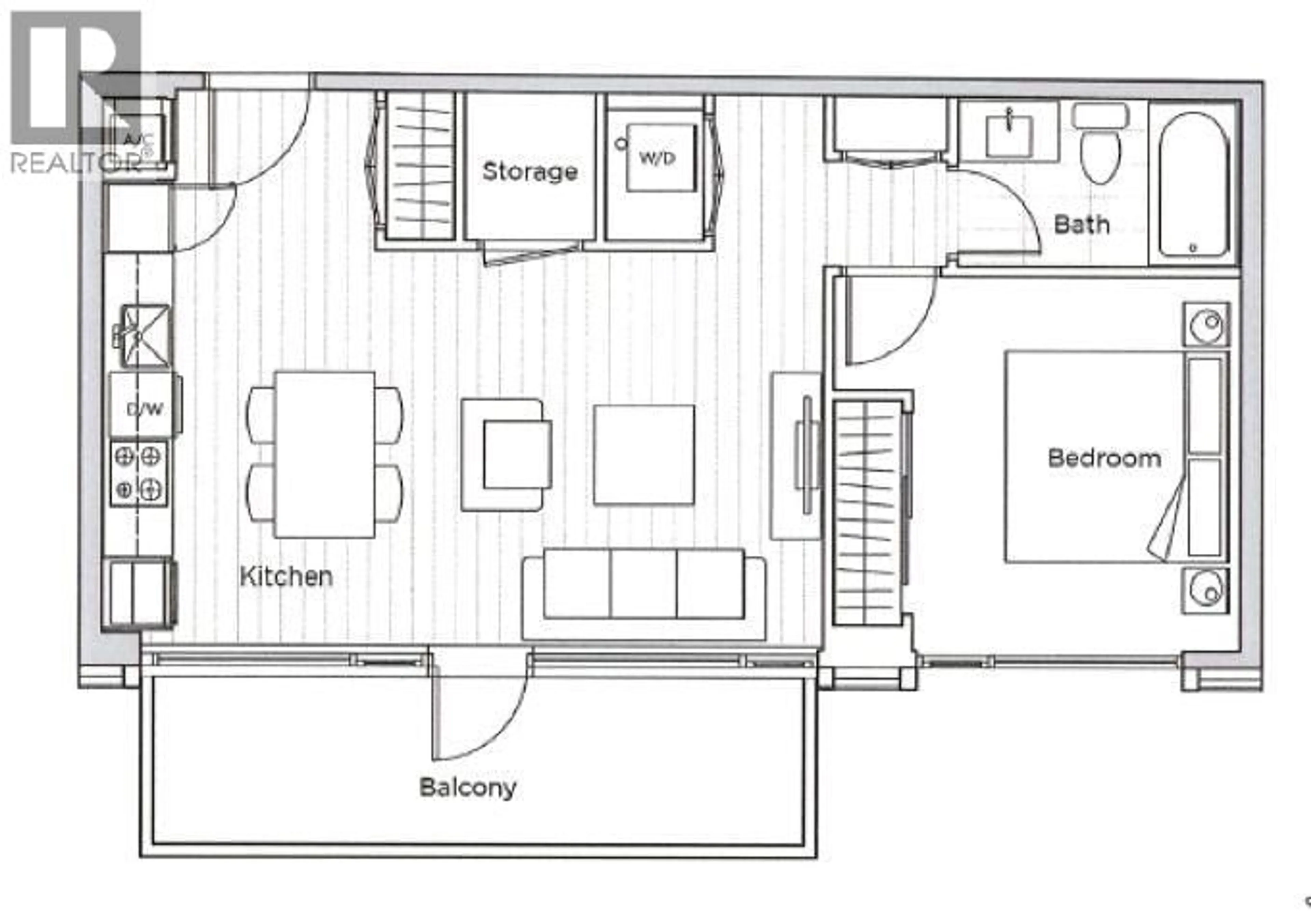
Step into this stylish 1 bedroom + den home at ViewStar, where comfort meets convenience. A rare highlight is the 200+ sq.ft. private patio, giving you direct access to the iconic "garden in the air" - a perfect spot to relax or entertain. With its southeast exposure, the space is naturally bright and welcoming all day long. Equipped with smart home technology, air conditioning, and a wide selection of premium amenities, this residence offers the lifestyle you´ve been looking for. Just minutes on foot to Capstan SkyTrain, Canadian Tire, and Yaohan Centre, everything you need is right at your doorstep. Enjoy modern living in one of Richmond´s most connected communities. Schedule your showing today! Open House: (id:39198)
Property Details
Interior
Features
Exterior
Features
Condo Details
Amenities
Exercise Centre
Inclusions
Property History
33





