2171 MIMOSA DRIVE, West Kelowna, British Columbia V4T3A5
Contact us about this property
Highlights
Estimated valueThis is the price Wahi expects this property to sell for.
The calculation is powered by our Instant Home Value Estimate, which uses current market and property price trends to estimate your home’s value with a 90% accuracy rate.Not available
Price/Sqft$390/sqft
Monthly cost
Open Calculator
Description
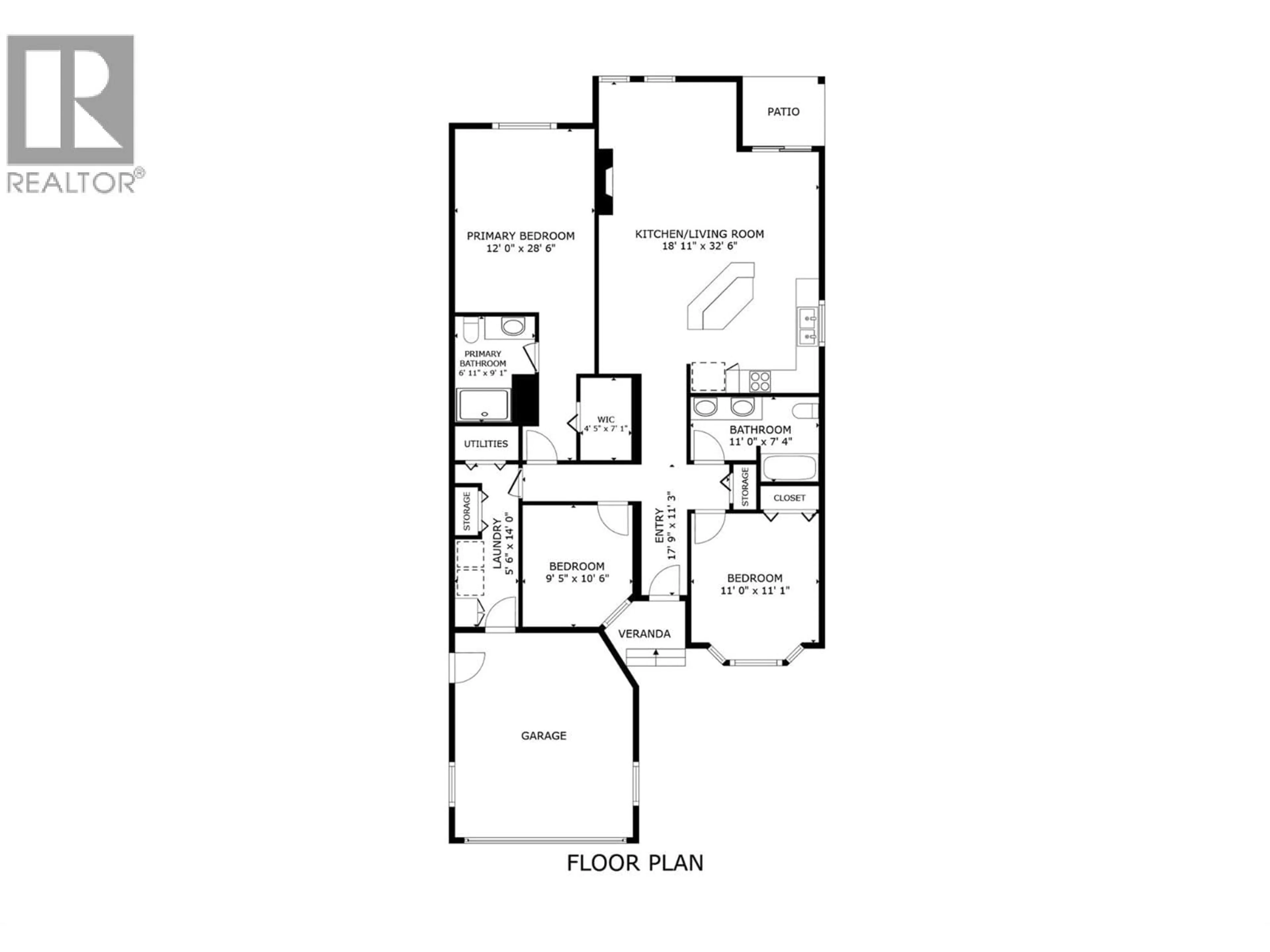
Experience refined, no-step living at 2171 Mimosa Drive, a pristine rancher in the sought-after Sage Creek 45+ gated community. This home perfectly balances privacy and connection, featuring two bright bedrooms positioned at the front of the home (one no closet, perfect for an office or hobby room) and a spacious primary on the other end of the home. The open-concept interior is perfect for entertaining, highlighted by a cozy gas fireplace, and natural, light-filled kitchen boasting stone quartz countertops, sleek cabinetry, and BRAND NEW stainless steel appliances (with warranty). The double garage and ample storage provide convenient daily living all year round. During the warmer months, this property boasts a quiet and private yard, mostly fenced (just add gates), pet-friendly and designed for total relaxation, featuring a large, covered gazebo on an aggregate, concrete patio with a small, easy-to-maintain green space. Located just around the corner from the prestigous Two Eagles Golf Course and an easy walk to all amenities including the Westbank shopping hub, wineries, coffee shops, restaurants and beaches. Residents enjoy a premier clubhouse with a fitness center, library, and active social committee. With no Property Transfer Tax or Speculation Tax, this is the perfect spot to call home in the heart of the Okanagan. Book your showing today and write your offer! (id:39198)
Property Details
Interior
Features
Main level Floor
Foyer
11'3'' x 17'9''Other
7'1'' x 4'5''5pc Bathroom
7'4'' x 11'0''3pc Ensuite bath
9'1'' x 6'11''Exterior
Parking
Garage spaces -
Garage type -
Total parking spaces 4
Property History
77




