1639 BINGHAM ROAD, Moose Jaw, Saskatchewan S6H7R8
Contact us about this property
Highlights
Estimated valueThis is the price Wahi expects this property to sell for.
The calculation is powered by our Instant Home Value Estimate, which uses current market and property price trends to estimate your home’s value with a 90% accuracy rate.Not available
Price/Sqft$295/sqft
Monthly cost
Open Calculator
Description
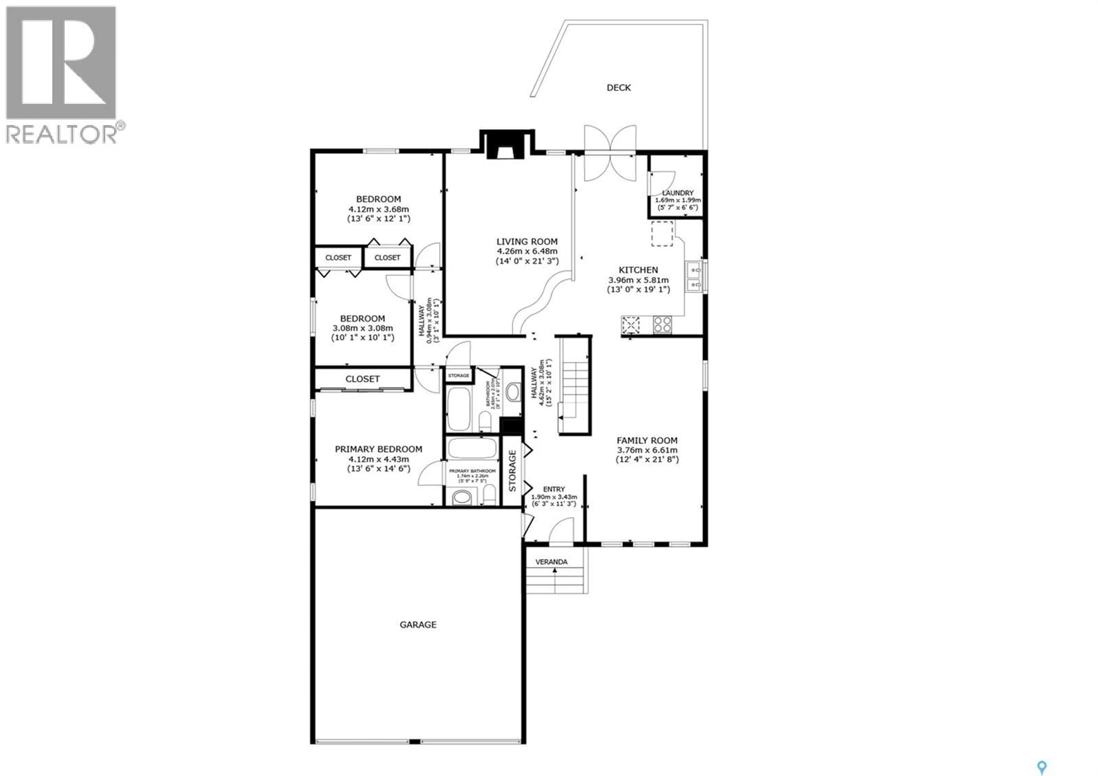
The wait is over to call 1639 Bingham Road, in the desirable VLA area, your new home! Gorgeous curb appeal ushers you into fabulous bungalow style with an exceptional floor plan perfect for families of all sizes! A spacious foyer leads you into the lovely living & dining room, or to the fabulous kitchen design that overlooks the very beautiful & comfortable main floor family room! Yes, next to the kitchen is a mail floor laundry room, as well as access to the deck backing a park,... of course! Down the hall, you find a full bath, 2 large bedrooms, & the primary bedroom with a full bath! Stepping to the lower level, you will love the L-shaped family room, spacious enough for casual entertainment, games area, that is spacious enough for all of your entertainment needs! There are 2 more bedrooms, yet another bath, plus amazing storage/utility spaces! There is a 2-car, attached, insulated garage, of course! Outdoor features included great off-street parking, including space for an RV, a beautiful stone facade & stucco exterior, a fully fenced backyard with a shed, deck, and of course backing the park! Just a few features include: amazing presentation of this very well maintained home, over 1650 sq/ft on the main floor, main floor family room, primary with en-suite, 5 bedrooms, 3 baths, fully finished lower level, main floor laundry, 65.6X132.6 (8698 sq/ft) lot backing park, RV parking, 24X24 attached garage,..too many to list! Be sure to view the 3D scan of the great floor plan & 360s of the outdoor spaces! Do not miss this must-see home! (id:39198)
Property Details
Interior
Features
Main level Floor
Foyer
11.1 x 6.1Living room
13.2 x 12.114pc Bathroom
7.1 x 7.1Bedroom
10.8 x 9.11Property History
39




