843 BRIGHTON BOULEVARD, Saskatoon, Saskatchewan S7V1X8
Contact us about this property
Highlights
Estimated valueThis is the price Wahi expects this property to sell for.
The calculation is powered by our Instant Home Value Estimate, which uses current market and property price trends to estimate your home’s value with a 90% accuracy rate.Not available
Price/Sqft$404/sqft
Monthly cost
Open Calculator
Description
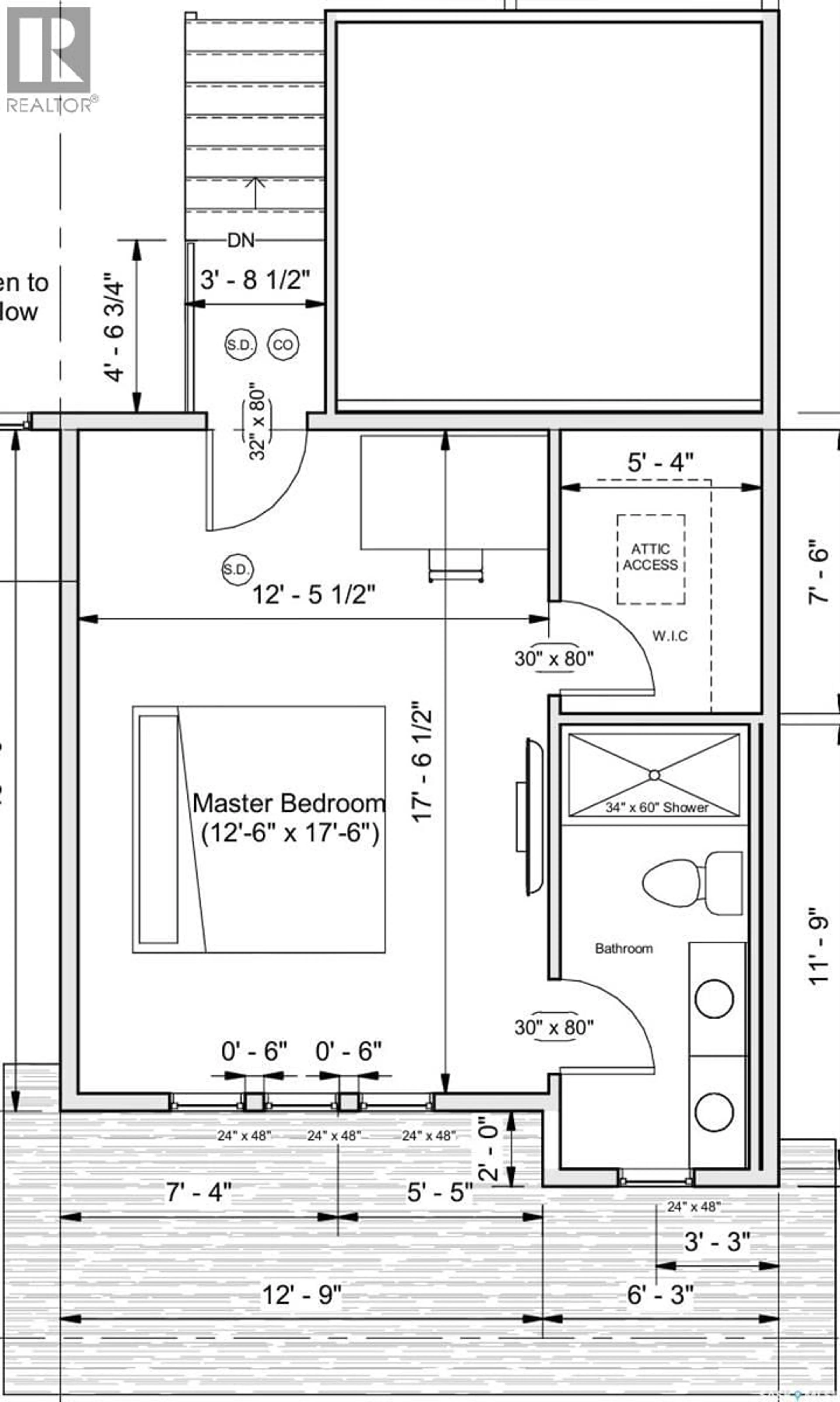
This modified bi-level home in Brighton is currently under construction and offers 1,484 sq. ft. With shopping centers, gyms, theatres, clinics, parks, and more nearby, it combines convenience with comfort. Built by SK Homes, this property blends functionality with thoughtful design. The main floor features a spacious living room with an electric fireplace inside a feature wall, an open dining area, and a kitchen tucked to the side for added privacy while still maintaining the open-concept flow. The kitchen includes soft-close cabinetry and quartz countertops, finishes that carry throughout the home. Two bedrooms and a shared 4-piece bathroom complete this level. Upstairs, the master bedroom offers space and comfort with a walk-in closet and a 4-piece ensuite, featuring dual his-and-hers sinks. This home includes a $4,000 appliance credit, with the option to upgrade for an additional amount. The basement has a separate entry and will be insulated with pony walls. A FUTURE DEVELOPMENT OPTION is available, featuring a recreation room and a 4-piece bathroom on the owner’s side. More importantly, this option allows for the creation of two separate legal suites—one two-bedroom suite and one one-bedroom suite, which the owner's side recreation room can convert to, providing exceptional potential for increased rental income. If the basement option is chosen, the buyer will also receive an additional $2,000 appliance credit. Extra features include a gas connection for the stove, a gas line in the garage for future upgrades, a complimentary BBQ hookup, and AC coils pre-installed for an easy future air conditioning upgrade. A deck, double concrete driveway, front landscaping, and sidewalks to the suite entrance are included. By purchasing early, buyers can personalize the home with customizations such as paint, flooring, cabinetry designs, countertop finishes, and exterior selections—making this home truly their own. (id:39198)
Property Details
Interior
Features
Main level Floor
Foyer
8ft x 4ftLiving room
12ft x 19ftDining room
10ft x 11ftKitchen
12ft x 11ftProperty History

