94 Gage Ave, Kitchener, Ontario N2G 2E2
Contact us about this property
Highlights
Estimated valueThis is the price Wahi expects this property to sell for.
The calculation is powered by our Instant Home Value Estimate, which uses current market and property price trends to estimate your home’s value with a 90% accuracy rate.Not available
Price/Sqft$759/sqft
Monthly cost
Open Calculator
Description
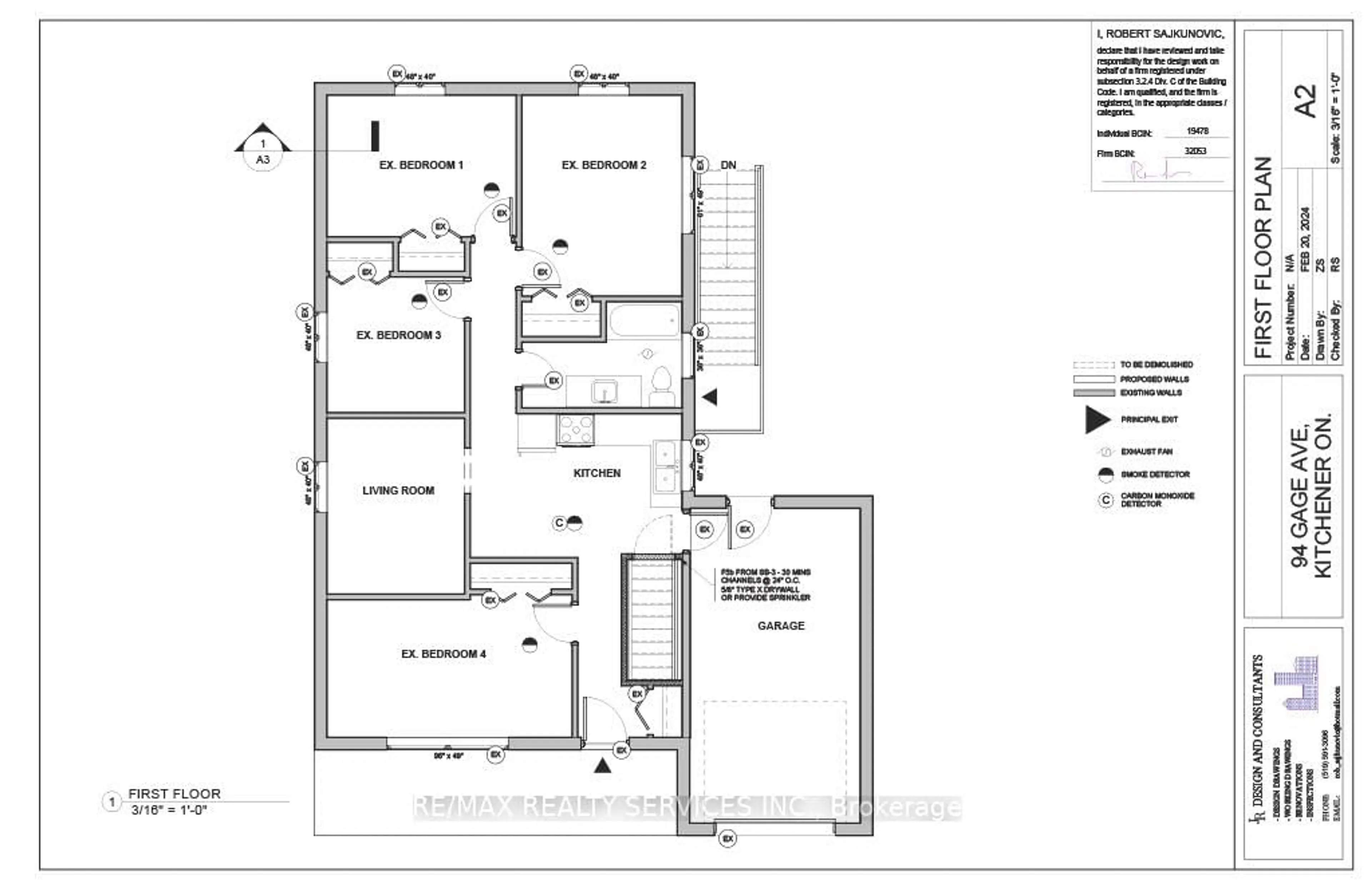
Great opportunity for investors and first time home buyers .Discover the perfect blend of charm and convenience at 94 GAGE Avenue, your dream bungalow! This inviting 3 + 3 bedroom(Dining convert into extra bedroom) home offers the ideal in-law capability., spacious backyard that invites endless possibilities for relaxation and play. Conveniently located in a central area, you'll find yourself just moments away from parks, shops, transit, St. Mary's hospital everything you need at your fingertips! Plus, with the Iron Horse Trail nearby, you can easily explore the beautiful Victoria Park in one direction or head towards Up Town Waterloo and Belmont Village. as well as Downtown Kitchener. Upgrades (Roof 2018 , AC 2023,Furnace 2021 And Driveway 2020 ) .Buyer can assume Tenant or seller can provide Vacant possession.(Current rent is $4180.00 Monthly included Utilities)( Please see attached Floor plan for Duplex)
Property Details
Interior
Features
Main Floor
Kitchen
0.01 x 0.01Laminate
Living
0.01 x 0.01Laminate / Large Window
Dining
0.01 x 0.01Laminate / Window
Primary
0.01 x 0.01Laminate / Closet / Window
Exterior
Features
Parking
Garage spaces 1
Garage type Attached
Other parking spaces 4
Total parking spaces 5
Property History
37
























