241 Fox St, Penetanguishene, Ontario L9M 1E9
Contact us about this property
Highlights
Estimated valueThis is the price Wahi expects this property to sell for.
The calculation is powered by our Instant Home Value Estimate, which uses current market and property price trends to estimate your home’s value with a 90% accuracy rate.Not available
Price/Sqft$467/sqft
Monthly cost
Open Calculator
Description
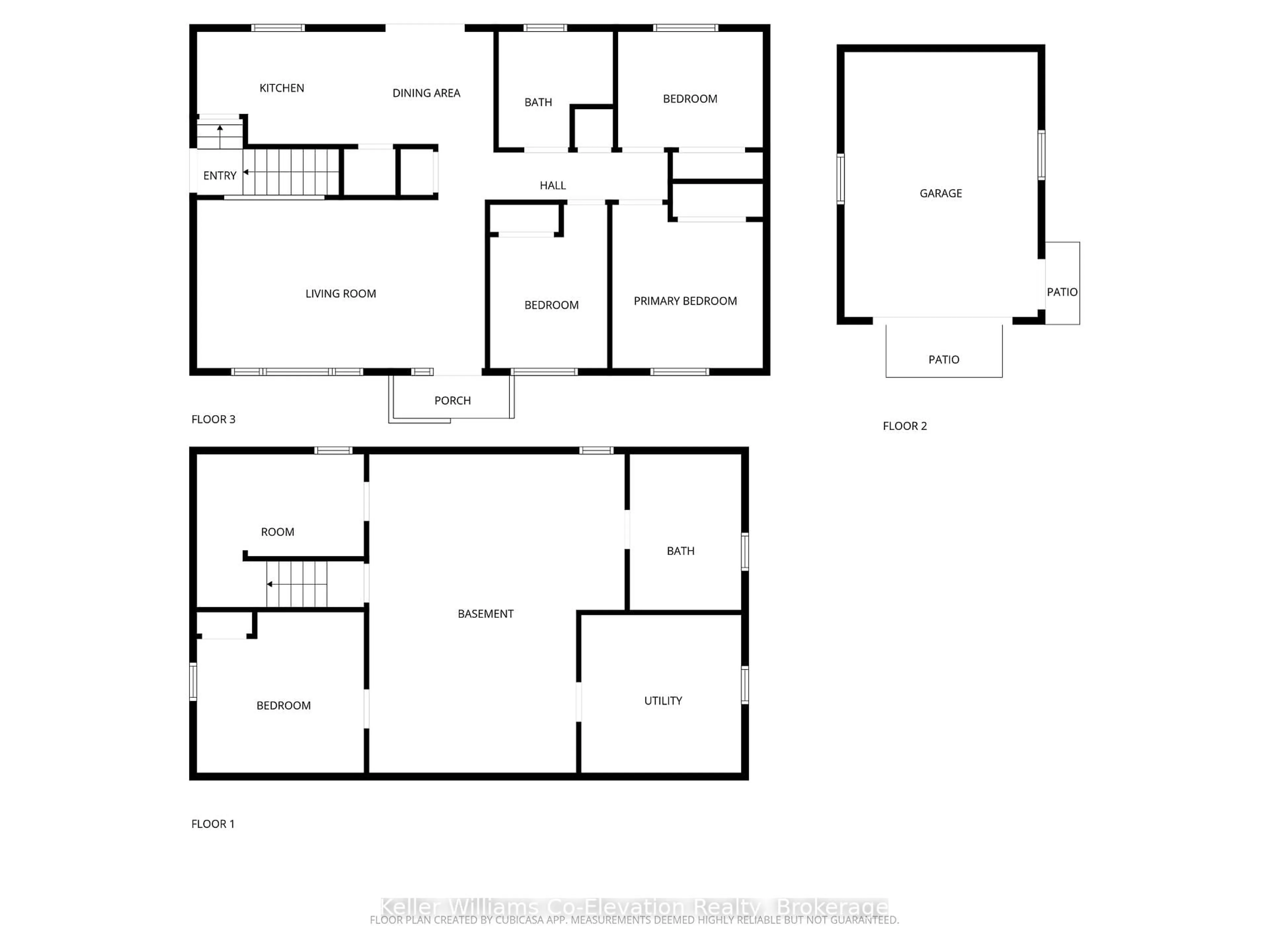
Hurry-great opportunity to own a 3-bedroom, 2-bath home on a large lot across from a park with a playground and beach on beautiful Georgian Bay. The partially finished basement offers extra living or storage space, and the detached single-car garage makes an excellent workshop-perfect for tools, hobbies, or parking a motorcycle or sled (no vehicle access). A great chance to enjoy relaxed living near the water in the historic community of Penetanguishene.
Upcoming Open House
Property Details
Interior
Features
Main Floor
Kitchen
3.44 x 2.36Dining
2.9 x 2.54Primary
3.44 x 3.172nd Br
3.05 x 2.43Exterior
Features
Parking
Garage spaces -
Garage type -
Total parking spaces 3
Property History


