3794 East St, Innisfil, Ontario L9S 2L9
Contact us about this property
Highlights
Estimated valueThis is the price Wahi expects this property to sell for.
The calculation is powered by our Instant Home Value Estimate, which uses current market and property price trends to estimate your home’s value with a 90% accuracy rate.Not available
Price/Sqft$524/sqft
Monthly cost
Open Calculator
Description
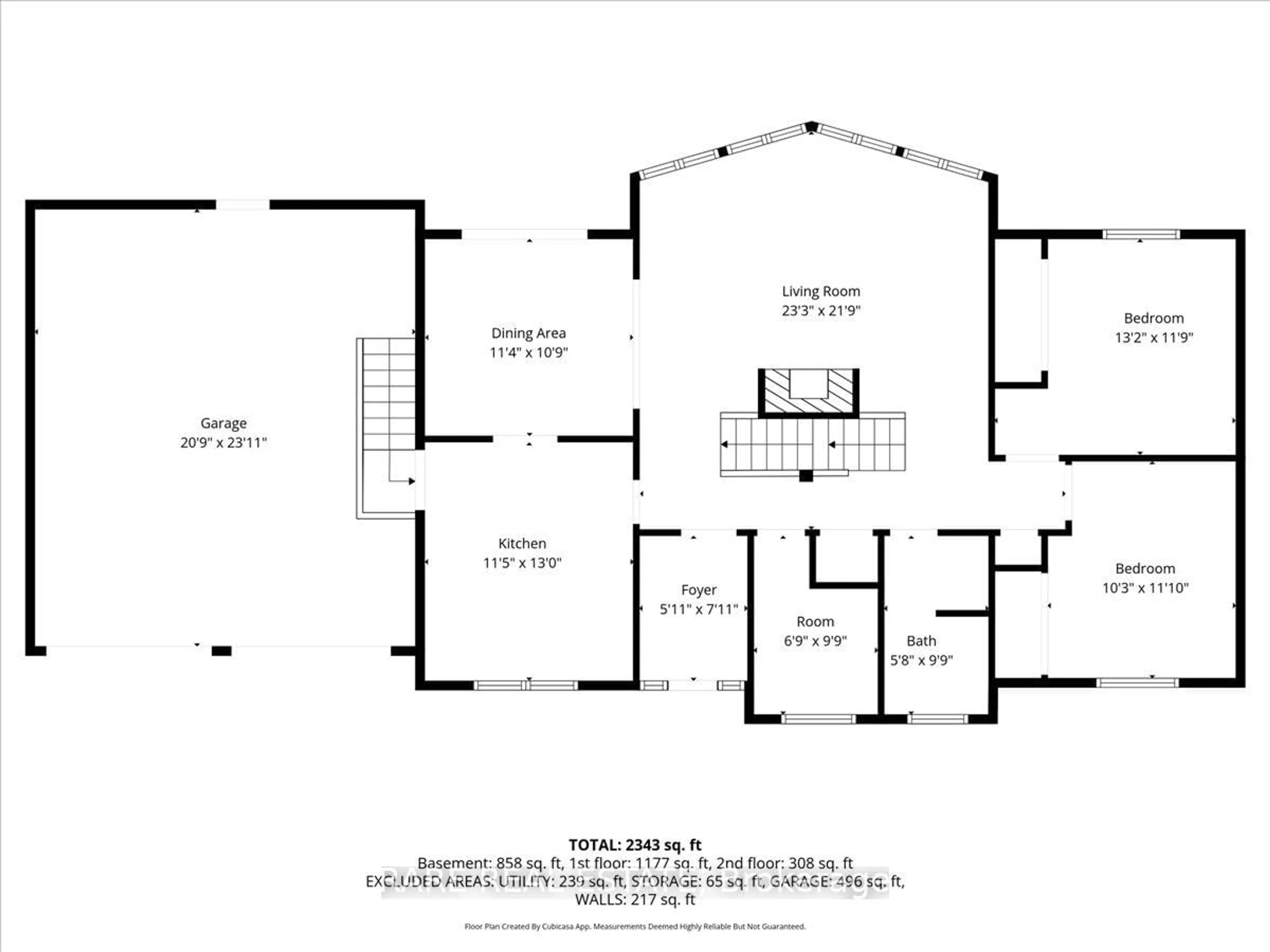
Experience the ultimate lakeside lifestyle with this exceptional detached home, perfectly situated on a premium oversized lot with an impressive 270-foot frontage-just a short 2-minute walk to the shores of Lake Simcoe and an exclusive resident-only sandy beach. This home showcases a stunning cathedral-ceiling living room filled with natural light from an expansive wall of windows, overlooking the beautifully landscaped backyard. A striking fireplace anchors the space, while hardwood floors and a modern open-concept layout create an ideal setting for both entertaining and everyday living.The second-floor primary suite offers a private escape, complete with a walk-in closet, vaulted ceiling and a well-appointed ensuite. The finished basement adds extra space featuring a large recreation room, two additional bedrooms, with an optional second primary with a beautiful bathroom-perfect for guests or extended family. Step outside to a multi-level enclosed deck, ideal for morning coffee or evening gatherings. A double car garage provides ample space for vehicles and storage.Located just minutes from the vibrant amenities of Friday Harbour, with easy access to the lake and year-round recreation, this property offers an exceptional lifestyle opportunity. Priced for a quick sale!
Property Details
Interior
Features
2nd Floor
Primary
4.19 x 4.03 Pc Ensuite / W/I Closet / Skylight
Exterior
Features
Parking
Garage spaces 2
Garage type Attached
Other parking spaces 4
Total parking spaces 6
Property History
47















