100 Bay Breeze St, Prince Edward County, Ontario K8N 4Z7
Contact us about this property
Highlights
Estimated valueThis is the price Wahi expects this property to sell for.
The calculation is powered by our Instant Home Value Estimate, which uses current market and property price trends to estimate your home’s value with a 90% accuracy rate.Not available
Price/Sqft$549/sqft
Monthly cost
Open Calculator
Description
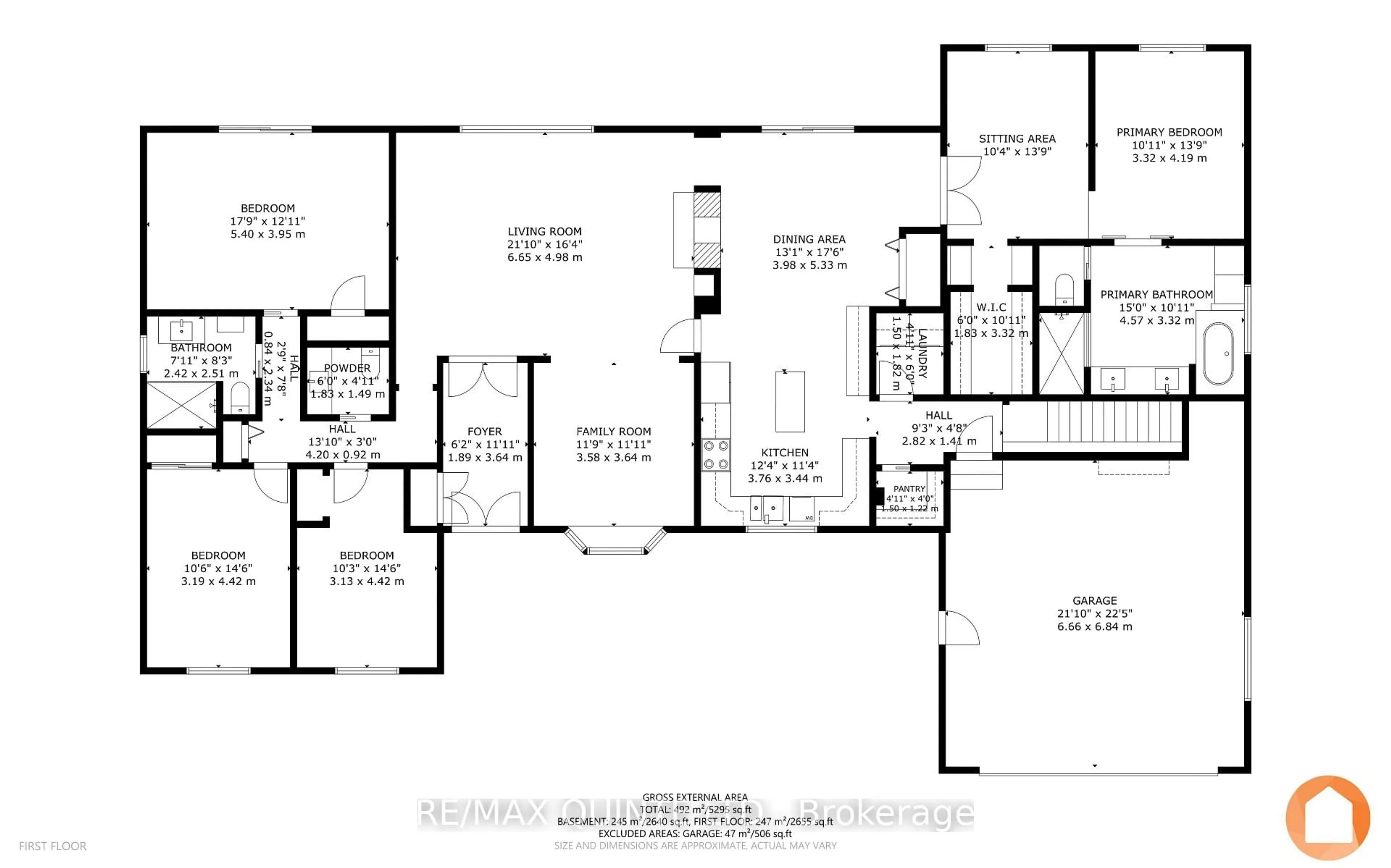
Executive Bungalow with Show-Stopping Backyard & Modern Finishes. Welcome to 100 Bay Breeze Street, an exceptional custom built bungalow located in a prestigious neighbourhood in Prince Edward County, just minutes from Belleville. Situated on a large, beautifully landscaped lot, this home offers a rare blend of refined interior updates and truly outstanding outdoor living. Inside, you'll find 4 bedrooms and 2.5 bathrooms on the main floor, plus a fully finished lower level with a fifth bedroom and additional full bathroom with flexible living space, perfect for a home gym, media room, or guest suite or multi-generational living. The kitchen and bathrooms have been tastefully renovated with modern finishes and attention to detail. But it's the backyard that truly sets this property apart. Step outside to a private outdoor oasis, complete with a sparkling in ground pool, a screened-in gazebo, and lush, mature landscaping that offers both beauty and privacy. Whether you're hosting summer gatherings or enjoying a quiet morning coffee, this backyard is designed for relaxation and entertaining alike. This home combines luxury living with unbeatable convenience. Just Two hours east of Toronto, Prince Edward County's perfect combination of lakeside views, charming town life and award winning culinary culture have made it one of Canada's most highly coveted destinations.
Property Details
Interior
Features
Lower Floor
5th Br
4.0 x 3.87Rec
11.83 x 6.43Den
3.87 x 2.64Sitting
7.47 x 6.42Exterior
Features
Parking
Garage spaces 2
Garage type Attached
Other parking spaces 6
Total parking spaces 8
Property History
50






