121 Melita St, Ingersoll, Ontario N5C 3T3
Contact us about this property
Highlights
Estimated valueThis is the price Wahi expects this property to sell for.
The calculation is powered by our Instant Home Value Estimate, which uses current market and property price trends to estimate your home’s value with a 90% accuracy rate.Not available
Price/Sqft$348/sqft
Monthly cost
Open Calculator
Description
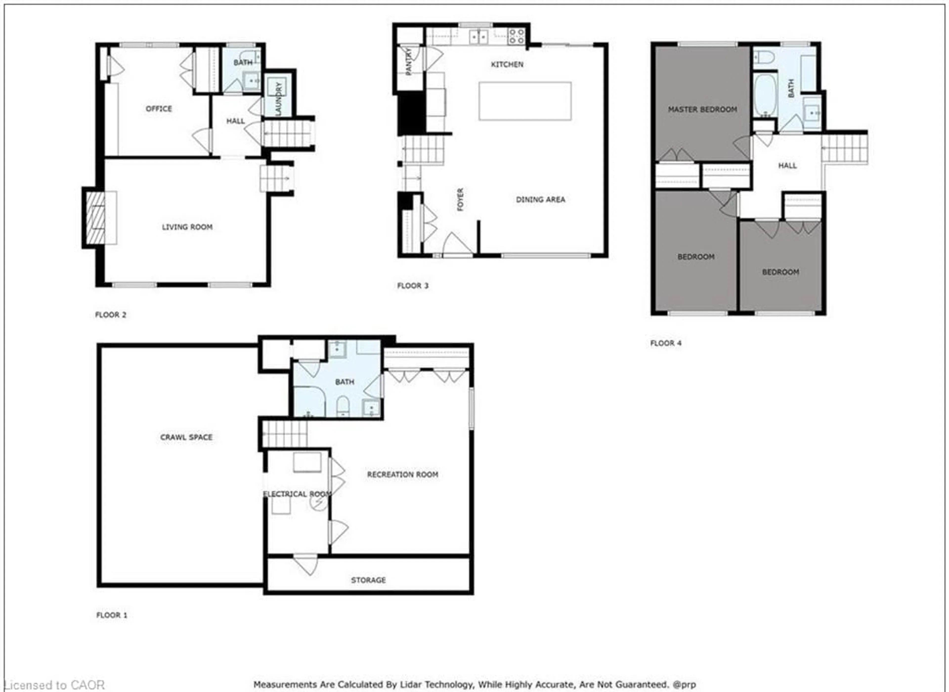
Attention empty nesters and first-time buyers! Ideally located just minutes from Hwy 401 and close to schools, shopping, library, parks, and places of worship, this property combines comfort with convenience. The main level has been renovated into a generous open-concept space that includes the foyer, dining room/living room, and kitchen. The kitchen is truly the centerpiece of the home, featuring an impressive island with seating for eight, elegant granite countertops, and stylish cabinetry. The second level features three generously sized bedrooms and a well-appointed 4-piece bathroom, providing comfortable accommodations for family members or guests. Each bedroom offers ample space and creates a bright and welcoming atmosphere throughout the level. The lower level features a comfortable living room with a fireplace feature wall, a fourth bedroom currently used as an office, a 2-piece bathroom, and a laundry area. Large windows provide plenty of natural light, keeping the space bright and inviting. The finished basement offers additional living space, including a recreation room, a 4-piece bathroom, a mechanical room, and a cold room. It also provides access to an oversized crawlspace for storage, approximately the same size as the lower level. The home features durable and stylish LVP flooring throughout. All windows, doors (including the front door), trim, and hardware throughout the home were replaced in 2021. Major electrical upgrades were completed in 2021, including copper wiring, a new breaker panel, and the installation of over 60 pot lights throughout the home. A full top-to-bottom renovation was completed in 2021, offering a fresh, modern feel throughout the entire home. The long driveway can accommodate three cars. This home showcases quality workmanship throughout. View the attached 3D virtual tour and explore the 50 photos. Don’t miss this fantastic opportunity.
Property Details
Interior
Features
Second Floor
Bathroom
2.01 x 2.954-Piece
Bedroom
2.77 x 3.10Bedroom Primary
3.17 x 3.94Bedroom
2.69 x 4.17Exterior
Features
Parking
Garage spaces -
Garage type -
Total parking spaces 3
Property History
50








