4371 GREEN BEND Rd, London South, Ontario N6P 0K9
Contact us about this property
Highlights
Estimated valueThis is the price Wahi expects this property to sell for.
The calculation is powered by our Instant Home Value Estimate, which uses current market and property price trends to estimate your home’s value with a 90% accuracy rate.Not available
Price/Sqft$466/sqft
Monthly cost
Open Calculator
Description
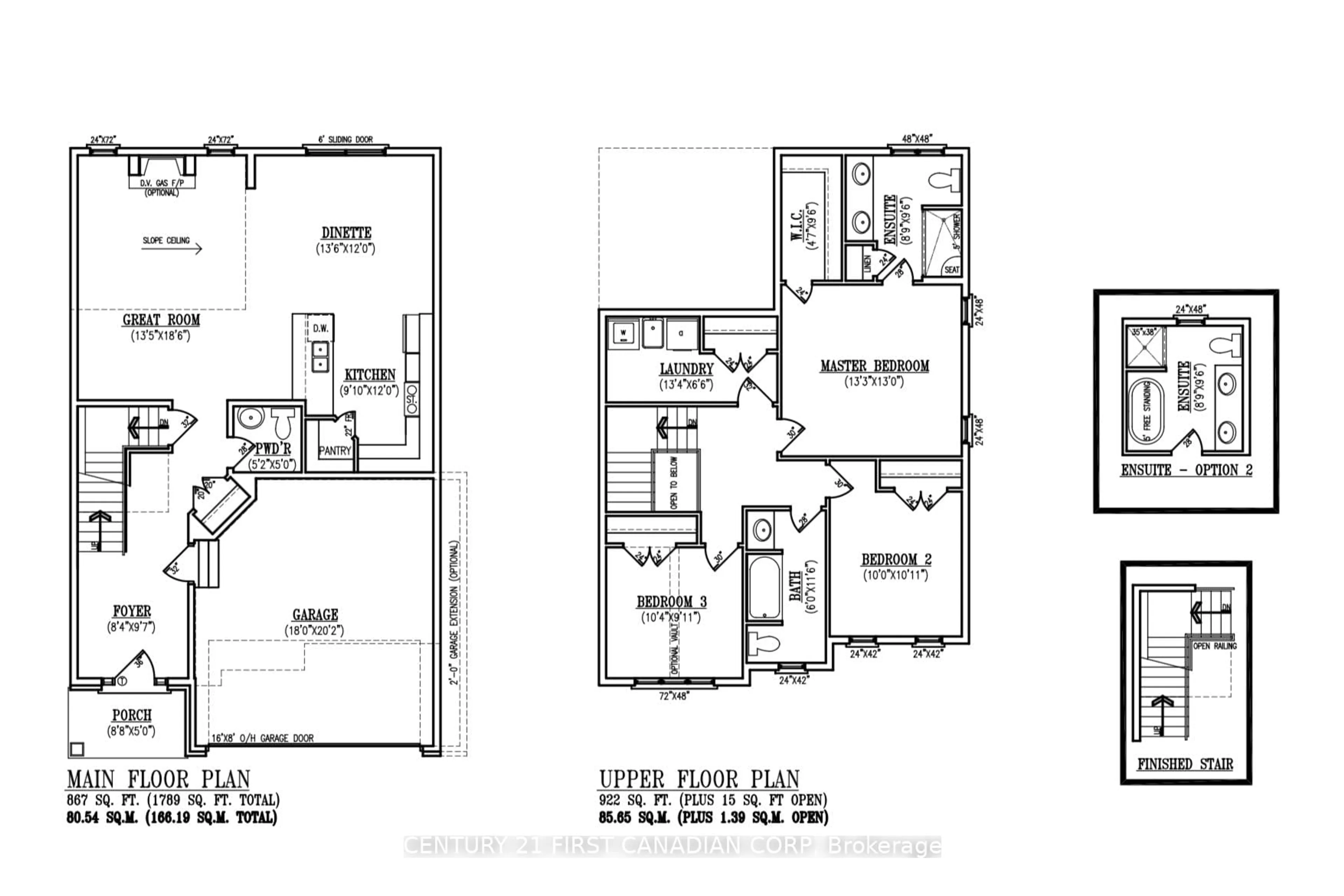
Welcome to your future home in the highly sought after Liberty Crossing community in Lambeth. This to-be-built two storey home by Castell Homes, The Cole model, offers 3 bedrooms and 2.5 bathrooms on a premium lot backing onto green space. Built with quality craftsmanship and a functional layout, this home is designed for comfortable, modern living. The main floor features a bright, open-concept kitchen, dining area, and great room, ideal for both everyday life and entertaining. The kitchen includes a convenient pantry for added storage. A 2-piece powder room and inside access to the double-car garage complete the main level. Upstairs, the primary bedroom includes a walk-in closet and private 4-piece ensuite, with the option to upgrade to a 5-piece ensuite featuring a soaker tub. Two additional well-sized bedrooms, a full 4-piece bathroom, and a second-floor laundry room add to the home's practical layout. Located in a family friendly neighbourhood, Liberty Crossing offers a quiet suburban setting with easy access to everyday amenities. Close to shopping, schools, parks, and recreational facilities in Lambeth, with convenient connections to Highways 402 and 401 for commuting across London and Southwestern Ontario. Price reflects the proposed 2026 HST rebates. Final rebate amount is subject to the passing of Provincial and Federal legislation and Buyer's eligibility as per government guidelines, including primary residence or qualifying rental.
Property Details
Interior
Features
Main Floor
Kitchen
3.0 x 3.66Open Concept / Pantry
Dining
4.11 x 3.66Open Concept / W/O To Yard
Great Rm
4.09 x 5.64Open Concept / Vaulted Ceiling
Exterior
Features
Parking
Garage spaces 2
Garage type Attached
Other parking spaces 2
Total parking spaces 4
Property History
3






















