Contact us about this property
Highlights
Estimated valueThis is the price Wahi expects this property to sell for.
The calculation is powered by our Instant Home Value Estimate, which uses current market and property price trends to estimate your home’s value with a 90% accuracy rate.Not available
Price/Sqft$479/sqft
Monthly cost
Open Calculator
Description
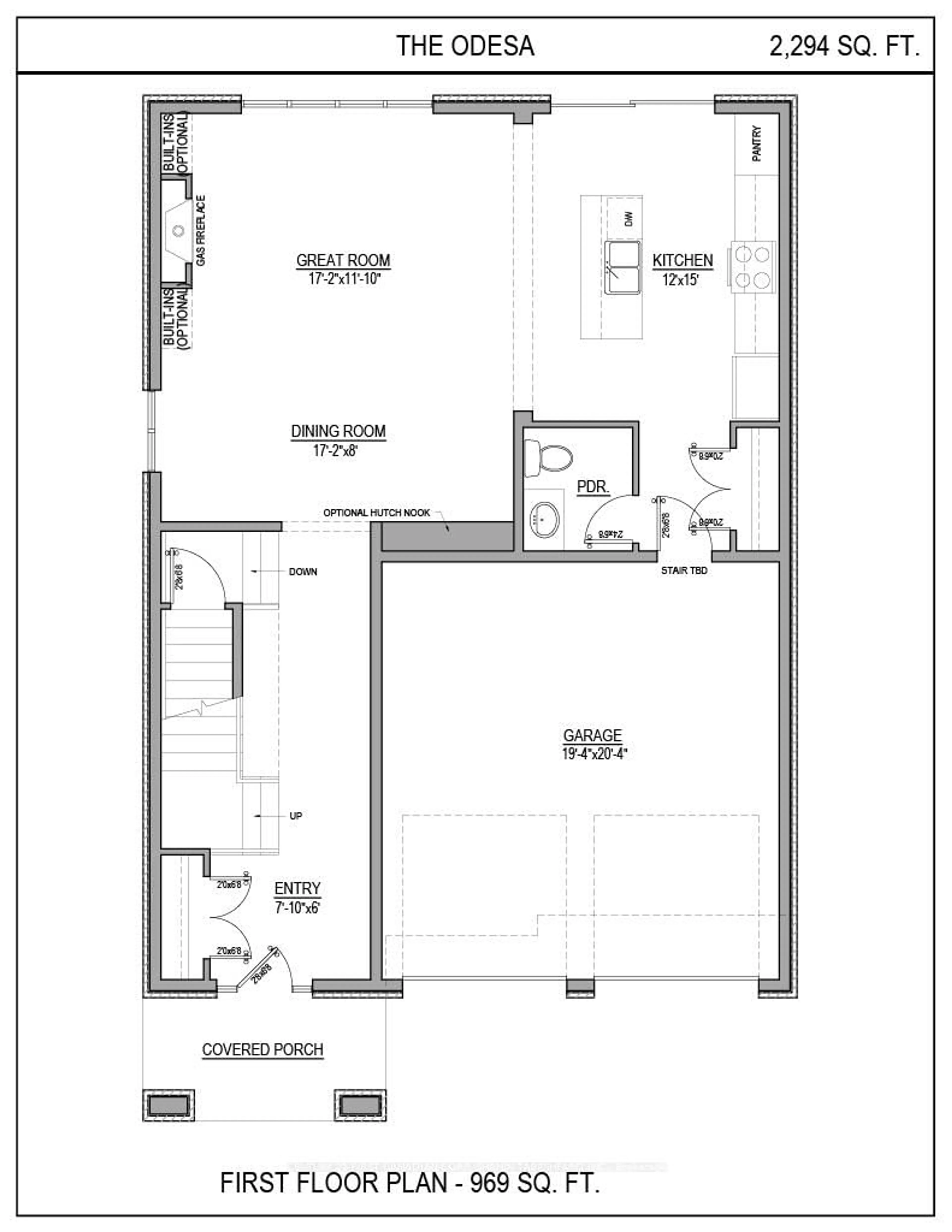
To be built in Hidden Hills West; Northwest London's newest up and coming neighbourhood. This home boasts 2,294 sq ft of living space with 3 bedrooms and 2.5 bathrooms and a bonus loft space or additional 4th bedroom. Featuring 9 ft ceilings on the main floor and a desirable open concept living, kitchen and dining space; with engineered hardwood flooring and elegant tile options. Complete with modern amenities and the convenience of second floor laundry. The upper level features 2 full baths, including an elegant 5pc ensuite and spacious primary retreat with a large walk-in closet; as well as 2 additional bedrooms. Ideally located with easy access to the 402 and many other great amenities; lush parks, scenic walking trails, convenient shopping centres, restaurants, grocery stores and schools. Alternative floor plans available. With over 20 years experience creating quality homes. Marquis Developments has established a solid reputation for outstanding workmanship and reliability of service. Discover the difference in creating your home with Marquis Developments. Closings available into late 2026/2027.
Property Details
Interior
Features
Main Floor
Kitchen
3.65 x 4.57Great Rm
5.24 x 3.38Dining
5.24 x 2.43Foyer
2.16 x 1.82Exterior
Features
Parking
Garage spaces 2
Garage type Attached
Other parking spaces 2
Total parking spaces 4
Property History
10
























