1612 Shanick Rd, Limoges, Ontario K0K 2M0
Contact us about this property
Highlights
Estimated valueThis is the price Wahi expects this property to sell for.
The calculation is powered by our Instant Home Value Estimate, which uses current market and property price trends to estimate your home’s value with a 90% accuracy rate.Not available
Price/Sqft$409/sqft
Monthly cost
Open Calculator
Description
Set on just over 10 acres with waterfront access, this year-round property offers space, privacy, and the opportunity to create something truly your own, all within 20 minutes of the village. The home features an open-concept kitchen and living area with views of the water and a wood stove that adds warmth and character. With multiple high-speed internet options available, it's well-suited for those working from home or looking for a quieter setting outside of town.Step outside to the open space, mature trees, and abundant wildlife creating a peaceful backdrop, with plenty of room to explore, garden, or simply enjoy the outdoors. There's also a 24-ft above-ground pool for summer days, along with an insulated workshop, drive shed, and separate garage that provide excellent storage and flexibility for hobbies or recreational use. If you've been looking for acreage, privacy, and waterfront access with room to add value, this is an opportunity worth exploring.
Property Details
Interior
Features
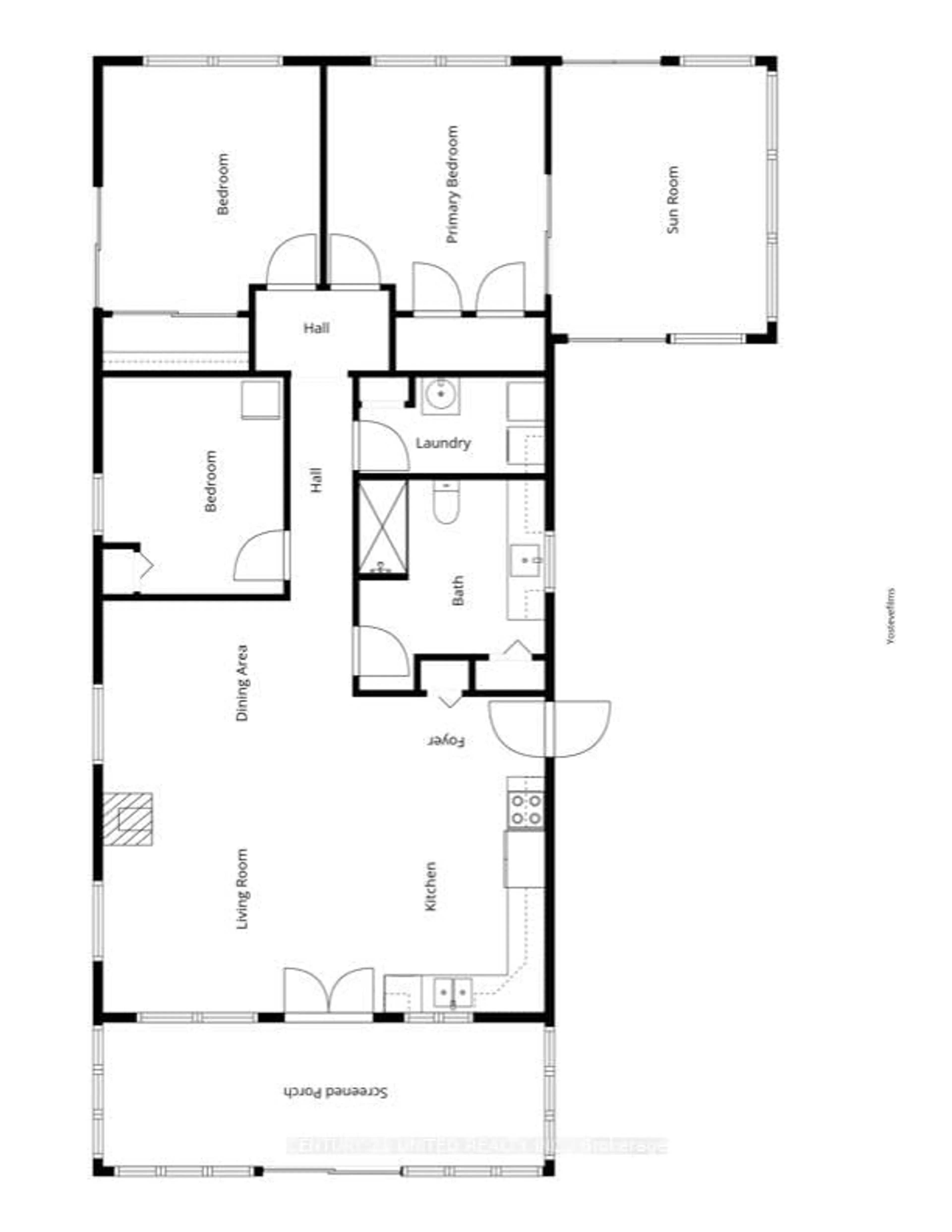
Main Floor
Kitchen
5.08 x 3.08Living
6.42 x 4.12Primary
4.03 x 3.542nd Br
4.2 x 3.54Exterior
Features
Parking
Garage spaces -
Garage type -
Total parking spaces 6
Property History
28







