1350 Ellesmere Rd #1113, Toronto, Ontario M1P 0G6
Contact us about this property
Highlights
Estimated valueThis is the price Wahi expects this property to sell for.
The calculation is powered by our Instant Home Value Estimate, which uses current market and property price trends to estimate your home’s value with a 90% accuracy rate.Not available
Price/Sqft$672/sqft
Monthly cost
Open Calculator
Description
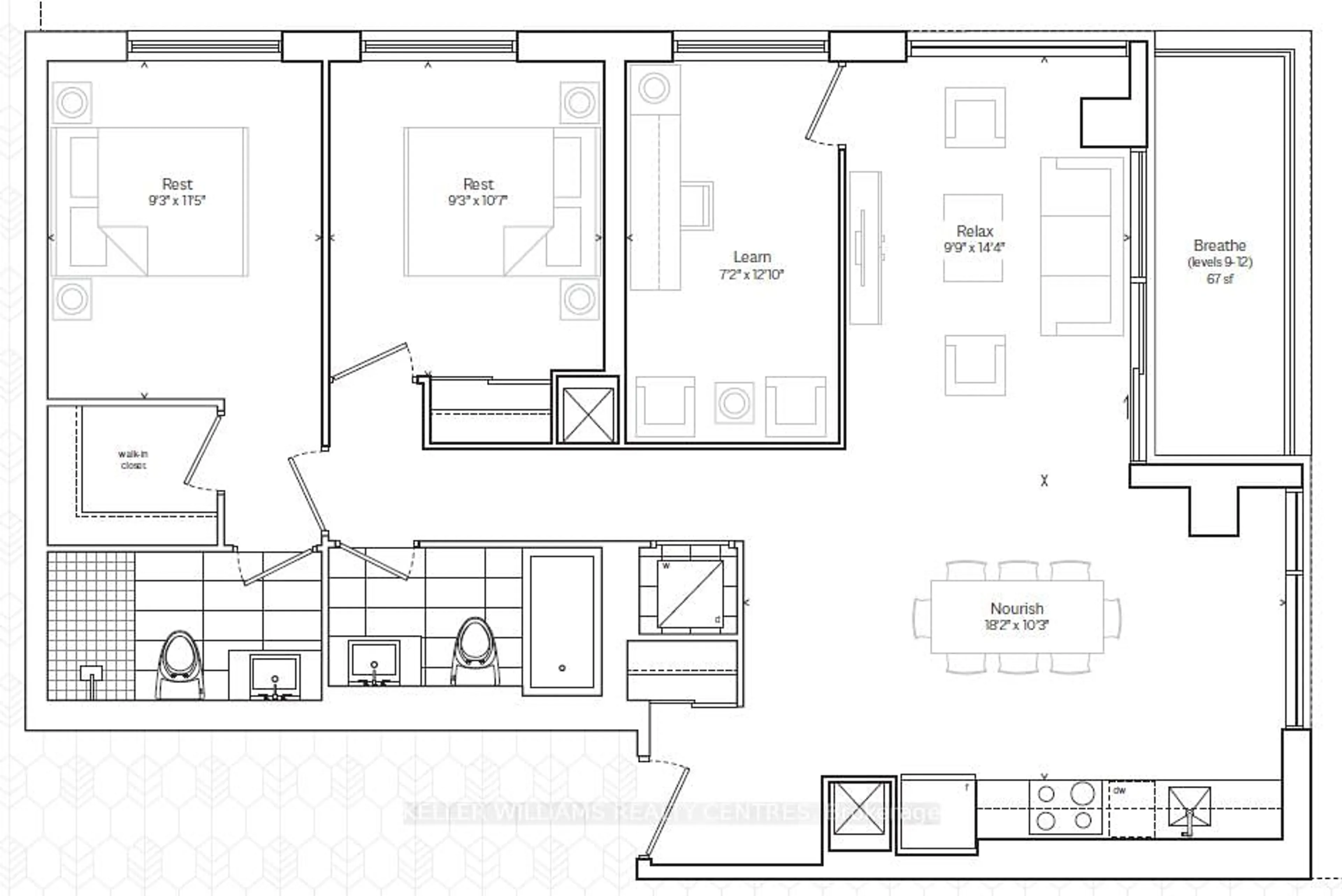
Welcome to this brand new, never occupied suite offering modern finishes and functional design in a prime location. Featuring an open concept layout, contemporary kitchen with premium cabinetry and stainless steel appliances, spacious bedroom, and floor to ceiling windows providing abundant natural light. Enjoy the benefits of a brand new Tarion Warranty and the opportunity to own in a well managed building with excellent amenities. Ideal for first time buyers, downsizers, or professionals seeking turnkey living. Conveniently located just minutes from Ellesmere Station, providing direct access to TTC transit, and 2 min drive to Scarborough Town Centre for shopping, dining, and everyday amenities. Quick access to Highway 401 makes commuting throughout the GTA seamless.
Property Details
Interior
Features
Main Floor
Br
2.83 x 3.5Living
4.38 x 3.01Kitchen
5.54 x 3.13Den
2.83 x 3.5Exterior
Features
Parking
Garage spaces 1
Garage type Underground
Other parking spaces 0
Total parking spaces 1
Condo Details
Inclusions
Property History
18
























