60 Princess St #913, Toronto, Ontario M5A 2C7
Contact us about this property
Highlights
Estimated valueThis is the price Wahi expects this property to sell for.
The calculation is powered by our Instant Home Value Estimate, which uses current market and property price trends to estimate your home’s value with a 90% accuracy rate.Not available
Price/Sqft$825/sqft
Monthly cost
Open Calculator
Description
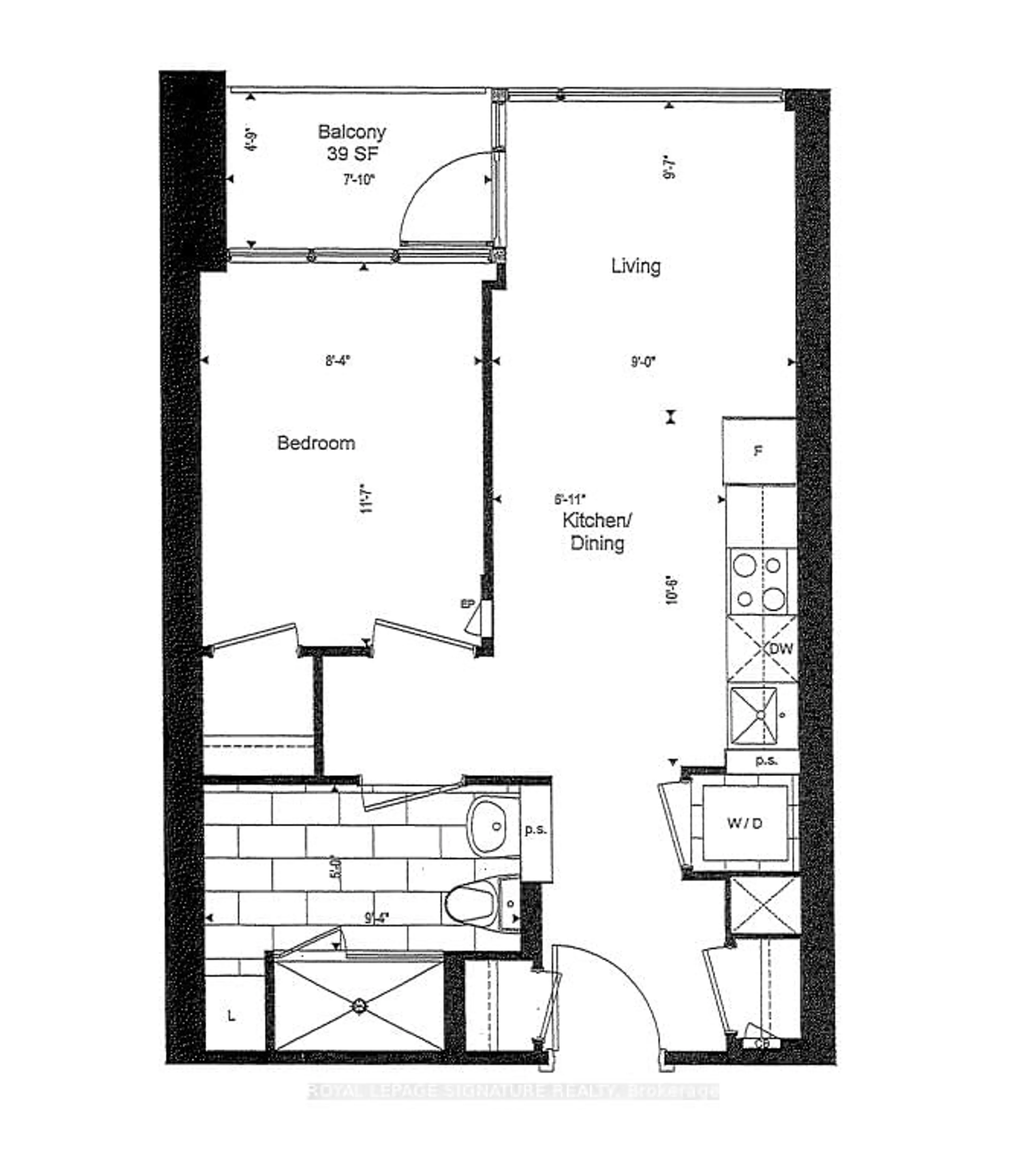
Live where the energy of the city meets everyday comfort at Time & Space Condos, one of downtown Toronto's most exciting communities. This stylish and functional 1-bedroom suite offers 515 sq ft of thoughtfully designed living, perfect for first-time buyers, investors, or anyone craving a vibrant urban lifestyle. Enjoy a sleek contemporary kitchen with high-end appliances, a bright and open living space, and a private bedroom designed for comfort and relaxation. Step out to your east-facing balcony and take in beautiful city views and morning sun. You're just steps to the Distillery District, TTC, St. Lawrence Market, and the waterfront, putting the best of Toronto right at your doorstep. Residents enjoy an incredible lineup of amenities, including an infinity-edge pool, rooftop cabanas, outdoor BBQ area, games room, gym, yoga studio, party room, and more.This is downtown living done right.
Property Details
Interior
Features
Main Floor
Dining
3.2 x 2.11Laminate / Open Concept / Combined W/Kitchen
Kitchen
3.2 x 2.11Laminate / Stainless Steel Appl / Stone Counter
Br
3.53 x 2.54Laminate / Closet / Window
Living
2.92 x 2.74Laminate / Open Concept / W/O To Balcony
Exterior
Features
Condo Details
Amenities
Concierge, Games Room, Gym, Outdoor Pool, Party/Meeting Room, Rooftop Deck/Garden
Inclusions
Property History
21
























