70 Allen Ave, Toronto, Ontario M4M 1T4
Contact us about this property
Highlights
Estimated valueThis is the price Wahi expects this property to sell for.
The calculation is powered by our Instant Home Value Estimate, which uses current market and property price trends to estimate your home’s value with a 90% accuracy rate.Not available
Price/Sqft$1,343/sqft
Monthly cost
Open Calculator
Description
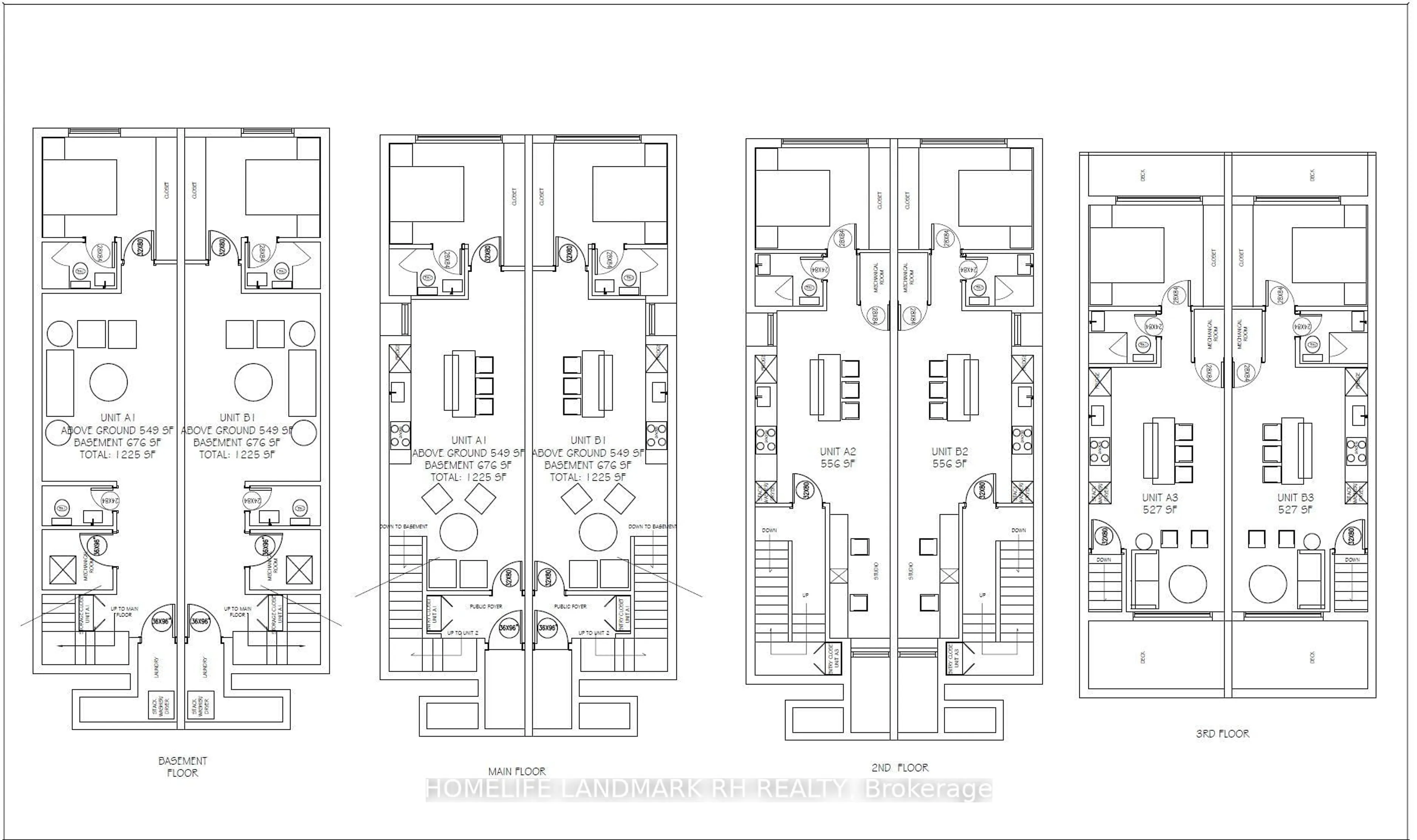
Detached Bungalow In High Demand Location in Downtown East - Dundas / Broadview. Your Dream Home - 2 Semis @ 30' X 75' Feet Lot. Building Permit Ready with Drawing: 9' Ceiling On Main, 8.5' on the 2nd & 3rd Floor. 8' in the Bsmt. Also has potential to change to multiplex up to 6 units (new Toronto zoning). Steps to Public Transit & Shopping. Close To VVP & All Amenities. Good For End User & Investor. ** Drawings Provided By Seller, Just For Reference** Property is not livable, it's being Sold " As Is Where Is".
Property Details
Interior
Features
Exterior
Features
Property History
17





















