195 Redpath Ave #2013, Toronto, Ontario M4P 0E4
Contact us about this property
Highlights
Estimated valueThis is the price Wahi expects this property to sell for.
The calculation is powered by our Instant Home Value Estimate, which uses current market and property price trends to estimate your home’s value with a 90% accuracy rate.Not available
Price/Sqft$399/sqft
Monthly cost
Open Calculator
Description
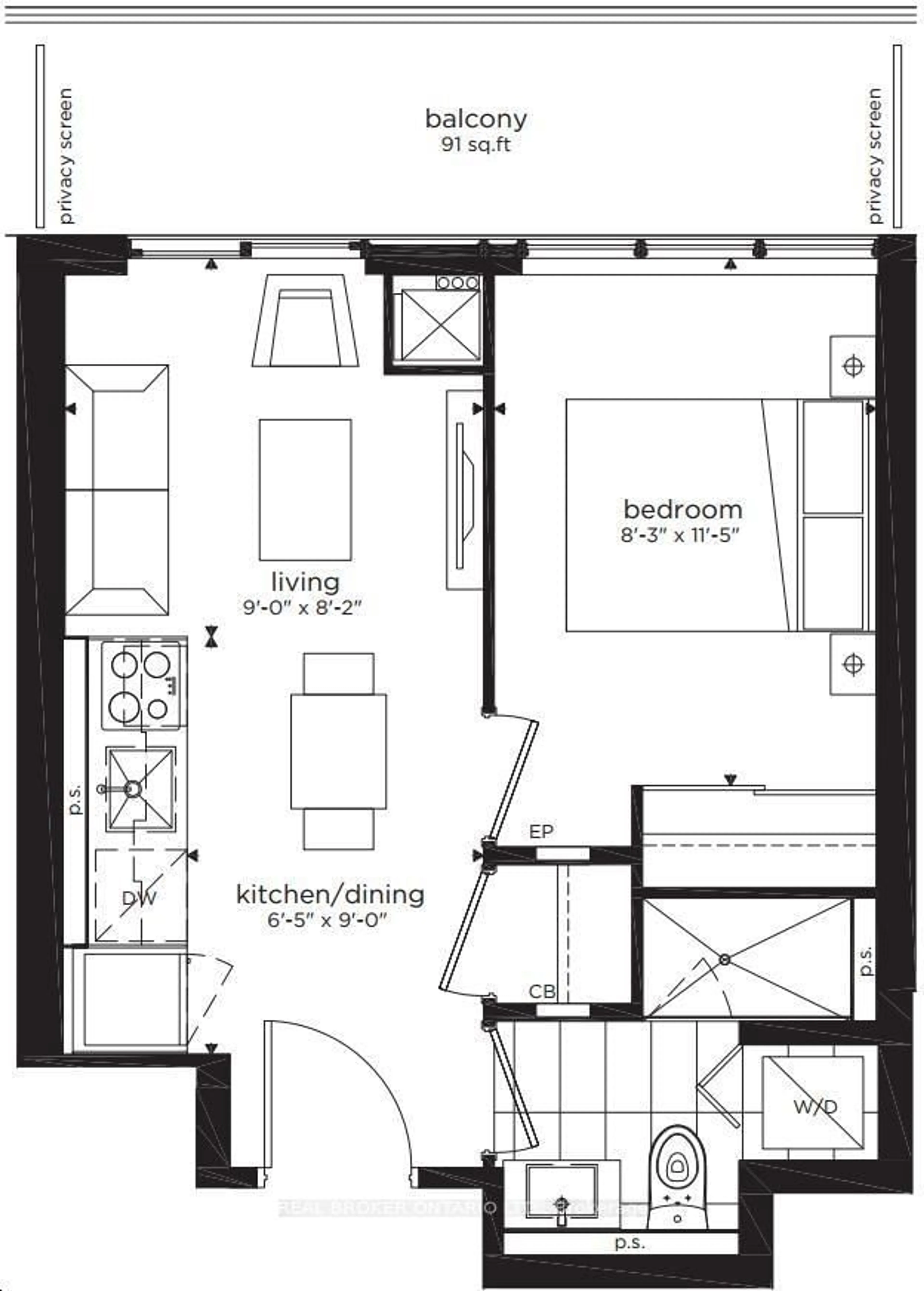
Fantastic Opportunity for First-Time Buyers or Investors! Welcome to City Lights on Broadway South Tower by the award-winning Pemberton Group. This functional 1-bedroom, 1-bath open-concept suite features laminate flooring throughout, a modern kitchen with quartz countertops, stainless steel appliances, and under-cabinet lighting, plus a spa-inspired bathroom with glass shower, pot lights, and extra storage. Locker included. Prime Yonge & Eglinton location just steps to the subway, restaurants, cafés, and shops-ideal for end users or as a high-demand rental. Enjoy over 18,000 sq. ft. of indoor and 10,000 sq. ft. of outdoor amenities, including indoor & outdoor pools, fitness centre, steam room, basketball court, theatre, party room, guest suites, BBQ area, and visitor parking. Exceptional value in one of Midtown Toronto's most desirable communities. **Some photos are virtually staged.**
Upcoming Open House
Property Details
Interior
Features
Flat Floor
Living
2.61 x 2.03Combined W/Dining / W/O To Balcony / Laminate
Dining
2.61 x 2.03Combined W/Dining / W/O To Balcony / Laminate
Kitchen
2.73 x 2.4Quartz Counter / Stainless Steel Appl / Laminate
Primary
3.18 x 2.65Closet / Window / Laminate
Exterior
Features
Condo Details
Amenities
Concierge, Guest Suites, Outdoor Pool, Party/Meeting Room, Recreation Room, Exercise Room
Inclusions
Property History
23




















