70 Princess St #608, Toronto, Ontario M5A 0X6
Contact us about this property
Highlights
Estimated valueThis is the price Wahi expects this property to sell for.
The calculation is powered by our Instant Home Value Estimate, which uses current market and property price trends to estimate your home’s value with a 90% accuracy rate.Not available
Price/Sqft$714/sqft
Monthly cost
Open Calculator
Description
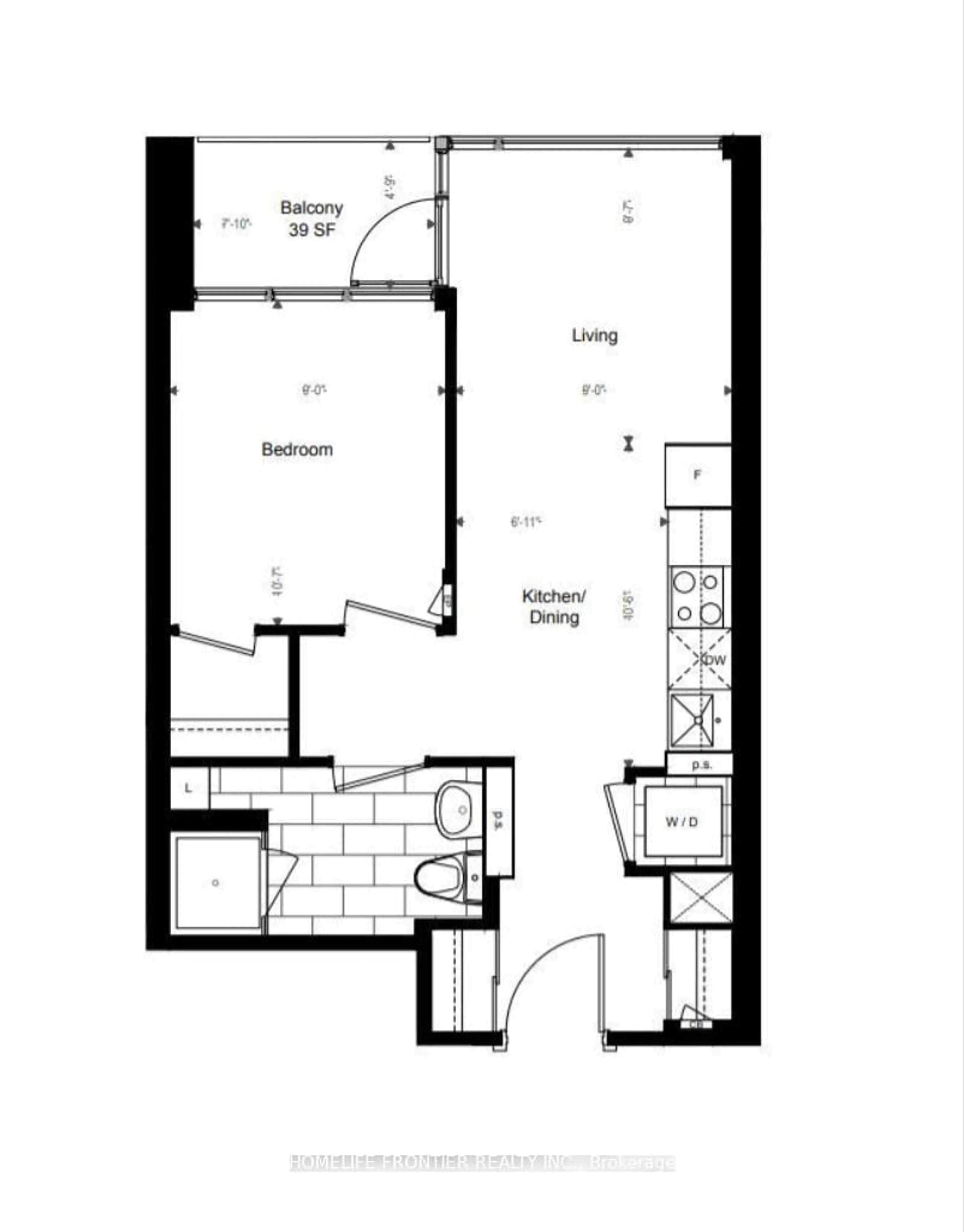
Welcome to your dream home at the highly sought-after Time and Space Condos, a vibrant 1-year-old community in the heart of downtown Toronto. This 1-bedroom suite features a functional layout with 9-ft smooth ceilings, Laminate flooring, and an open-concept kitchen with full-size stainless steel appliances. Walkout to a private balcony. Maintenance fees include WiFi. Enjoy outstanding amenities including an infinity-edge pool, rooftop cabanas, BBQ area, gym, yoga studio, basketball court, games room, and party room. Steps to St. Lawrence Market, Distillery District, Union Station, Financial District, TTC, and PATH. Excellent opportunity for end-users and investors. YOU MUST SEE!!!
Property Details
Interior
Features
Main Floor
Primary
3.23 x 2.7Laminate / Closet / Window
Living
2.92 x 2.74Laminate / Open Concept / W/O To Balcony
Dining
3.2 x 2.11Laminate / Open Concept / Combined W/Kitchen
Kitchen
3.2 x 2.11Laminate / Stainless Steel Appl / Combined W/Dining
Exterior
Features
Condo Details
Amenities
Concierge, Games Room, Gym, Outdoor Pool, Party/Meeting Room, Rooftop Deck/Garden
Inclusions
Property History
21


















