1591 South Parade Crt #2, Mississauga, Ontario L5M 6G1
Contact us about this property
Highlights
Estimated valueThis is the price Wahi expects this property to sell for.
The calculation is powered by our Instant Home Value Estimate, which uses current market and property price trends to estimate your home’s value with a 90% accuracy rate.Not available
Price/Sqft$569/sqft
Monthly cost
Open Calculator
Description
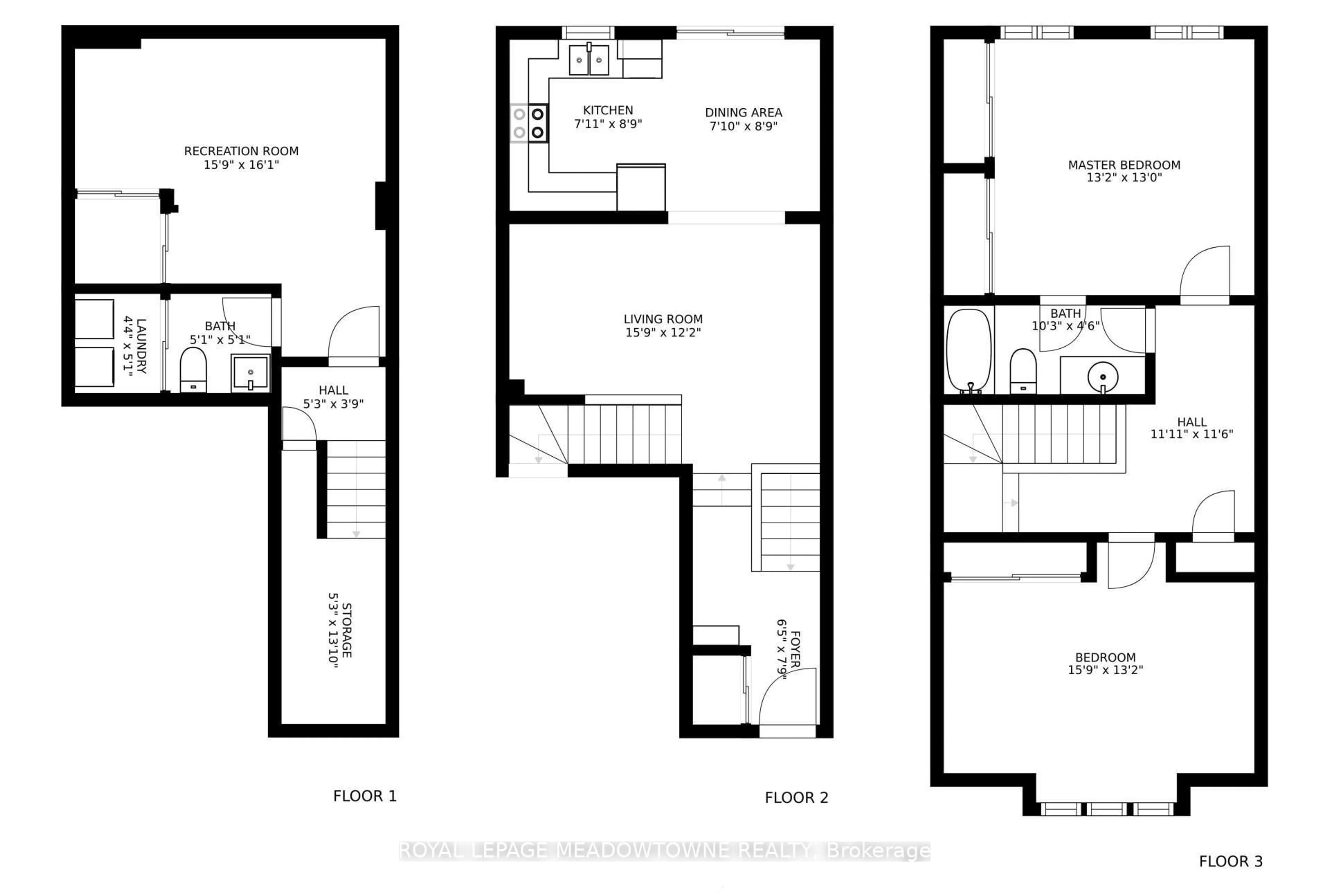
Welcome to this beautiful, freshly painted townhouse in a sought-after Mississauga pocket! Set at the end of a quiet court, this home is perfectly located minutes from Hwys 403/401, Square One, and the GO Station. The main floor features a open-concept living room and a bright dining room with an overview of the backyard. The modern kitchen includes SS appliances, sleek quartz countertops, and a stylish backsplash. This layout features two absolutely massive, king-sized bedrooms-the 2nd bedroom is as large as the Primary! Plus, a versatile flex space easily converts to a 3rd bedroom, office, or gym. The garage Includes a Level 2 EV charger. Enjoy a finished rec room and a clever storage loft in the garage. Turn-key living at its finest! Relax under your private gazebo or enjoy the neighbourhood park just paces away. Steps to visitor parking.
Property Details
Interior
Features
Main Floor
Living
4.8 x 3.71Laminate / O/Looks Dining / Open Concept
Kitchen
2.41 x 2.67Tile Floor / Stainless Steel Appl / Quartz Counter
Dining
2.39 x 2.67Laminate / Overlook Patio
Exterior
Parking
Garage spaces 1
Garage type Attached
Other parking spaces 1
Total parking spaces 2
Condo Details
Inclusions
Property History
32

























