3927 Mayla Dr, Mississauga, Ontario L5M 7Y9
Contact us about this property
Highlights
Estimated valueThis is the price Wahi expects this property to sell for.
The calculation is powered by our Instant Home Value Estimate, which uses current market and property price trends to estimate your home’s value with a 90% accuracy rate.Not available
Price/Sqft$641/sqft
Monthly cost
Open Calculator
Description
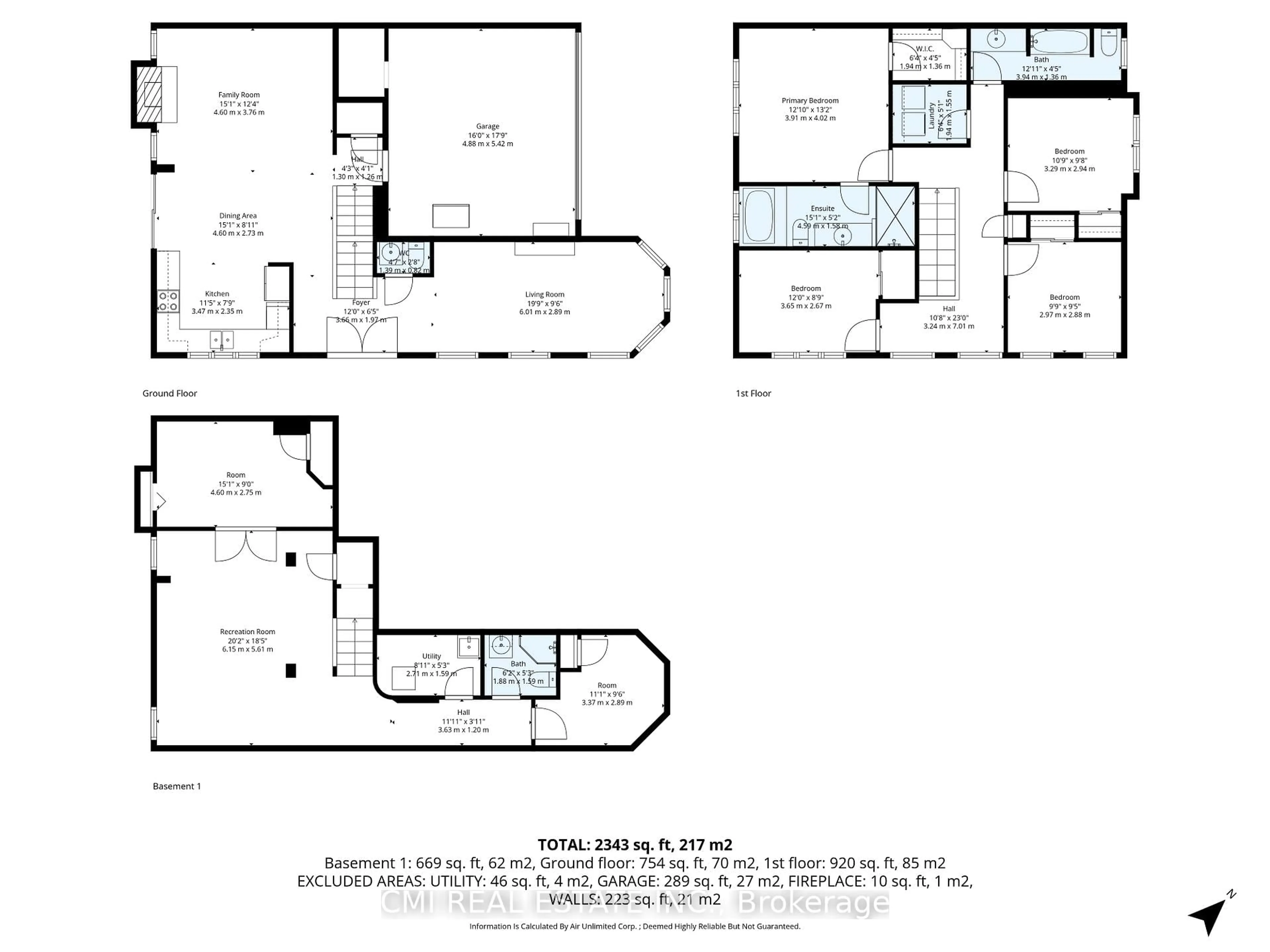
Corner-Lot Detached Home in Prestigious Churchill Meadows This exquisite 4+2 bedroom, 4-bathroom residence perfectly blends sophisticated style with functional living. The heart of the home features an expansive open-concept kitchen equipped with stainless steel appliances, a modern tile backsplash, a center island, and premium cabinetry. Bathed in natural light, the living area flows seamlessly through large shuttered windows and sliding doors to a private backyard oasis complete with a patio and firepit. The second floor hosts four generous bedrooms, including a primary retreat featuring a 4-piece ensuite, a walk-in closet, and picturesque windows. A fully finished basement adds two additional bedrooms, ideal for guests or a home office. Situated steps from top-tier schools, parks, and vibrant shopping, this home offers unparalleled access to major highways and local amenities.
Property Details
Interior
Features
Main Floor
Living
6.01 x 2.89Kitchen
3.47 x 2.35Dining
4.6 x 2.73Family
4.6 x 3.76Exterior
Features
Parking
Garage spaces 2
Garage type Built-In
Other parking spaces 2
Total parking spaces 4
Property History
42



























