10 Farmington Dr, Brampton, Ontario L6W 2V2
Contact us about this property
Highlights
Estimated valueThis is the price Wahi expects this property to sell for.
The calculation is powered by our Instant Home Value Estimate, which uses current market and property price trends to estimate your home’s value with a 90% accuracy rate.Not available
Price/Sqft$788/sqft
Monthly cost
Open Calculator
Description
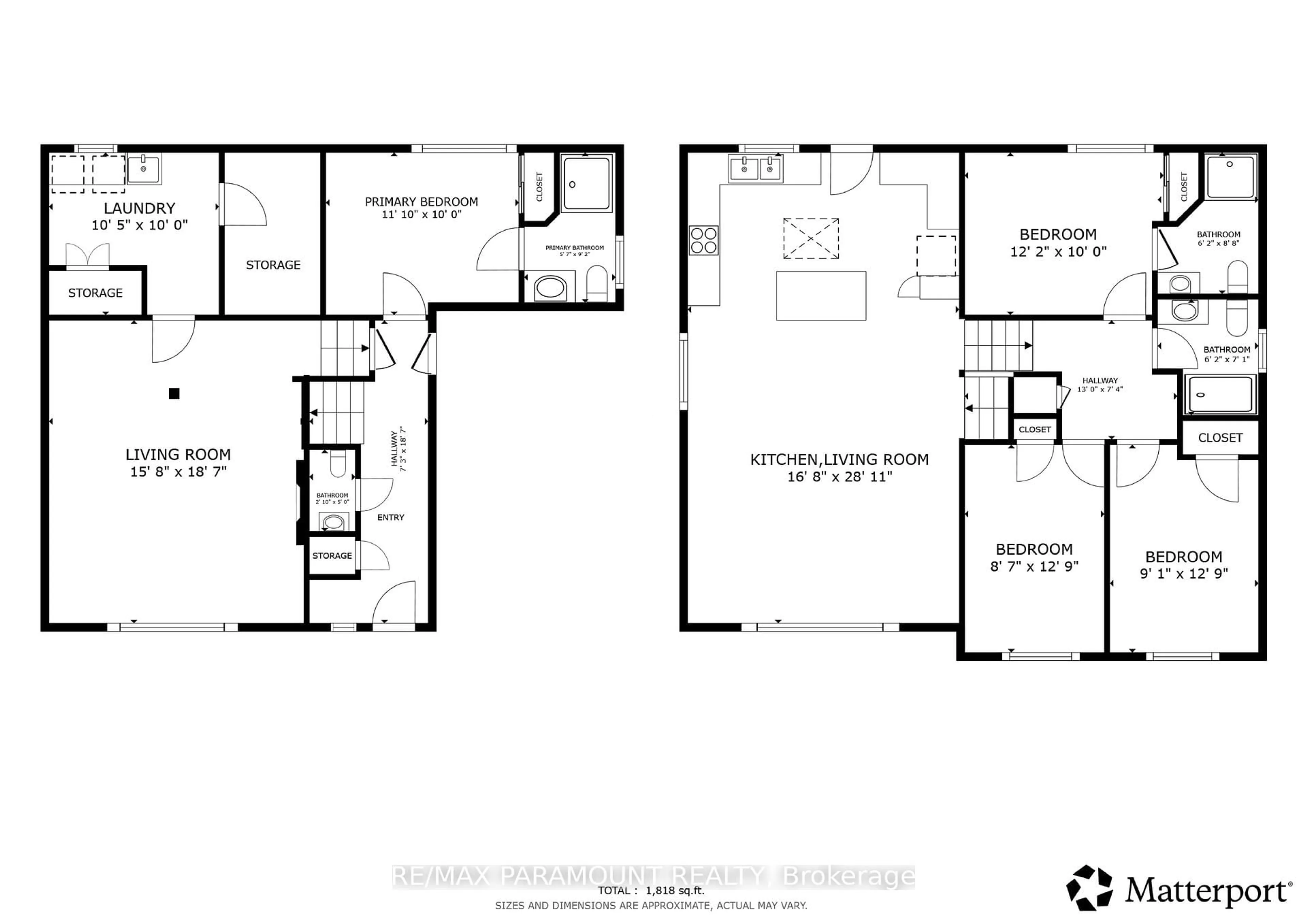
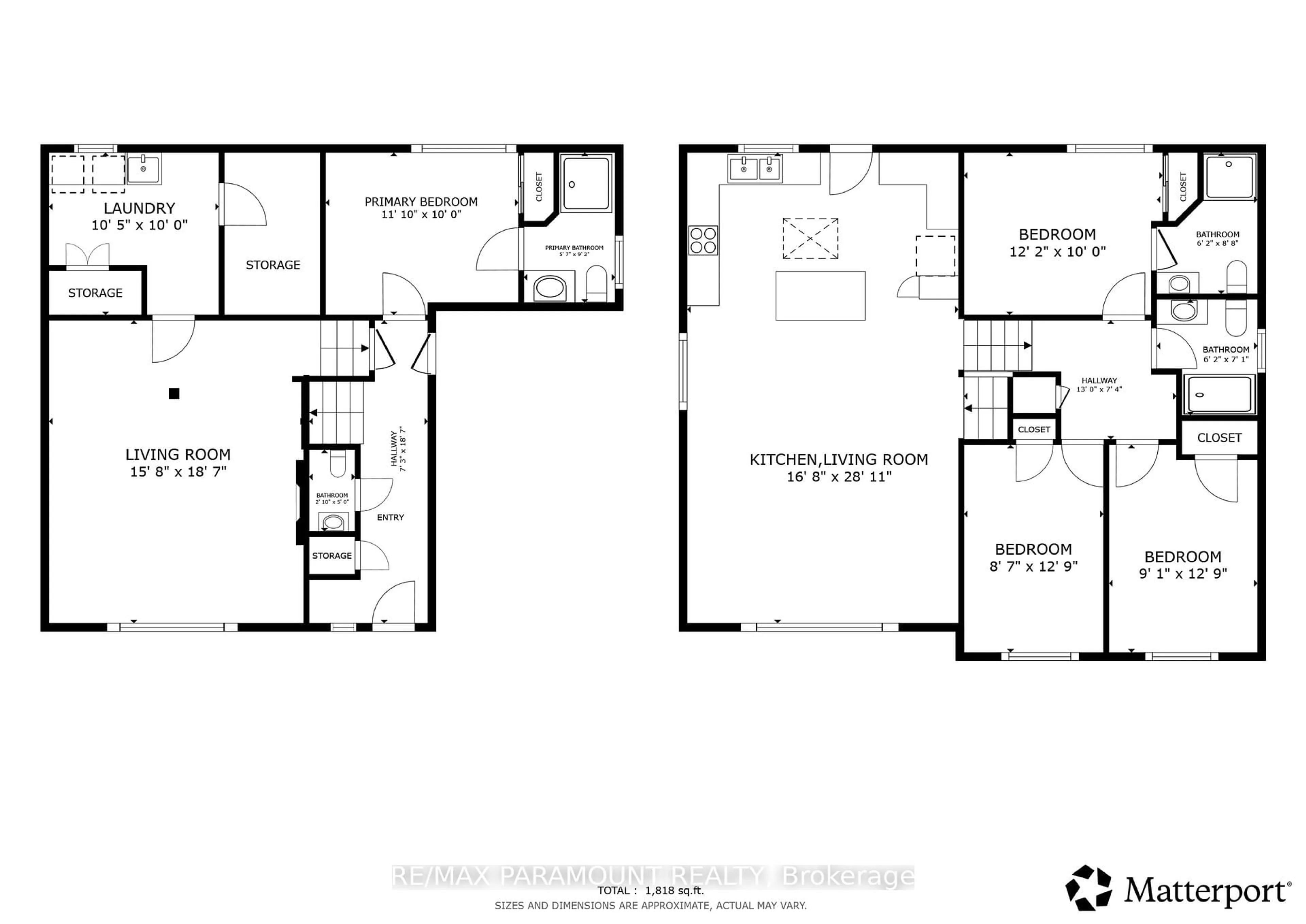
A True Showstopper! Extensively renovated with premium luxury finishes, This stunning 4-Level Side-Split Detached home is situated on 50 x110 Ft lot (Total 1800+ SF Incl.BSMT) offering exceptional space, comfort & modern living Inside & Out.Nestled in a quiet, highly desirable family-friendly neighborhood of Peel Village.Step inside to experience thoughtful design and quality craftsmanship throughout.The ground level welcomes you with a spacious bedroom featuring a private ensuite bathroom, along with a separate powder room-perfect for guests, in-laws, or multi-generational living.The open-concept main floor showcases a sun-filled living room highlighted by a huge picture window, creating a warm and inviting atmosphere.The beautifully upgraded eat-in kitchen features with brand-new stainless steel appliances, under-mount lighting, modern cabinetry, sky light and premium finishes, with a seamless walk-out to a large deck.The upper level offers three generously sized bedrooms and two fully renovated bathrooms, including a relaxing primary bedroom with a private 4-piece ensuite.Fully finished basement provides a huge recreational area, along with a dedicated laundry room, storage, and excellent future potential.Finished 1 Car Garage with epoxy flooring & screen doors.Driveway W/Total 5 Parking Spaces. Outside, enjoy Backyards Oasis with professionally designed two decks(one with glass railings), Storage Shed, complemented by a well maintained front and backyard with beautiful landscaping and In-Ground Sprinkler System for your convenance, Backyard & Soffit Potlights,adding incredible curb appeal day & night. Minutes away from to schools, parks, transit,GO Station&highways, convenience truly meets lifestyle here.Don't Miss This Rare Opportunity-Fall In Love The Moment You Walk In.*EXTRAS* Kitchen, Bathrooms,BSMT & Laundry Room Upgrades,All Appliances, Washer & Dryer, All New Windows By Anderson, Custom Hunter Douglas Blinds-All in 2022. Open House- Sunday - 2 pm to 4 pm
Property Details
Interior
Features
Ground Floor
Br
3.38 x 3.0484 Pc Ensuite / Large Closet / Large Window
Bathroom
2.8 x 1.744 Pc Bath / Tile Floor
Exterior
Features
Parking
Garage spaces 1
Garage type Attached
Other parking spaces 4
Total parking spaces 5
Property History
50
























