2389 Lakeshore Rd, Burlington, Ontario L7R 1B7
Contact us about this property
Highlights
Estimated valueThis is the price Wahi expects this property to sell for.
The calculation is powered by our Instant Home Value Estimate, which uses current market and property price trends to estimate your home’s value with a 90% accuracy rate.Not available
Price/Sqft$991/sqft
Monthly cost
Open Calculator
Description
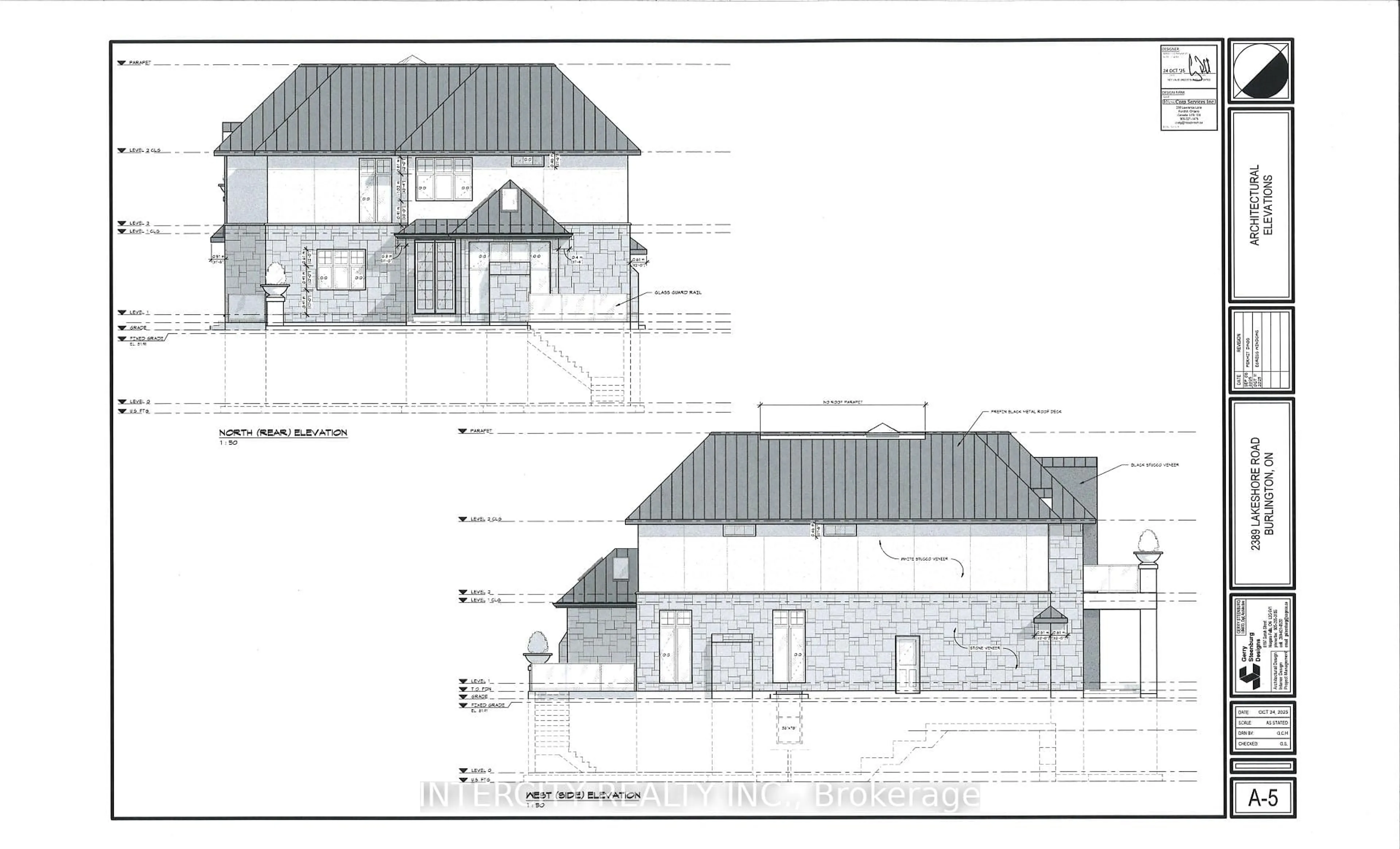
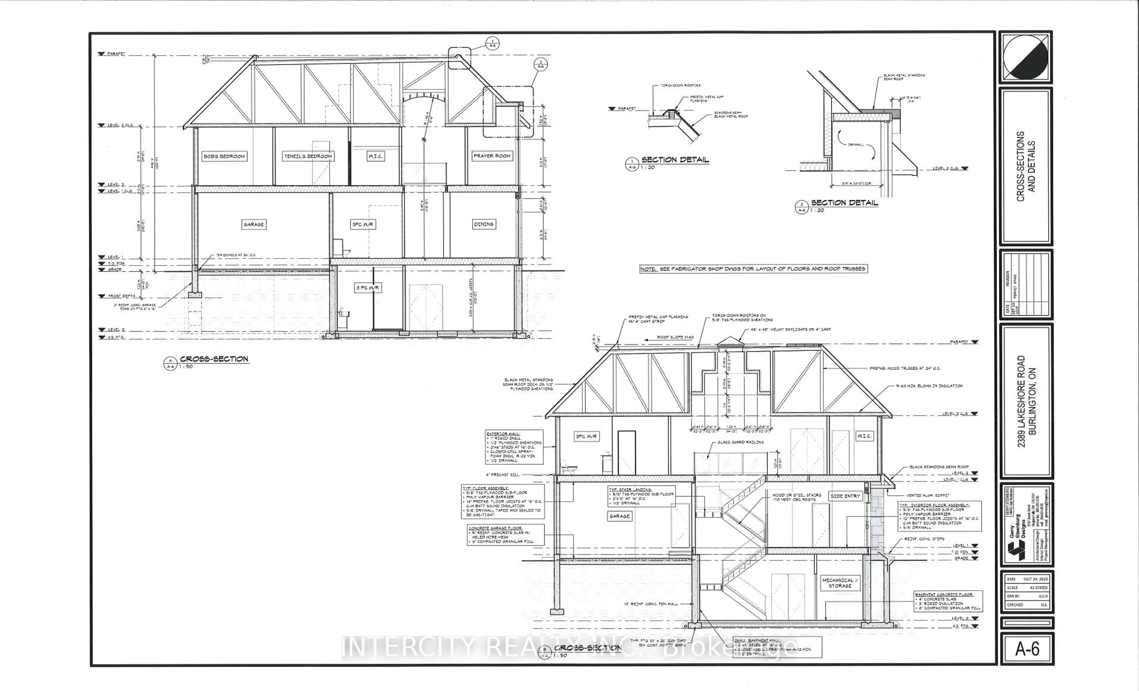
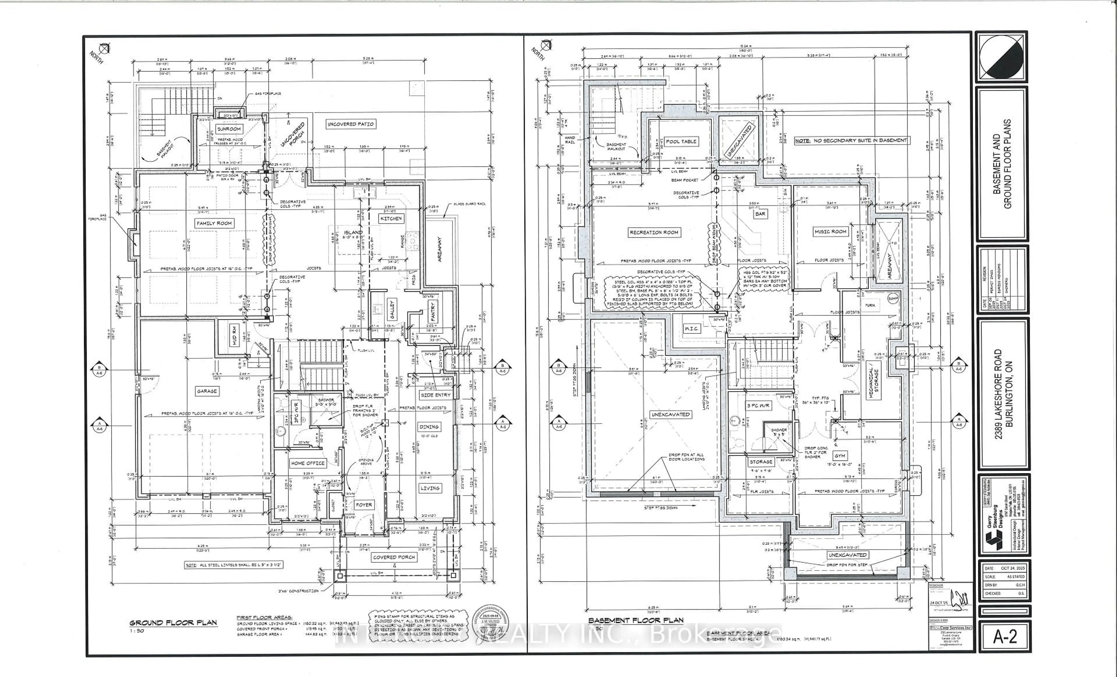
Welcome to 2389 Lakeshore Road property in Burlington, An exceptional opportunity to secure premium corner lot in one of the towns most established and prestigious neighborhood, surrounded by impressive multi million dollar custom homes. Set on a generous 66-foot-wide corner lot, this property offers outstanding potential for homeowners, builders and investors. Property will be sold with a ready permit with architectural drawings available for a stunning custom home offering over 4,000 Sq. Ft. above grade and about over 5,800 8q.ft of total living space including basement. This provides a valuable advantage for buyers who want to move forward with redevelopment without waiting the lengthy planning process. Currently on the lot is older duplex home with 2 kitchens, featuring 3 bedrooms, 2 washrooms and over 1,500 Sq. Ft. This home can be renovated and rented as an investment or held while planning a new build. Another key advantage is the ability to build quickly. Ideally located near top rated private and public schools, lakeshore road, parks, offering access to Burlington's waterfront lifestyle. Architectural drawings and floor plans are available for serious inquiries. This is a great opportunity to build a Luxury custom home in a prime Burlington Neighborhood. Everyone to more welcome to see this site from outside. This is an old house and will be demolished to construct a new house.
Property Details
Interior
Features
Main Floor
Utility
0.0 x 0.0Living
3.98 x 6.12Dining
1.82 x 2.71Bathroom
0.0 x 0.04 Pc Bath
Exterior
Features
Parking
Garage spaces 1
Garage type Detached
Other parking spaces 2
Total parking spaces 3
Property History
6



























