124 Lorne St, Grey Highlands, Ontario N0C 1H0
Contact us about this property
Highlights
Estimated valueThis is the price Wahi expects this property to sell for.
The calculation is powered by our Instant Home Value Estimate, which uses current market and property price trends to estimate your home’s value with a 90% accuracy rate.Not available
Price/Sqft$369/sqft
Monthly cost
Open Calculator
Description
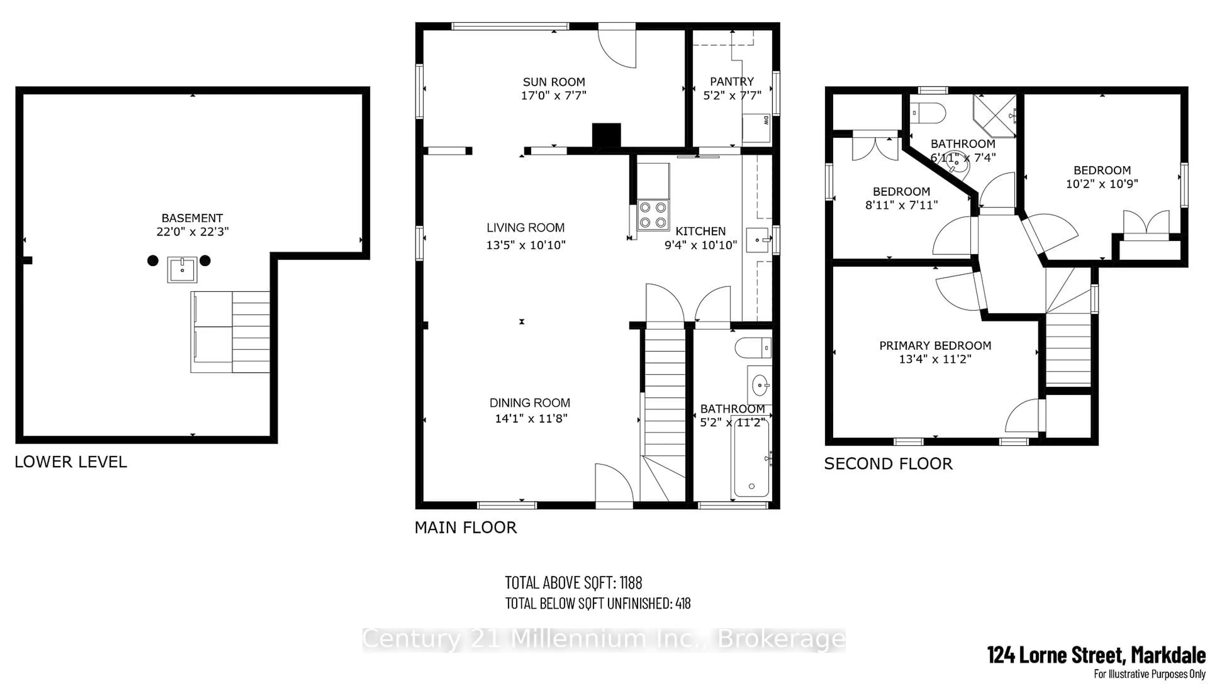
Beautiful mature lot in the heart of Markdale! Welcome to 124 Lorne Street, a charming 1.5-storey home set on a generous 61' x 132' lot surrounded by established trees, offering a peaceful setting within town limits. Featuring 3 bedrooms and 2 bathrooms across approximately 1,200 sq ft, the home offers a functional layout with bright living and dining spaces, a kitchen with pantry, and a sunroom overlooking the backyard. Upstairs, you'll find three comfortable bedrooms and a second full bathroom. Recent improvements include updated flooring, trim, and modern light fixtures with added pot lights, bringing a fresh feel to the interior.The outdoor space is a standout, with a deep lot, mature landscaping, and a backdrop onto a neighbouring church property that offers a uniquely open rear setting. A detached garage with hydro and private driveway provide added convenience. Situated in a quiet, friendly neighbourhood known for its great sense of community, and within walking distance to shops, parks, and amenities. Just a short drive to Owen Sound, Hanover, and Collingwood; enjoy small-town living in the growing community of Markdale.
Property Details
Interior
Features
Main Floor
Dining
4.29 x 3.56Sunroom
5.18 x 2.31Kitchen
2.84 x 3.3Pantry
1.57 x 2.31Exterior
Features
Parking
Garage spaces 1
Garage type Detached
Other parking spaces 2
Total parking spaces 3
Property History
46








