228 OLD SHEDIAC, Memramcook, New Brunswick E4K1W2
Contact us about this property
Highlights
Estimated valueThis is the price Wahi expects this property to sell for.
The calculation is powered by our Instant Home Value Estimate, which uses current market and property price trends to estimate your home’s value with a 90% accuracy rate.Not available
Price/Sqft$155/sqft
Monthly cost
Open Calculator
Description
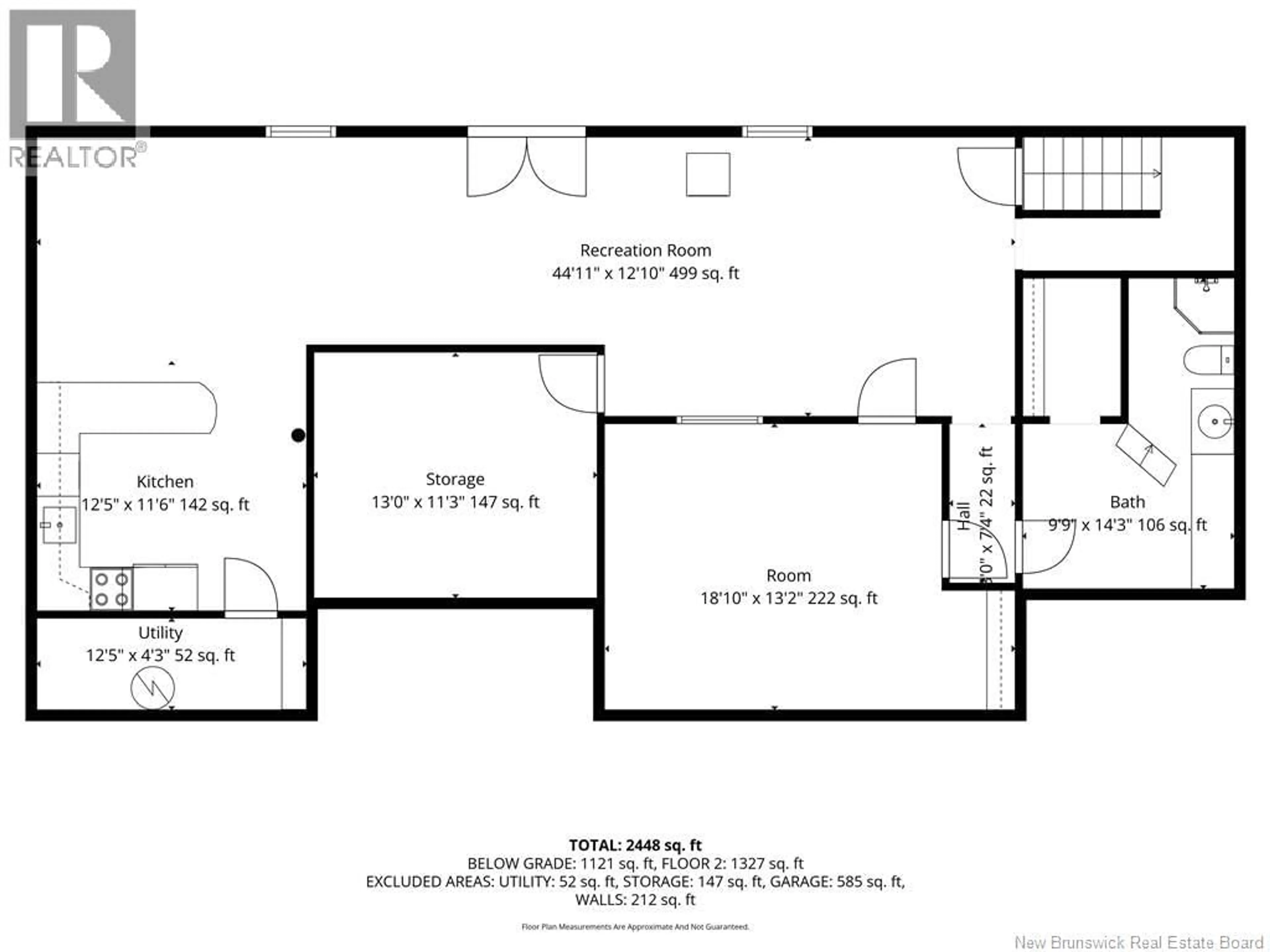
Dont miss this opportunity! Sitting on over 2 acres of land in the beautiful village of Memramcook, this charming bungalow with a double attached garage is a true gem. Step inside to discover a spacious kitchen featuring plenty of cabinetry, a stylish backsplash, stainless steel appliances, and a cooktop conveniently located on the island. The islands raised bar seating overlooks the inviting living room perfect for entertaining family and friends. The main level offers two generous bedrooms, a large 4-piece bathroom, and a convenient laundry area to complete the space. The fully finished walk-out basement adds even more living space, featuring a large family room, kitchen, dining area, a non-conforming bedroom, a spacious living room, and a full bathroom ideal for guests or extended family. This home is efficiently heated and cooled with a mini-split heat pump. Outside, youll love the expansive wooded backyard, paved driveway, double attached garage, and an additional detached garage for all your storage or workshop needs. Call today for more details or to schedule your private viewing! (id:39198)
Property Details
Interior
Features
Basement Floor
3pc Bathroom
14'3'' x 9'9''Storage
11'3'' x 13'0''Utility room
4'3'' x 12'5''Kitchen
11'6'' x 12'5''Property History

