18 PARK DRIVE, Miramichi, New Brunswick E1N2Y9
Contact us about this property
Highlights
Estimated valueThis is the price Wahi expects this property to sell for.
The calculation is powered by our Instant Home Value Estimate, which uses current market and property price trends to estimate your home’s value with a 90% accuracy rate.Not available
Price/Sqft$221/sqft
Monthly cost
Open Calculator
Description
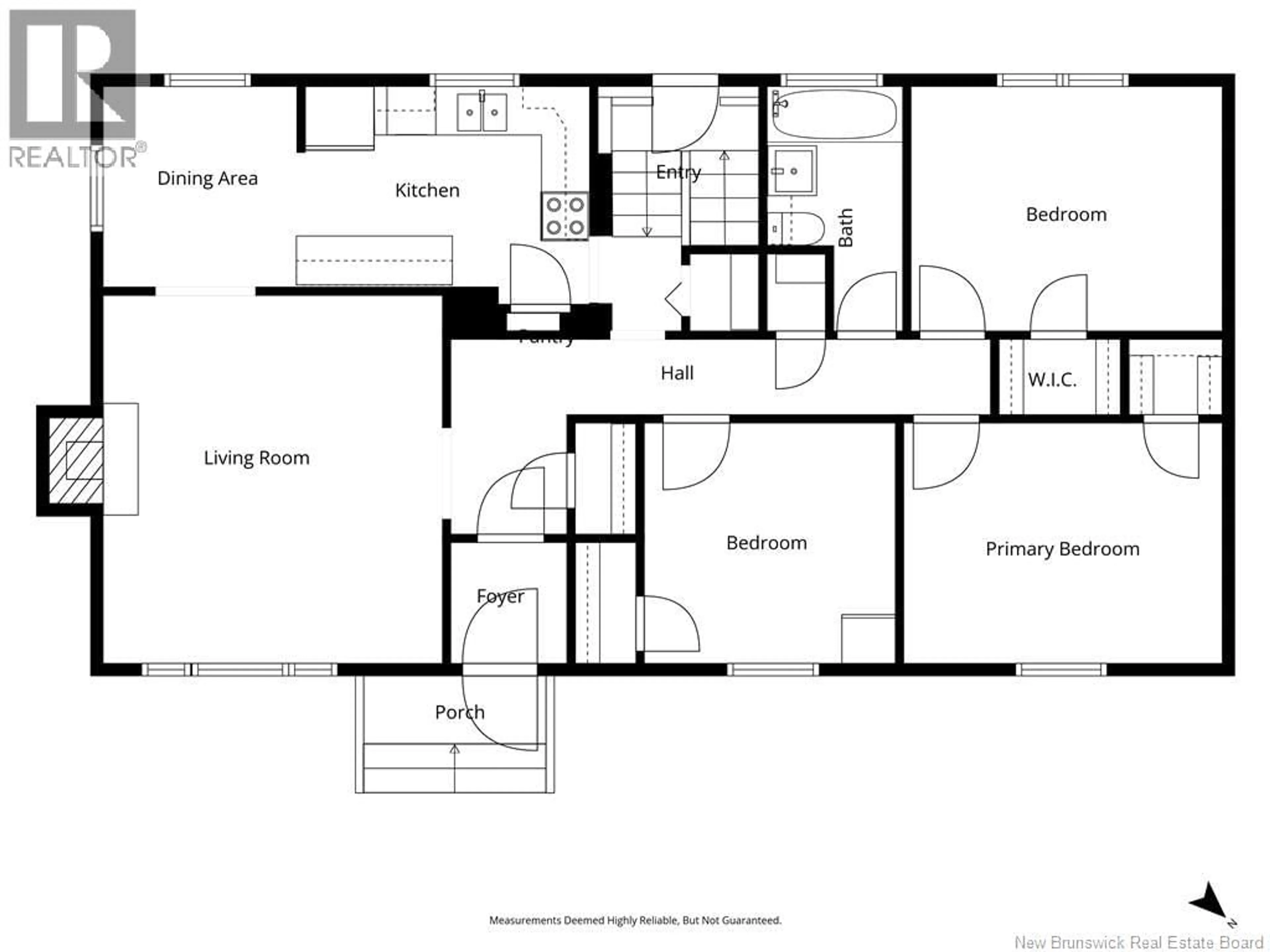
Welcome to this well-cared-for, one-owner family home located in a sought-after subdivision of Miramichi East (Chatham). Surrounded by well-kept homes and within walking distance to the historic downtown Chatham area, this location is ideal for families. Sitting across from a park and playground, it offers a perfect setting for children and outdoor enjoyment. This bungalow-style home features a paved driveway, garage, garden shed, and a private backyard framed by a cedar hedge for excellent privacy. Inside, the front entry opens into a spacious living room with beautiful hardwood floors, a large picture window overlooking the park, and an electric fireplace (easily convertible back to wood if desired). Toward the back of the home, youll find a dining area and an updated kitchen with ample cabinetry. The kitchen includes a new fridge, stove, and range hood installed in 2024. The main level also offers three comfortable bedrooms along with a full bathroom. The home is efficiently heated with two mini-split heat pumps (one on each level) as well as electric baseboard heating. The lower level provides an opportunity for future development, with a large partially finished area ready for your vision. It already includes a second bathroom, non-conforming bedroom, and a convenient cold room. The washer and dryer are also located on this level. Homes in this location are in high demanddont miss your opportunity to own a property in one of Miramichi Easts most desirable areas. (id:39198)
Property Details
Interior
Features
Basement Floor
Bath (# pieces 1-6)
8'1'' x 5'2''Bedroom
11'1'' x 13'0''Property History
30





