3 - 7805 DALLAS DRIVE, Kamloops, British Columbia V2C0E5
Contact us about this property
Highlights
Estimated valueThis is the price Wahi expects this property to sell for.
The calculation is powered by our Instant Home Value Estimate, which uses current market and property price trends to estimate your home’s value with a 90% accuracy rate.Not available
Price/Sqft$459/sqft
Monthly cost
Open Calculator
Description
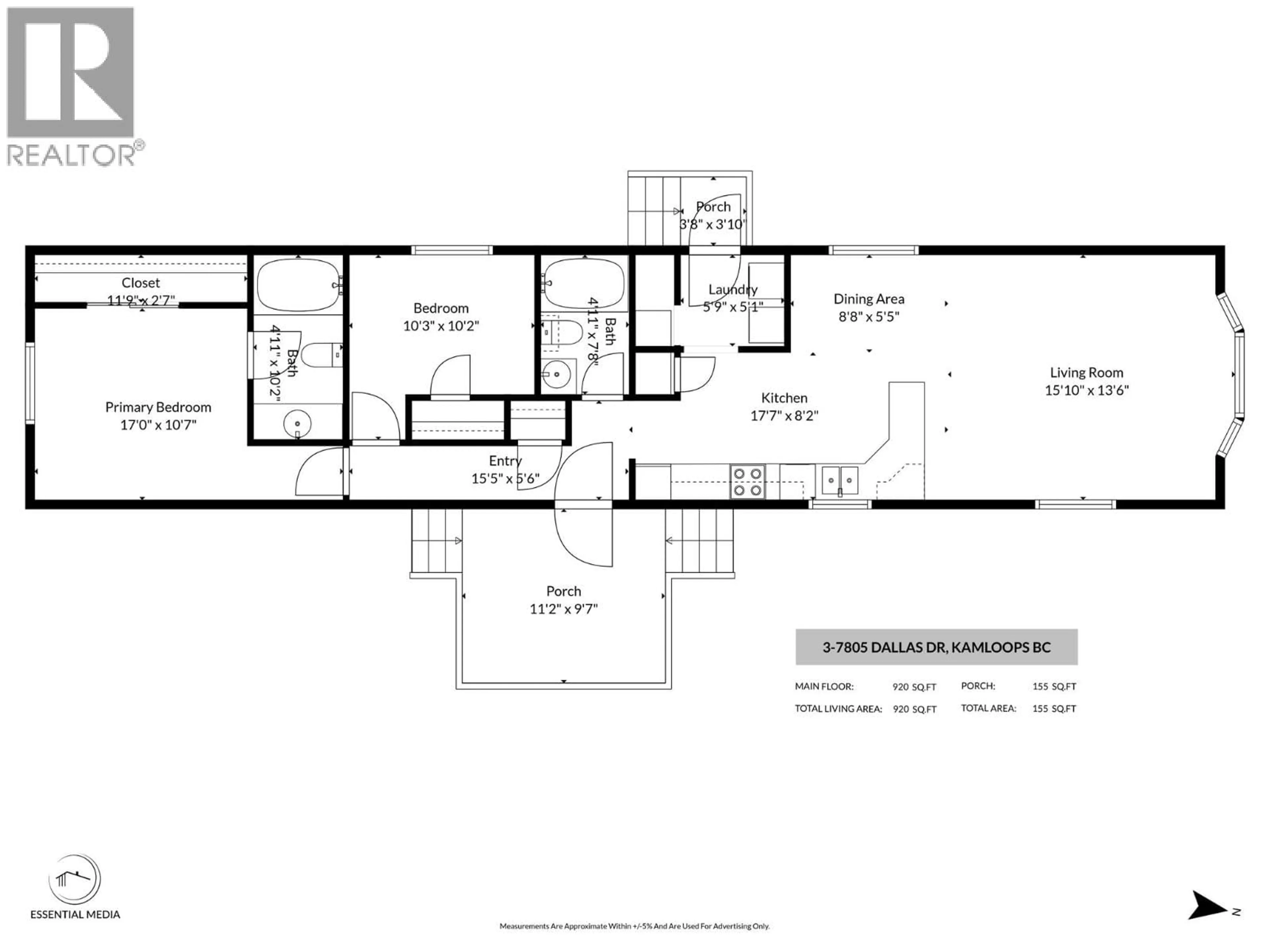
Great unit in sought-after Kokanee Court bareland strata. This fantastic home built in 2011 sits on one of the largest lots in the park. Step inside and you will find a large kitchen with plenty of prep space + new microwave & dishwasher. The kitchen opens to the living and dining areas making it great for entertaining. You'll love taking in the mountain views from the living room as this unit has the living room on the view side. Laundry is located just off the kitchen where there is also a second entrance/exit to the yard. There are two bedrooms including a large primary suite with a 4-piece ensuite bathroom. The spare bedroom is a great place for guests or for an office and there is also an additional 4pc main bathroom for guests. Outside the yard is xeroscaped, fenced, and low-maintenance. There is plenty of room for all your outdoor projects if desired or leave the landscaping as is for easy care. Also outside is a great covered deck for enjoying summer evenings or barbecues. Fantastic complex that is very well-kept with a low bareland strata fee of $130.00 per month. This complex is across the street from Co-op gas station and convenience store for all your essential needs and is just a quick 5-minute drive to the grocery store at Dallas Town Centre. Don’t miss this great home that allows for low-cost living. Book your showing today. (id:39198)
Property Details
Interior
Features
Main level Floor
Bedroom
10'5'' x 7'4''4pc Ensuite bath
4pc Bathroom
Primary Bedroom
10'10'' x 11'5''Condo Details
Inclusions
Property History
 42
42





