757 LORNE CRESCENT, Campbell River, British Columbia V9W5Z1
Contact us about this property
Highlights
Estimated valueThis is the price Wahi expects this property to sell for.
The calculation is powered by our Instant Home Value Estimate, which uses current market and property price trends to estimate your home’s value with a 90% accuracy rate.Not available
Price/Sqft$365/sqft
Monthly cost
Open Calculator
Description
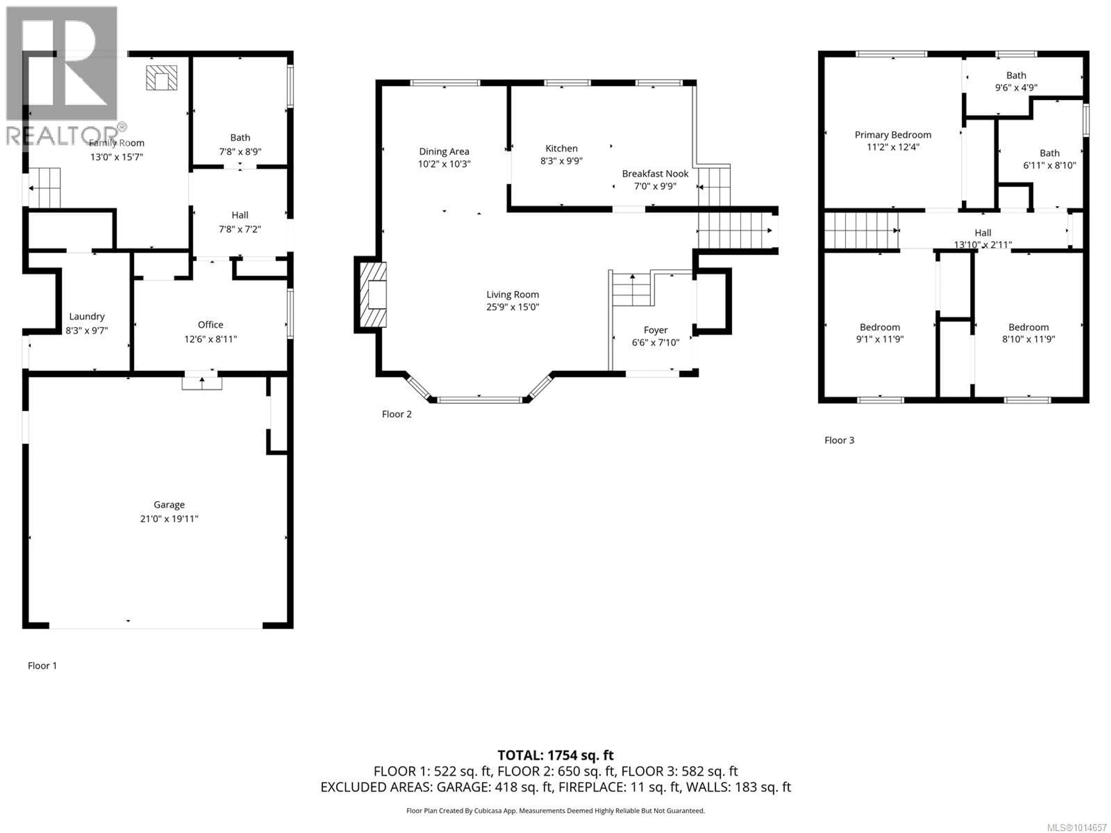
Beautiful family home on quiet cul-de-sac. 3 bedrooms 3 bathrooms, most of the heavy lifting has been done to update this home. Heat pump, windows and roof shingles have been replaced within the last 3-5 years. Wonderful family floor plan with a main floor living room, eating area, sunken family room and dining room. Up stairs has 3 bedrooms, and 2 bathrooms Shows well! Easy to show. Priced for quick sale. Vacant and ready to move in. (id:39198)
Property Details
Interior
Features
Second level Floor
Primary Bedroom
11'6 x 12'6Ensuite
Bedroom
11 x 10Bedroom
11 x 11Exterior
Parking
Garage spaces -
Garage type -
Total parking spaces 4
Property History

