13673 283 ROAD, Fort St. John, British Columbia V0C1H0
Contact us about this property
Highlights
Estimated valueThis is the price Wahi expects this property to sell for.
The calculation is powered by our Instant Home Value Estimate, which uses current market and property price trends to estimate your home’s value with a 90% accuracy rate.Not available
Price/Sqft$279/sqft
Monthly cost
Open Calculator
Description
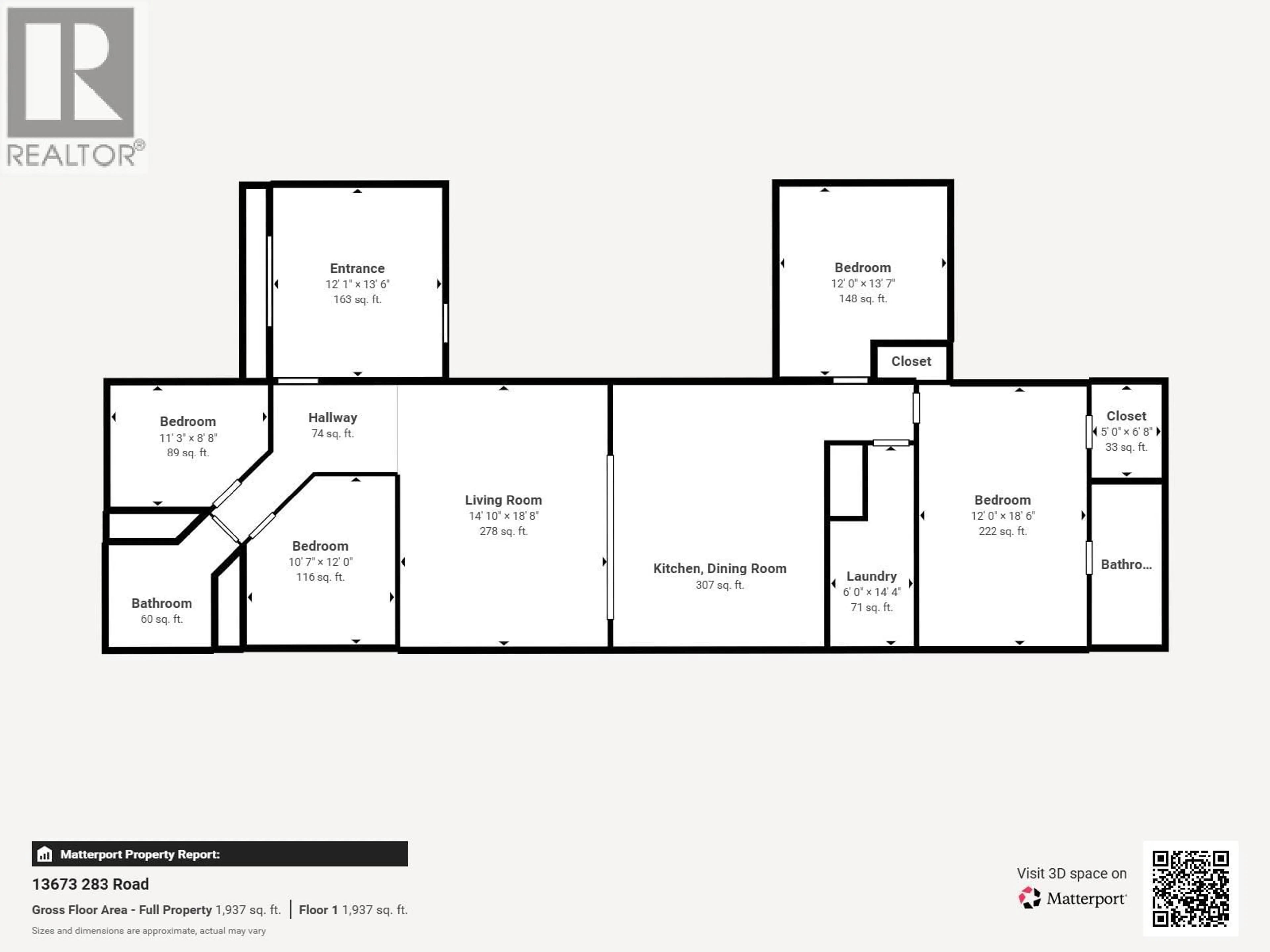
Welcome to your dream retreat. This beautifully maintained 4 bed, 2 bath home features a luxurious ensuite and a spacious walk-in closet. The crisp white modern kitchen is a chef's delight, complete with French doors that open up and extend to the stunning back deck - perfect for entertaining or simply enjoying the serene surroundings. Set on 4.5 acres of fully fenced land just 15 min from downtown. This acreage offers breathtaking views and a tranquil atmosphere. Spend your evenings watching the Northern Lights from your covered porch or explore your land, which include fruit tree, an electrified chicken coop, and a very large shed. Additional highlights include updated electrical- 30 amp RV service, Well, Lagoon and a grand foyer that welcomes you home. (id:39198)
Property Details
Interior
Features
Main level Floor
Foyer
13.4 x 11.1Living room
14.8 x 18.7Kitchen
15.8 x 8.1Dining room
15.3 x 9.8Property History

