301 PUTTER PLACE, Nanaimo, British Columbia V9T1V2
Contact us about this property
Highlights
Estimated valueThis is the price Wahi expects this property to sell for.
The calculation is powered by our Instant Home Value Estimate, which uses current market and property price trends to estimate your home’s value with a 90% accuracy rate.Not available
Price/Sqft$225/sqft
Monthly cost
Open Calculator
Description
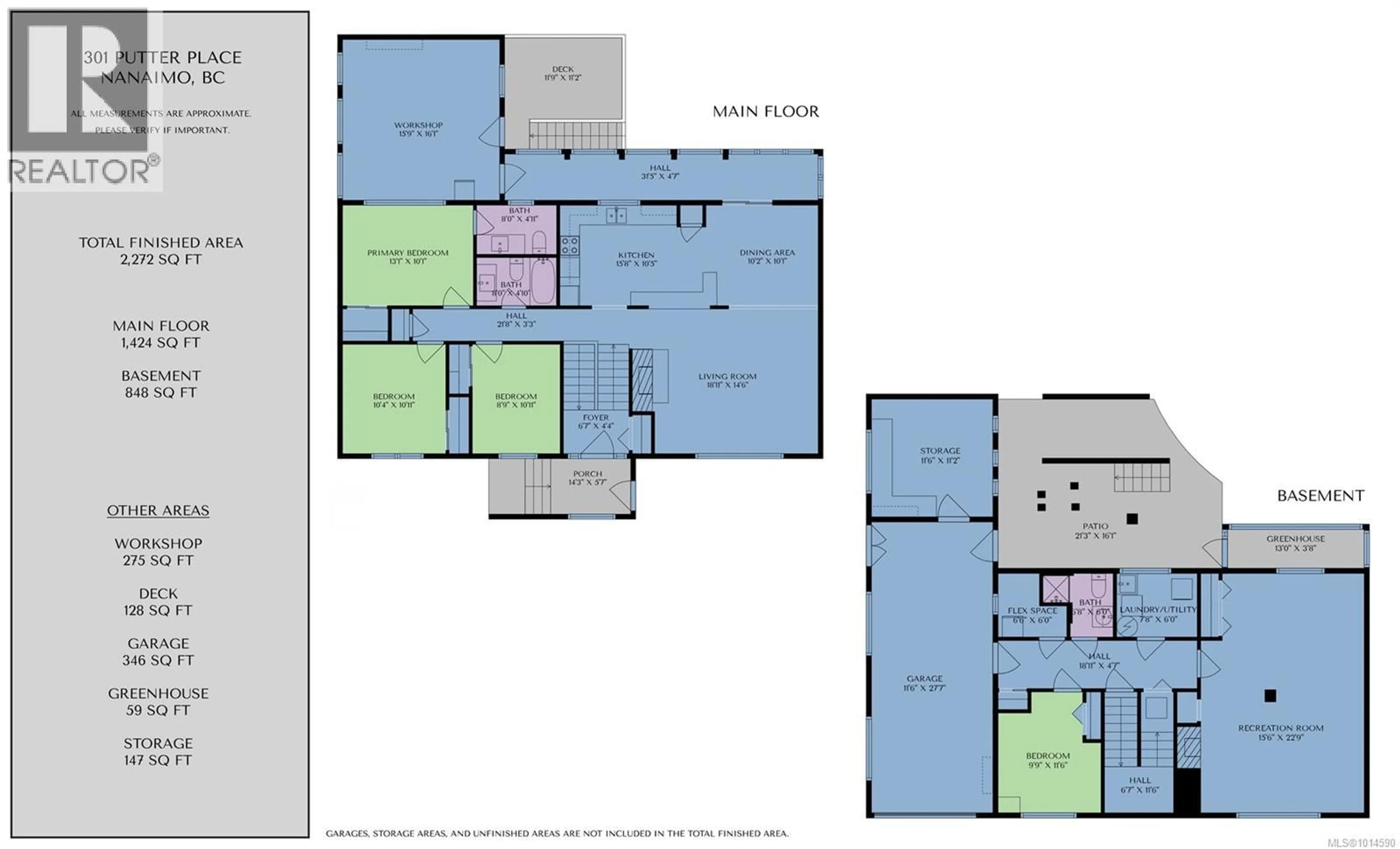
Classic Departure Bay 4 bedroom, 3 bathroom family home! Corner lot on quiet cul-de-sac with plenty of parking for RV or boat, close to schools, beach & all amenities. The main level offers 3 spacious bedrooms & 4-PC bathroom, incl. the primary bedroom with 2-piece ensuite. Enjoy a large functional kitchen with updated appliances that flows into the dining area & cozy living room anchored by a classic brick fireplace. Large updated windows throughout, framing the canopy of greenery and mature trees. Access the back sunroom, deck & bonus studio space where you can focus on hobbies, play music or just hang out w/ friends. Downstairs has a large rec-room, wood-burning fireplace, additional bedroom or office, 3-PC bathroom, laundry & utility room. Ample storage including garage & workshop with access to the private yard, greenhouse & fruit trees. Walk to Rock City & Wellington Schools. In a sought after neighbourhood this home offers great value, move in ready with room to expand your vision, it truly is a hidden gem. (id:39198)
Property Details
Interior
Features
Lower level Floor
Storage
6'6 x 6Workshop
11'2 x 11'6Laundry room
7'8 x 6Bedroom
11'6 x 9'9Exterior
Parking
Garage spaces -
Garage type -
Total parking spaces 6
Property History

