5211 BRIDLEWOOD DRIVE, Chilliwack, British Columbia V2R5W9
Contact us about this property
Highlights
Estimated valueThis is the price Wahi expects this property to sell for.
The calculation is powered by our Instant Home Value Estimate, which uses current market and property price trends to estimate your home’s value with a 90% accuracy rate.Not available
Price/Sqft$342/sqft
Monthly cost
Open Calculator
Description
Welcome to this beautifully renovated home in the heart of Promontory. Featuring a modern open-concept design, this home is perfect for families and first-time buyers alike. Located in a highly sought-after, family-oriented neighbourhood, you'll love being close to schools, parks, trails, and shopping while surrounded by stunning mountain views. The bright and stylish interior offers plenty of space to enjoy, while the bonus 1-bedroom suite provides great rental income or space for extended family. Priced to sell, this home combines comfort, convenience, and value in one of Chilliwack's most desirable areas. * PREC - Personal Real Estate Corporation (id:39198)
Property Details
Interior
Features
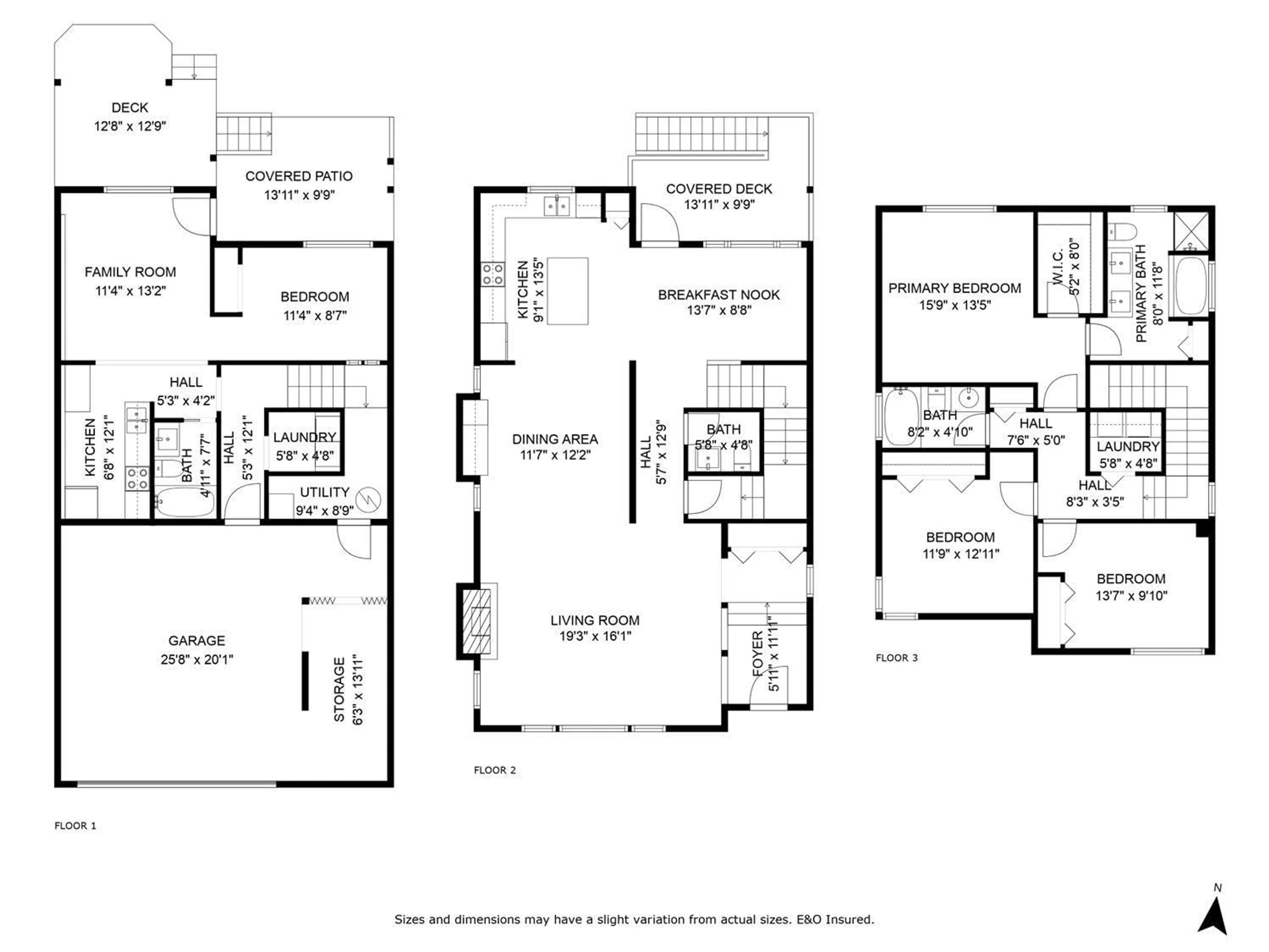
Main level Floor
Foyer
5.9 x 11.1Living room
19.2 x 16.1Dining room
11.5 x 12.2Kitchen
9.3 x 13.5Property History
 40
40



