1221 CHERRY ROAD, Saanich, British Columbia V8Z2Y4
Contact us about this property
Highlights
Estimated valueThis is the price Wahi expects this property to sell for.
The calculation is powered by our Instant Home Value Estimate, which uses current market and property price trends to estimate your home’s value with a 90% accuracy rate.Not available
Price/Sqft$370/sqft
Monthly cost
Open Calculator
Description
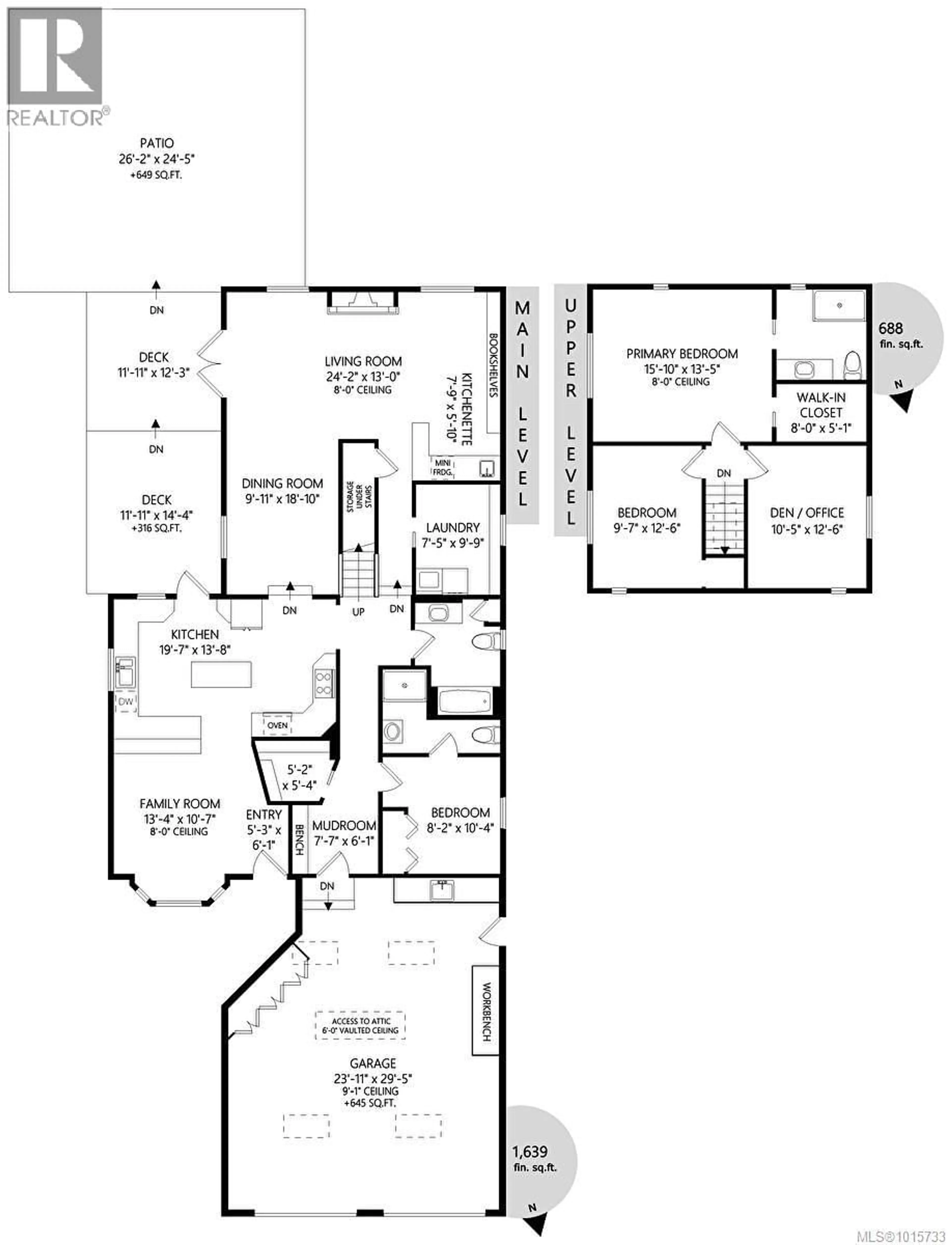
This exceptional 4-bed, 3-full-bath home has been tastefully updated & is perfectly designed for modern living & entertaining. Step inside to discover a large, spacious kitchen & bright eating area with bay windows. The open living area features built-ins, crown molding, a cozy gas fireplace & wet bar, creating the ideal setting for gatherings. The home shines with updates throughout, including hardwood flooring, renovated bathrooms & newer roof. Unwind in the generous primary, boasting a large ensuite & walk-in closet—your private sanctuary. Outside, enjoy seamless indoor-outdoor living with a redone backyard patio & garden, complete with a sprinkler system. Car enthusiasts & hobbyists will love the huge double car garage offering extra space for storage, plus plumbing & electrical for potential future use. With abundant parking, this home easily accommodates all your vehicles & toys, including an RV hookup outside. Centrally located conveniently in Saanich West, you are close to everything including Camosun Interurban. (id:39198)
Property Details
Interior
Features
Main level Floor
Other
5'10 x 7'9Mud room
6'1 x 7'7Bathroom
Storage
5'4 x 5'2Exterior
Parking
Garage spaces -
Garage type -
Total parking spaces 5
Property History
43




