NW - 9938 222A ST, Edmonton, Alberta T5T7L7
Contact us about this property
Highlights
Estimated valueThis is the price Wahi expects this property to sell for.
The calculation is powered by our Instant Home Value Estimate, which uses current market and property price trends to estimate your home’s value with a 90% accuracy rate.Not available
Price/Sqft$287/sqft
Monthly cost
Open Calculator
Description
Affordable Luxury in Secord! Welcome to this beautifully maintained 3 bedroom, 2.5 bath, two-storey single-family home located in the highly sought-after west-end community of Secord. This property combines modern finishes, practical design, and exceptional value—offering true affordable luxury. Additional highlights include central air conditioning, water softener, and a water filtration system, composite deck, and pergola. The extended double attached garage provides extra storage space and secure parking. Located in a quiet, family-friendly neighborhood, this home is close to parks, schools, shopping, and major transportation routes—offering both convenience and community. (id:39198)
Property Details
Interior
Features
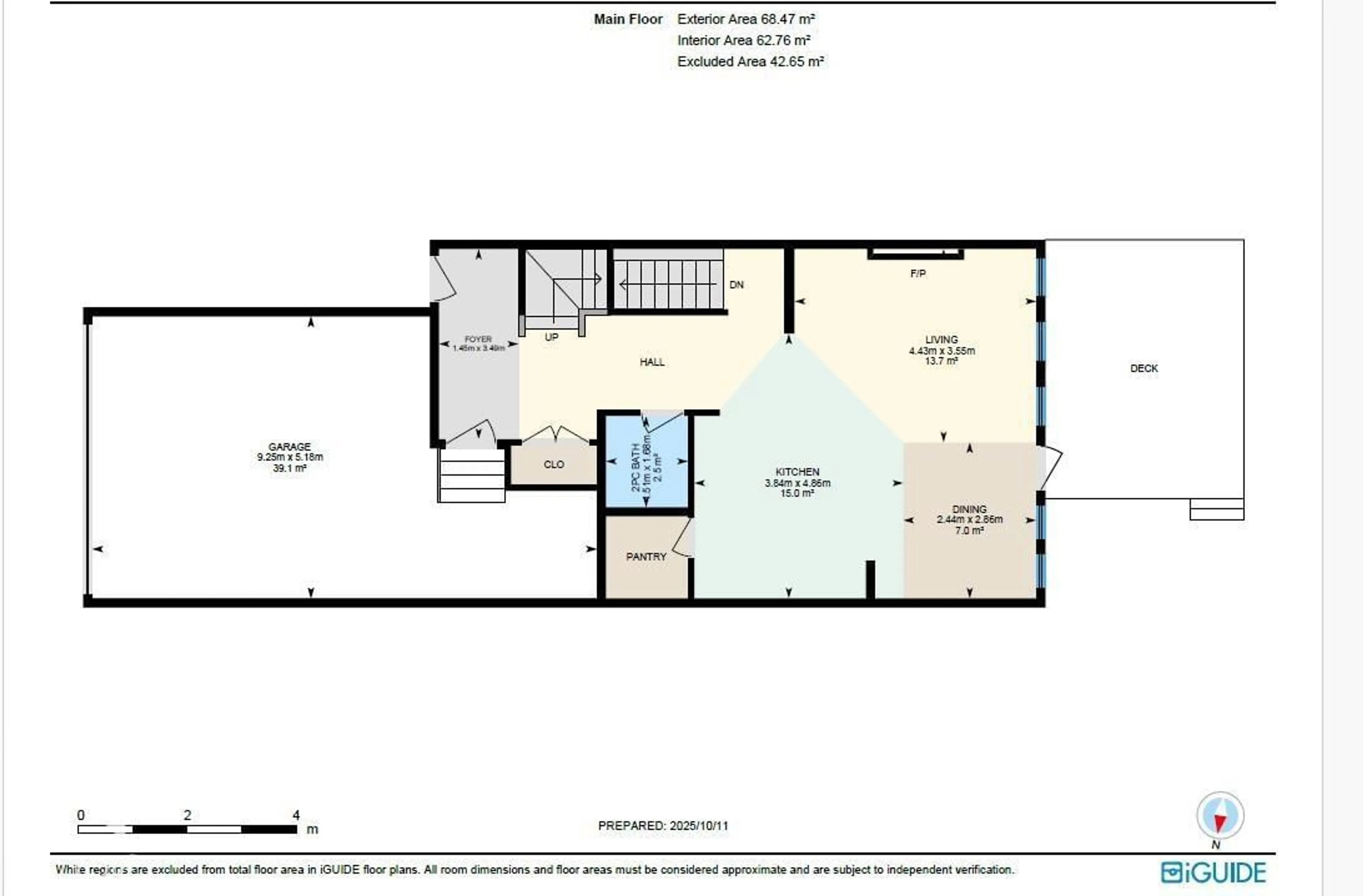
Main level Floor
Living room
14 x 11Dining room
8 x 9Kitchen
12 x 15Property History

