SW - 3053 ARTHURS CR, Edmonton, Alberta T6W2H8
Contact us about this property
Highlights
Estimated valueThis is the price Wahi expects this property to sell for.
The calculation is powered by our Instant Home Value Estimate, which uses current market and property price trends to estimate your home’s value with a 90% accuracy rate.Not available
Price/Sqft$372/sqft
Monthly cost
Open Calculator
Description
Welcome to this stunning 2-storey home in the heart of Allard, thoughtfully designed for modern living. With 3 spacious bedrooms upstairs and 2.5 baths, it offers a perfect balance of style and function. The main floor is highlighted by upgraded cork flooring, a cozy gas fireplace, and expansive windows that fill the space with natural light. The partially finished basement provides additional living space with an impressive open-to-above design. Outside, the pie-shaped yard is a private retreat—fully landscaped with mature trees and perennials, fenced for privacy, and siding onto a walking path for easy access to the outdoors. An oversized 22x24 heated garage with attic storage and a 240v outlet pairs perfectly with an extra parking pad for guests, RV, or boat. With central A/C, endless natural light, and a prime location near schools, parks, shops, and amenities, this home truly offers the lifestyle you’ve been waiting for. (id:39198)
Property Details
Interior
Features
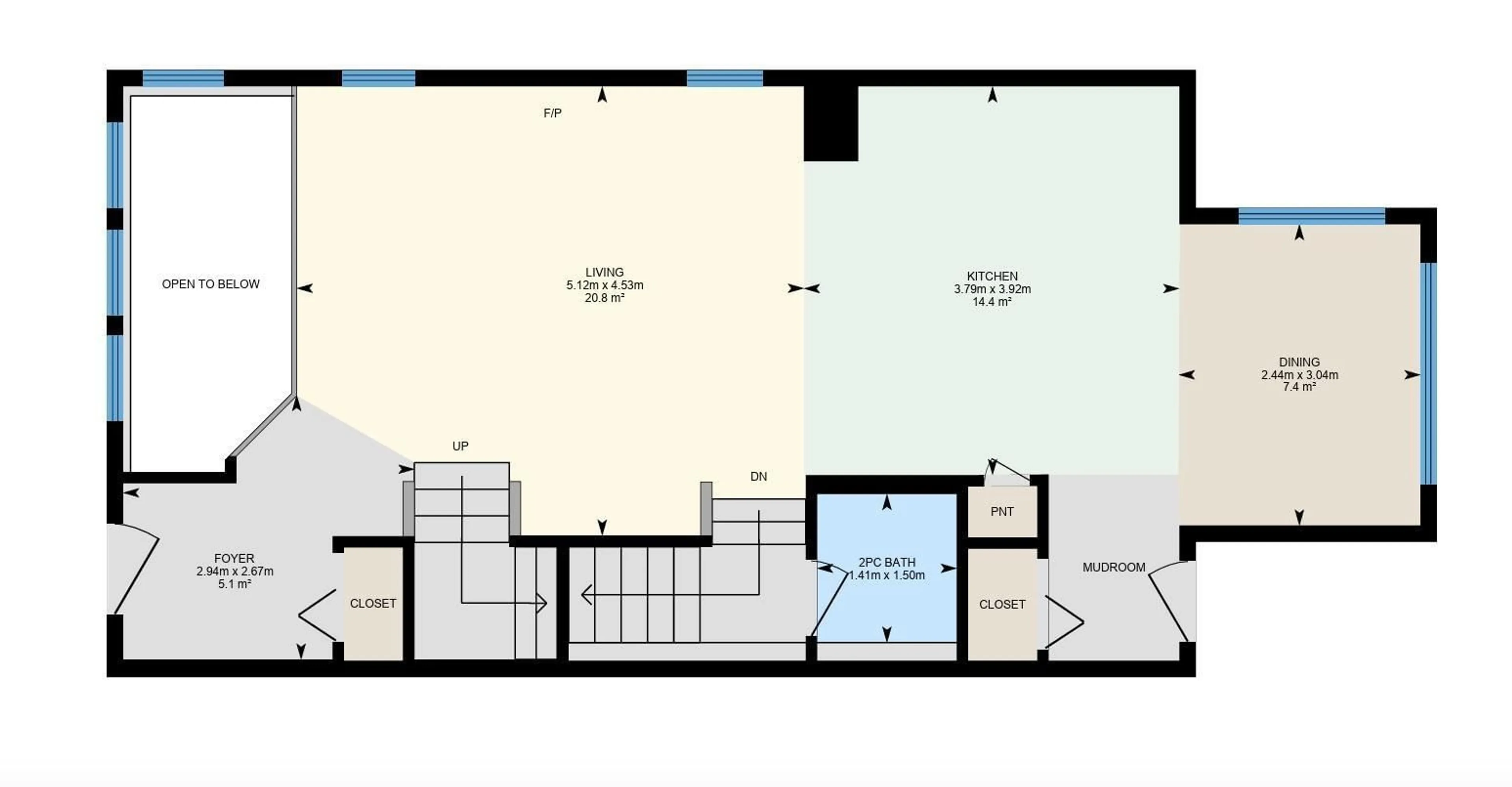
Main level Floor
Living room
4.53 x 5.21Dining room
3.04 x 2.44Kitchen
3.92 x 3.79Exterior
Parking
Garage spaces -
Garage type -
Total parking spaces 4
Property History

