15 Glebe St #1310, Cambridge, Ontario N1S 0C3
Contact us about this property
Highlights
Estimated valueThis is the price Wahi expects this property to sell for.
The calculation is powered by our Instant Home Value Estimate, which uses current market and property price trends to estimate your home’s value with a 90% accuracy rate.Not available
Price/Sqft$586/sqft
Monthly cost
Open Calculator
Description
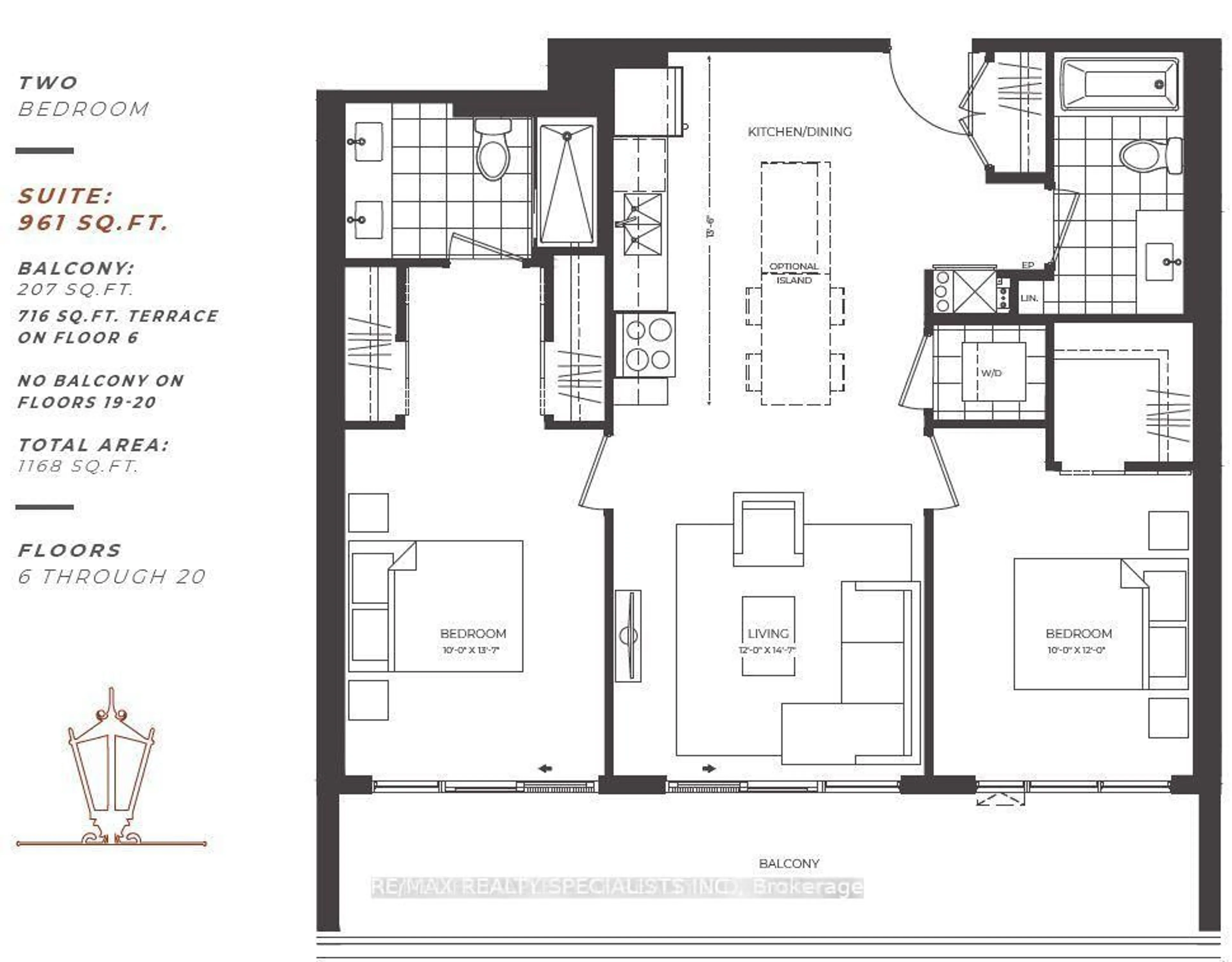
Experience luxury condo living in this stunning 2-bedroom, 2-bath suite located in the highly sought-after tower of the vibrant Gaslight District, just steps from the Grand River. This beautifully designed unit features floor-to-ceiling windows with unforgettable sunset views, a spacious modern kitchen with upgraded stainless steel appliances, a large quartz island, and the convenience of an in-unit washer and dryer. The primary bedroom offers true comfort with his-and-hers closets and a spa-like ensuite complete with double sinks and a walk-in shower. Step out onto your private balcony to enjoy serene, unobstructed views. One parking spot is included for added convenience. Residents enjoy an unmatched lifestyle with access to a state-of-the-art fitness and yoga studio, games room, stylish lounges, coworking spaces, party room with bar, and multiple outdoor terraces overlooking Gaslight Square-complete with fire pits, pergolas, and BBQ areas. Outside your door await riverfront trails, charming cafés, local shops, weekend farmers markets, and the district's exciting restaurants, bars, and brewery. This is your chance to live in one of the city's most energetic and desirable communities-book your private showing today!
Property Details
Interior
Features
Flat Floor
2nd Br
3.04 x 3.65Laminate / W/I Closet
Living
3.65 x 4.44Laminate / Balcony
Primary
3.04 x 4.14Laminate / His/Hers Closets / 5 Pc Ensuite
Dining
4.11 x 3.65Centre Island / Combined W/Kitchen
Exterior
Features
Parking
Garage spaces 1
Garage type Underground
Other parking spaces 0
Total parking spaces 1
Condo Details
Amenities
Bbqs Allowed, Bus Ctr (Wifi Bldg), Exercise Room, Games Room, Gym, Party/Meeting Room
Inclusions
Property History
48


















