Contact us about this property
Highlights
Estimated valueThis is the price Wahi expects this property to sell for.
The calculation is powered by our Instant Home Value Estimate, which uses current market and property price trends to estimate your home’s value with a 90% accuracy rate.Not available
Price/Sqft$379/sqft
Monthly cost
Open Calculator

Curious about what homes are selling for in this area?
Get a report on comparable homes with helpful insights and trends.
+143
Properties sold*
$790K
Median sold price*
*Based on last 30 days
Description
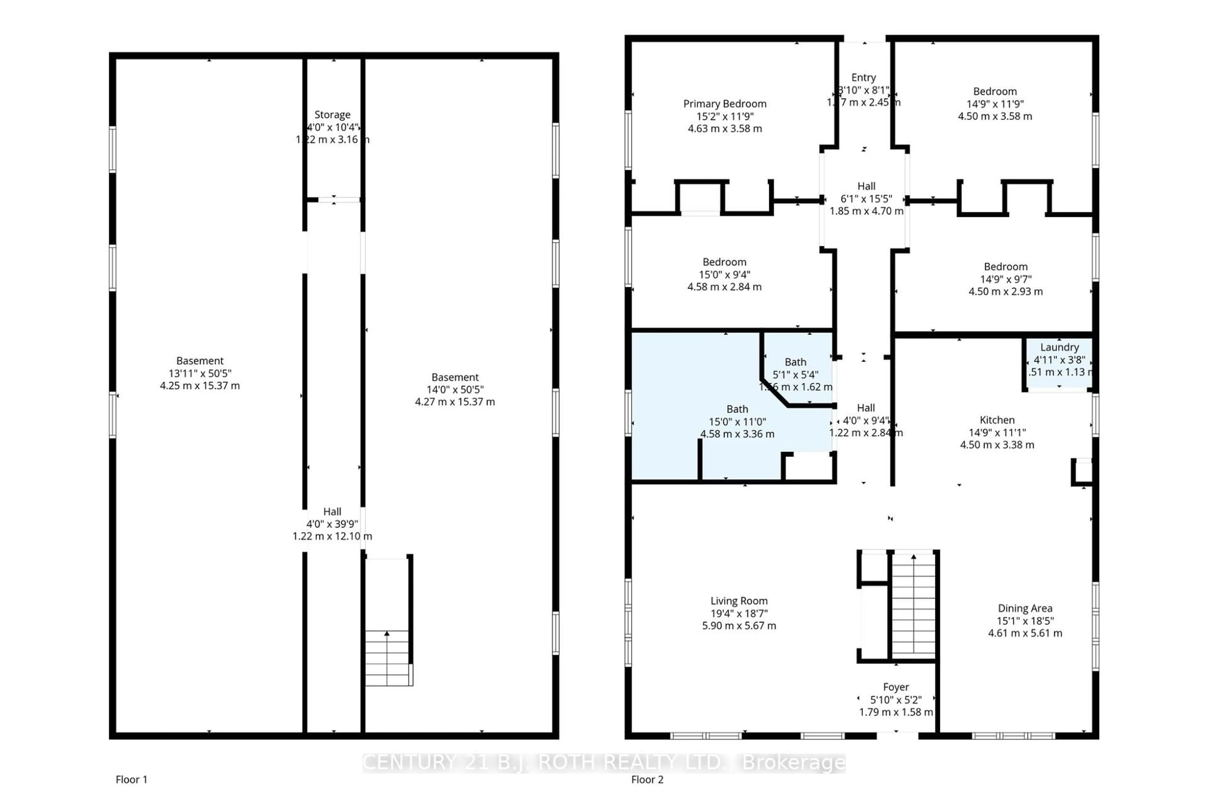
Welcome to 263 Anne St N, Barrie! This well-maintained bungalow offers nearly 2,000 sq ft of thoughtfully designed main floor living space, making it an ideal opportunity for investors, group home organizations, or anyone seeking wheelchair-accessible living. Equipped for accessibility, the home features front and rear ramps, widened doorways and hallways and accessible bathrooms. Key upgrades include a Generac generator, fire suppression system, durable steel roof, newer furnace, central air conditioning, and updated windows. Inside, you're welcomed into a bright and expansive living room filled with natural light. The open-concept kitchen boasts ample cabinetry and a functional peninsula, seamlessly flowing into an oversized dining area - perfect for family gatherings or entertaining. The main floor offers four generously sized bedrooms, large 5-piece accessible non barrier free bathroom and a convenient 2-piece powder room, all designed with mobility in mind. The partially finished basement provides additional space ready to be customized to suit your needs - whether its more bedrooms, a rec room, or additional storage. Outside, enjoy a spacious, mature yard with a massive wheelchair-accessible deck, ideal for relaxing or outdoor entertaining. Great value to be had with this huge bungalow in a great location! Walk to schools and parks, public transit at your door! Dont miss this rare opportunity to own a versatile, accessible home with so much to offer!
Property Details
Interior
Features
Main Floor
Living
5.9 x 5.67Laminate
Kitchen
4.5 x 3.38Vinyl Floor / Combined W/Laundry / Breakfast Bar
Dining
4.61 x 5.61Open Concept / Vinyl Floor
Br
4.5 x 2.93Laminate
Exterior
Features
Parking
Garage spaces -
Garage type -
Total parking spaces 4
Property History
36























