221 MERCURY St, Clarence-Rockland, Ontario K4K 0E8
Contact us about this property
Highlights
Estimated valueThis is the price Wahi expects this property to sell for.
The calculation is powered by our Instant Home Value Estimate, which uses current market and property price trends to estimate your home’s value with a 90% accuracy rate.Not available
Price/Sqft$343/sqft
Monthly cost
Open Calculator
Description
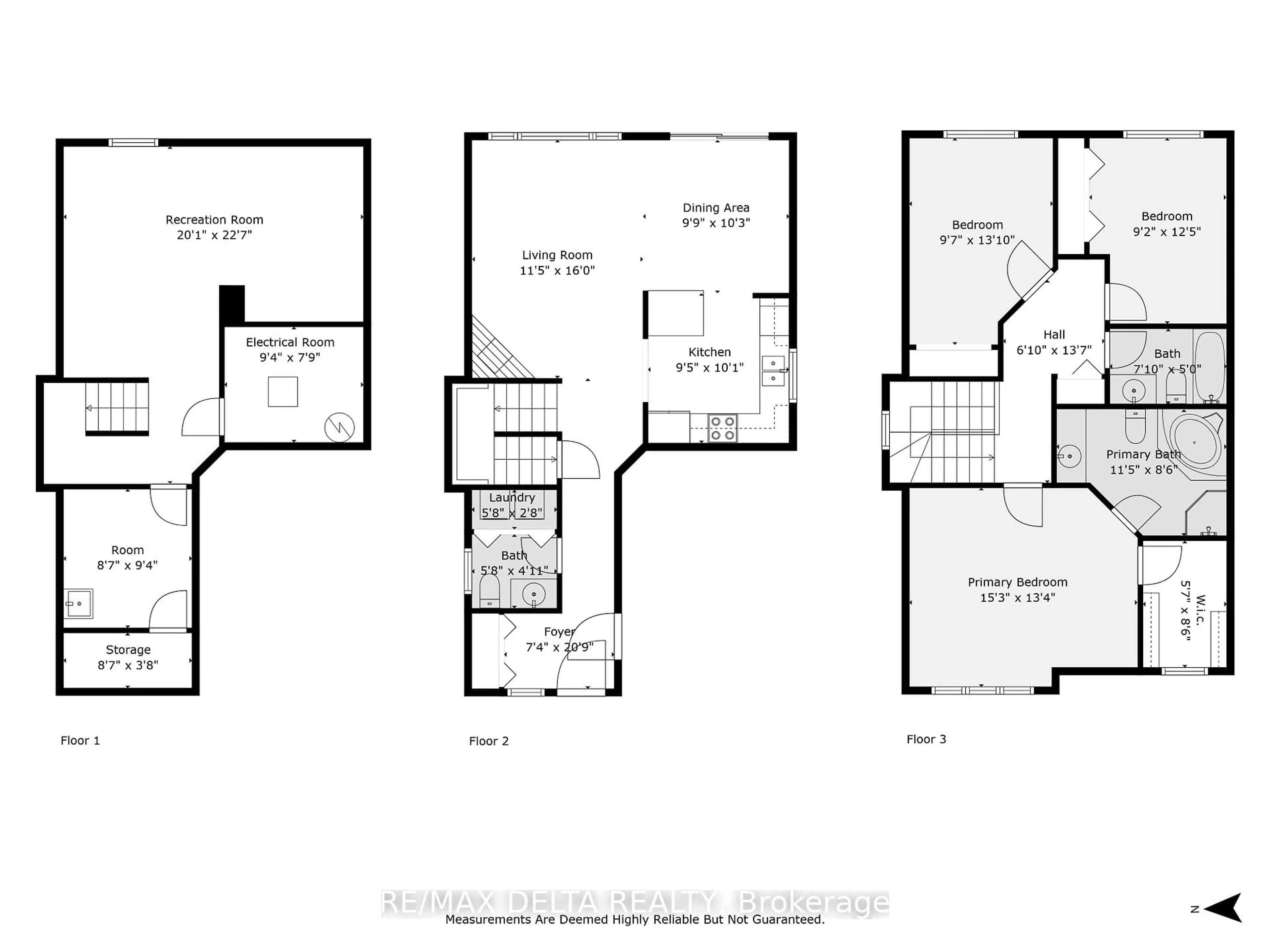
Welcome home! Located on a pie shaped lot with extra-wide backyard, this move-in ready home shows pride of ownership and attention to details. The main floor boasts a bright open concept kitchen, dining room and living room with large windows and views to the landscaped backyard. The gourmet kitchen includes stainless steel appliances and plenty of counter and storage space. Adjacent dining area and living room with gas fireplace and tall ceilings, ideal for entertaining. Also on the main floor is the 2 pcs bathroom/laundry room and access to the garage. Upstairs, a wide hallway leads to the main bedroom with en-suite bathroom and 2 bright bedrooms with large closets. The basement is currently use as a bachelor pad and home-based business and could easily be turned into recreation room with bedroom and washroom. The oversized backyard is ideal for families who like to BBQ and spend time outside. This property is located about one minute walk from Deschamps park, ideal for kids of all ages! Move-in ready. 24H irrevocable on all offers.
Property Details
Interior
Features
2nd Floor
Primary
4.64 x 4.06Br
2.92 x 4.21Br
2.79 x 3.78Exterior
Features
Parking
Garage spaces 1
Garage type Attached
Other parking spaces 3
Total parking spaces 4
Property History
40















