547 Denbury Ave, Ottawa, Ontario K2A 2N8
Contact us about this property
Highlights
Estimated valueThis is the price Wahi expects this property to sell for.
The calculation is powered by our Instant Home Value Estimate, which uses current market and property price trends to estimate your home’s value with a 90% accuracy rate.Not available
Price/Sqft$673/sqft
Monthly cost
Open Calculator
Description
Beautiful and spacious TRUE 5-bedroom home, ideally situated in one of Ottawa's most coveted neighbourhoods - just steps to top-rated schools including Broadview PS, Nepean HS, and Notre Dame HS, along with Dovercourt Rec Centre, parks, the Farmers' Market at Byron Linear Park, and the boutiques and restaurants of Westboro Village. Exceptional curb appeal with a welcoming front verandah - an inviting spot to enjoy your morning coffee. Inside, the inviting living room is filled with natural light from an oversized bow window. The elegant formal dining room features a classic buffet cove, ideal for hosting large gatherings. The spacious kitchen offers granite countertops, centre island, and a seamless layout that flows into the family room with gas fireplace. A convenient main floor powder room completes this level. Hardwood flooring runs throughout both the main and second levels, complemented by a hardwood staircase. The expansive primary suite offers a true retreat, complete with built-in bench seating, two walk-in closets, and a spa-like 5-piece ensuite with dual sinks, marble tile, a soaker tub, and separate shower. Four additional well-sized bedrooms, each with large closets, along with an updated main bathroom complete the second level. The finished basement offers a large recreation room with beverage bar, a 2-piece bath, laundry area, and abundant storage. Outdoors, discover a private, fully fenced backyard oasis, thoughtfully designed with a covered deck (2021), hot tub, and interlock patio - an exceptional setting for relaxing or entertaining with family and friends. Enjoy the perfect blend of urban convenience and neighbourhood charm - this is a home and lifestyle not to be missed! No conveyance of offers until Monday, March 30th at 1pm.
Upcoming Open Houses
Property Details
Interior
Features
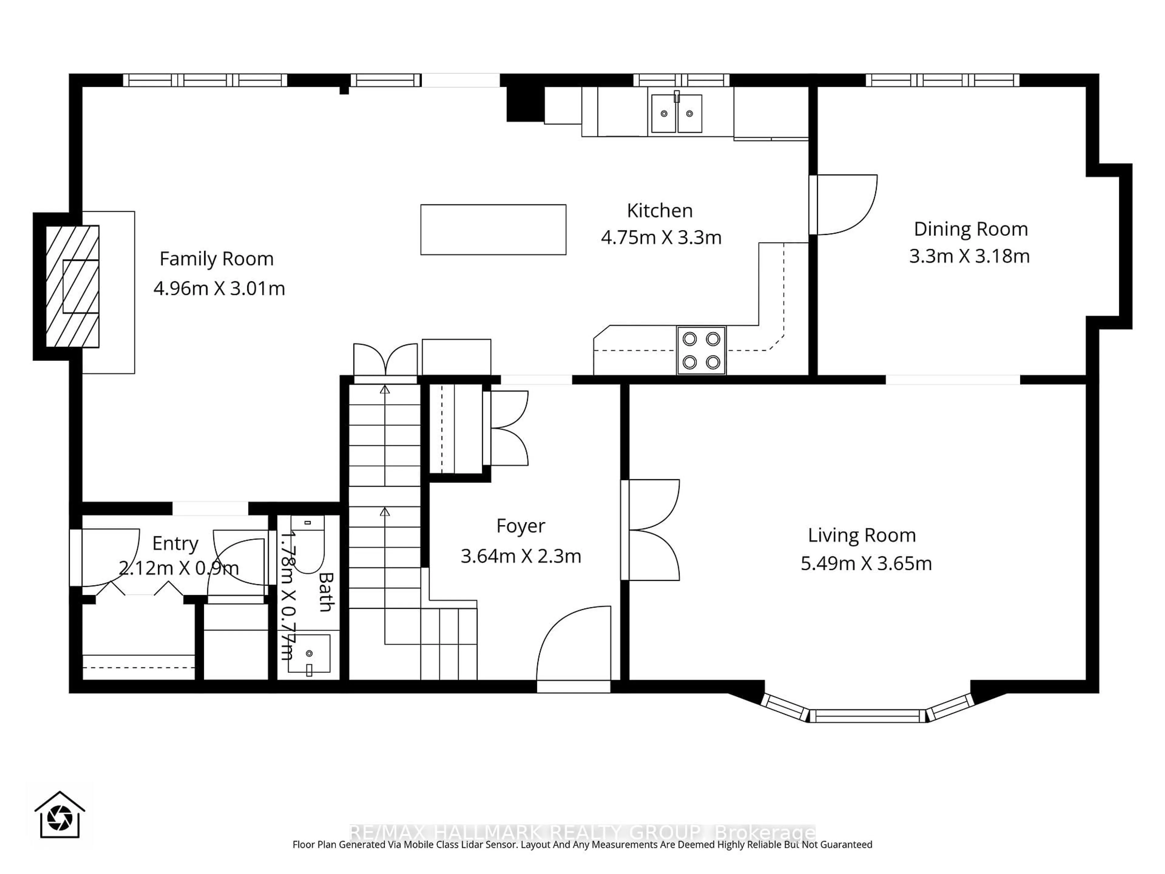
Main Floor
Foyer
3.64 x 2.3Living
5.49 x 3.65Dining
3.3 x 3.18Kitchen
4.75 x 3.3Exterior
Features
Parking
Garage spaces 1
Garage type Attached
Other parking spaces 4
Total parking spaces 5
Property History
41














