348 Donald B. Munro Dr, Carp, Ontario K0A 1L0
Contact us about this property
Highlights
Estimated valueThis is the price Wahi expects this property to sell for.
The calculation is powered by our Instant Home Value Estimate, which uses current market and property price trends to estimate your home’s value with a 90% accuracy rate.Not available
Price/Sqft$466/sqft
Monthly cost
Open Calculator
Description
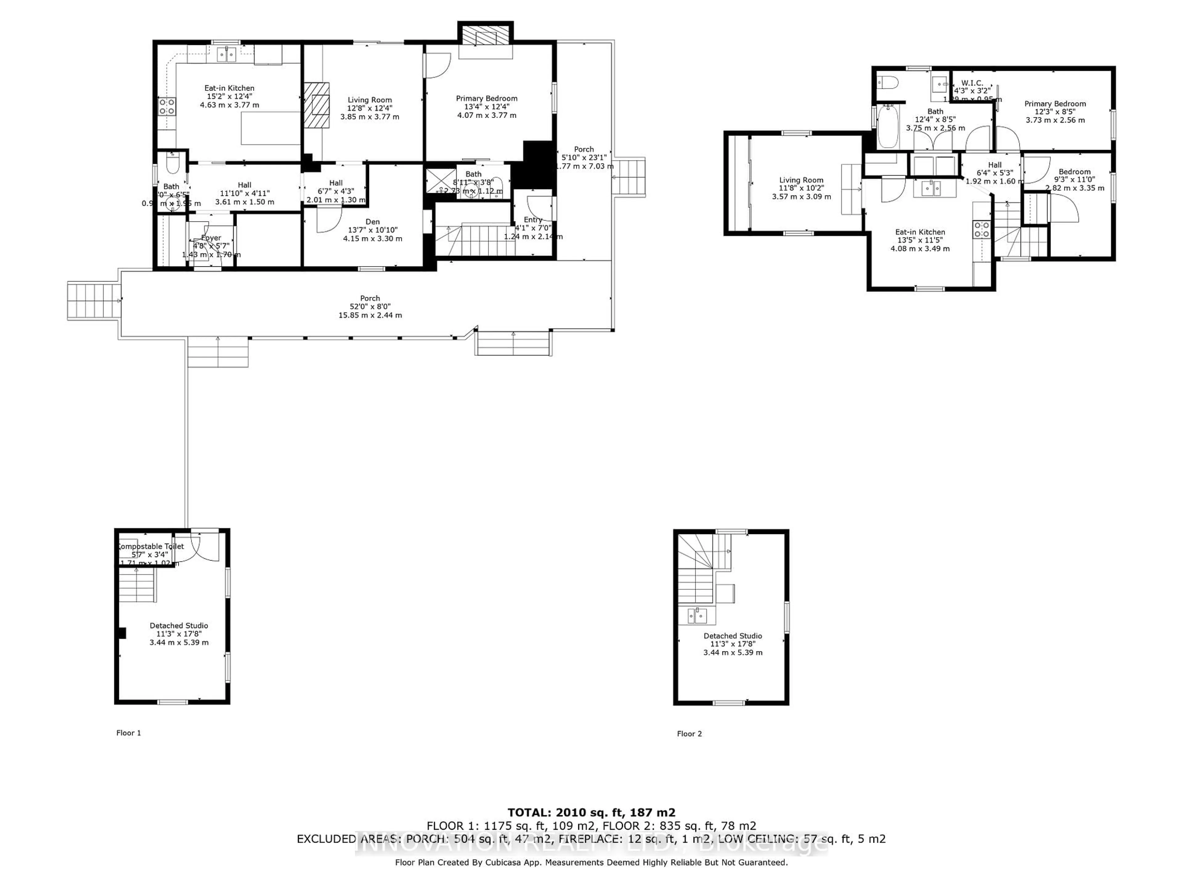
Welcome to 348 Donald B Munro Dr.! This non-conforming Duplex is a beautiful Victorian Brick home filled with character and charm located in the quaint Village of Carp with a bonus detached studio/flex space. Main level unit is currently being rented for $2,200/m and the upper unit is currently being rented for $2,000/m and the detached studio/flex space is currently being rented at $2,260. Insurance, Utilities, Water/Sewer, Snow removal and taxes total ($12,497). This provides you with an approximate annual cash flow of ($65,022). This unique property features numerous modern updates throughout. The renovated main level unit has a welcoming layout with hardwood and ceramic flooring throughout, spacious living/dining room and modern chef-style eat-in kitchen with abundant cabinetry, granite countertops and stainless-steel appliances. The one-bedroom + den features plenty of closet space with easy access to a fully renovated bathroom. Main Floor powder room & Laundry room. The second level unit is equally beautiful and mimics the lower level with a spacious living/dining room and modern chef-style eat in kitchen. 2 sun-filled bedrooms and plenty of closet space with easy access to a fully renovated bathroom. Second Floor Laundry. This property offers numerous options: great for investment, as a single-family home, or with the potential for a home-based business or a teenage retreat. This incredible property is zoned V1M and is situated in a great community, close to schools, indoor arena, outdoor rink, Medical Centre, Farmers Market, tennis courts, restaurants, coffee shops and bakeries. Also ideal for the outdoor enthusiasts, nature lovers and golfers and within proximity to Trails, Ottawa River, Boating, Fishing, Irish Hills Golf and Country Club and so much more!
Property Details
Interior
Features
Main Floor
Foyer
1.43 x 1.7Living
3.85 x 3.77Fireplace
Kitchen
4.63 x 3.77Den
4.15 x 3.3Exterior
Parking
Garage spaces -
Garage type -
Total parking spaces 5
Property History
47























