129 Wellbrook Ave, Welland, Ontario L3C 7M8
Contact us about this property
Highlights
Estimated valueThis is the price Wahi expects this property to sell for.
The calculation is powered by our Instant Home Value Estimate, which uses current market and property price trends to estimate your home’s value with a 90% accuracy rate.Not available
Price/Sqft$510/sqft
Monthly cost
Open Calculator
Description
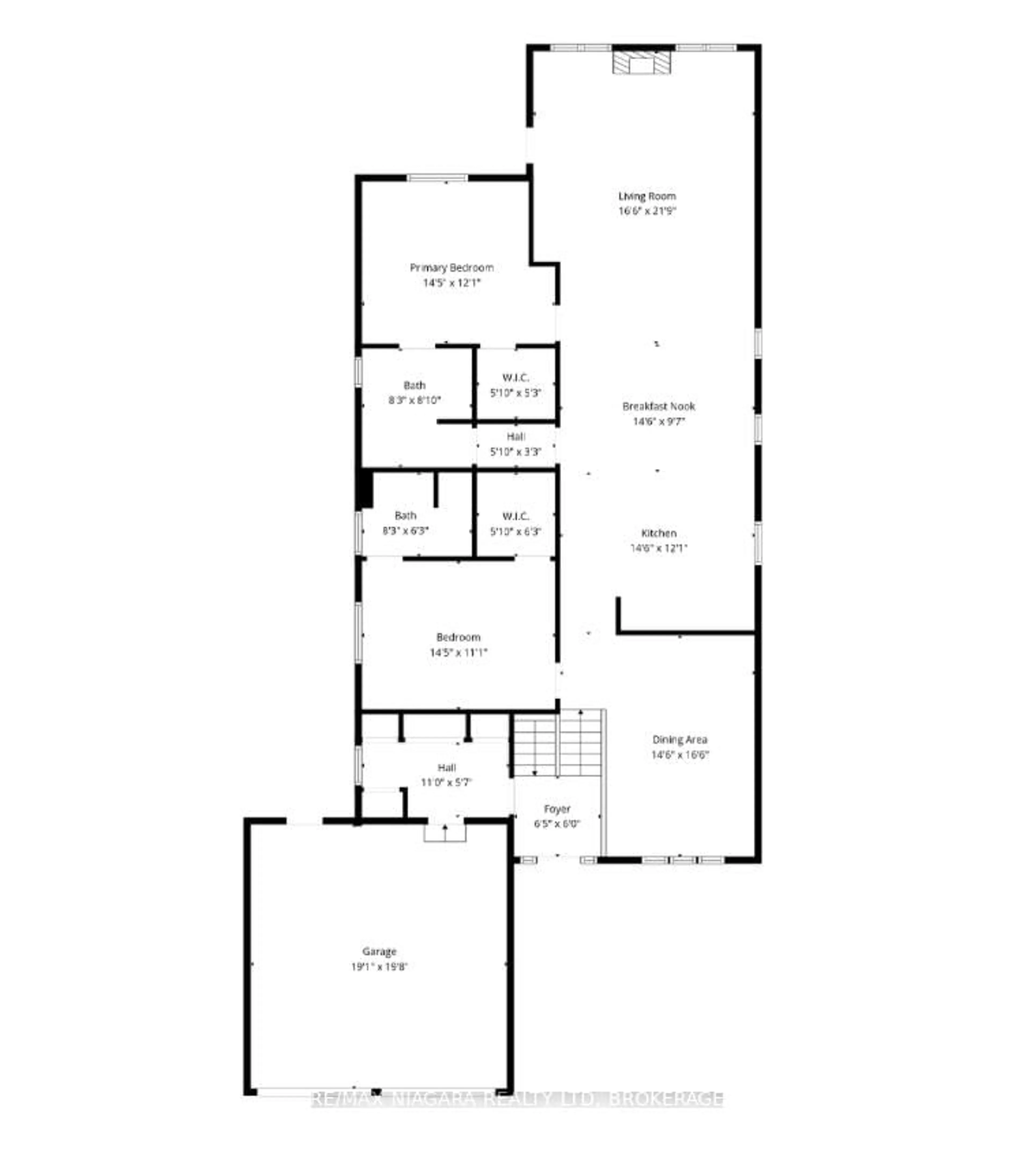
Oversized raised bungalow offering an exceptional layout and an abundance of sought-after features, designed for comfortable living and effortless entertaining. From the moment you arrive at 129 Wellbrook Blvd, the exposed aggregate concrete driveway and modern stucco façade create striking curb appeal. Inside, a versatile formal living or dining space highlighted by soaring cathedral ceilings and a large picture window that fills the home with natural light await. The bright, spacious kitchen features crisp white cabinetry, granite countertops, and a generous island, perfect for gatherings, overlooking both an additional dining area and a cozy family room with a gas fireplace. A walkout from this level leads to an upper deck with views of the beautifully landscaped backyard. The main floor is completed by a private primary retreat with a 3-piece ensuite and large walk-in closet, along with a second bedroom offering ensuite privileges to a 4-piece bath and its own walk-in closet. The lower level showcases why ravine lots with walkout basements are so highly sought after. This bright and inviting space offers oversized windows, a glass patio door leading to a covered concrete patio, and a family room that truly feels like an extension of the main floor. Three additional well-sized bedrooms, a 4-piece bathroom, and a generous utility/storage room provide ample space for growing families and seasonal storage. The backyard is a true highlight, featuring custom aggregate pathways, a two-tiered deck with multiple seating areas, and plenty of room to host family and friends while enjoying the outdoors. Additional features include an attached double-car garage, fresh landscaping, and a prime location close to schools, parks, golf courses, and some of Welland's most desirable neighbourhoods. A rare opportunity, come see it for yourself before it's sold.
Property Details
Interior
Features
Main Floor
Bathroom
2.52 x 1.923 Pc Ensuite
Foyer
1.98 x 1.82Dining
4.45 x 5.05Primary
4.41 x 3.38Exterior
Features
Parking
Garage spaces 2
Garage type Attached
Other parking spaces 4
Total parking spaces 6
Property History
49














