485 Salisbury St, London East, Ontario N5Y 3B4
Contact us about this property
Highlights
Estimated valueThis is the price Wahi expects this property to sell for.
The calculation is powered by our Instant Home Value Estimate, which uses current market and property price trends to estimate your home’s value with a 90% accuracy rate.Not available
Price/Sqft$583/sqft
Monthly cost
Open Calculator
Description
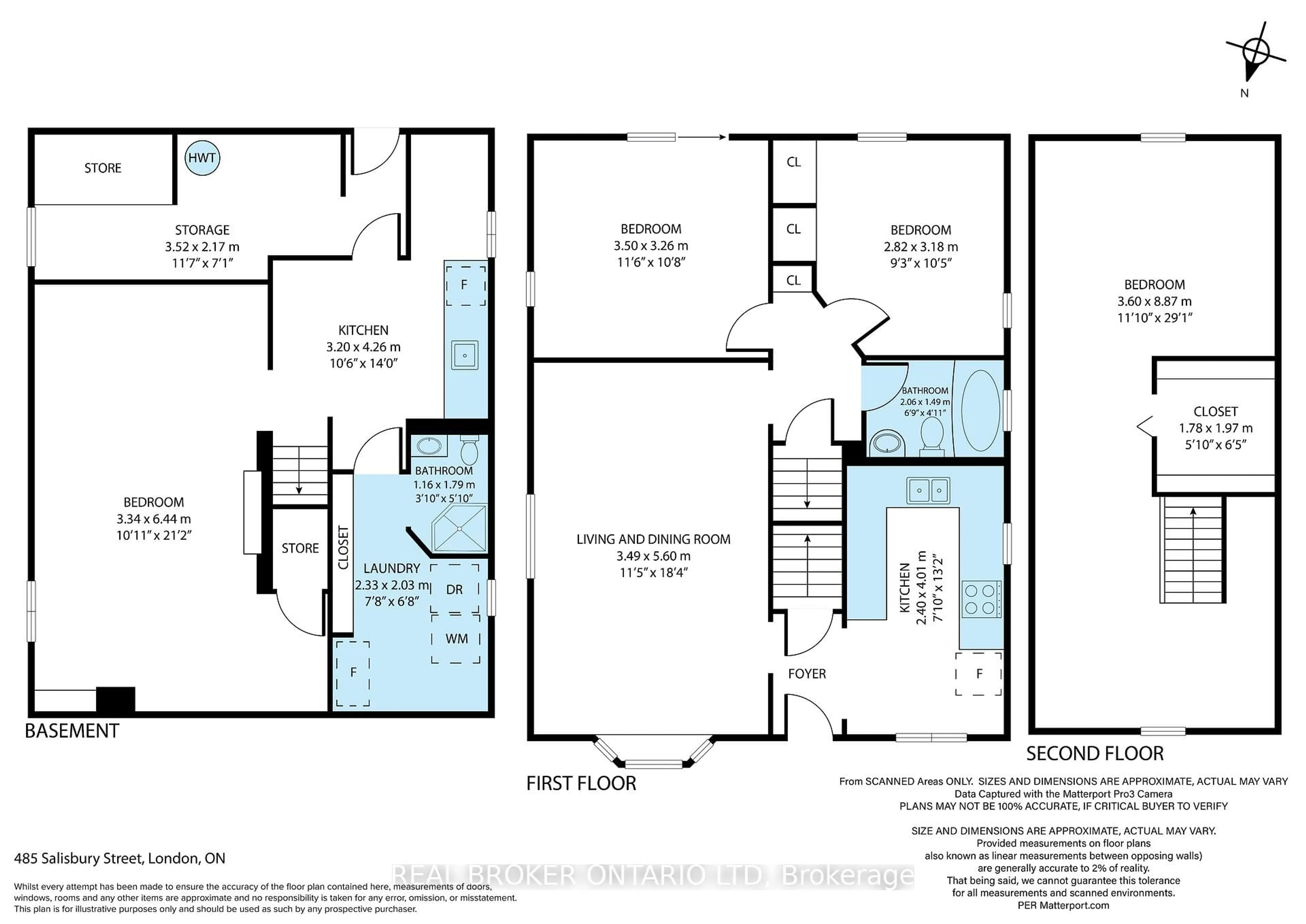
485 Salisbury St. is a home that offers more than you might expect, tucked into a convenient pocket between Old East Village and Carling Heights. This 1.5 storey property has great character, solid updates, and a layout that gives you some real flexibility. The main floor features two bedrooms, a nicely updated bathroom, and an updated kitchen that works well day-to-day while still keeping some personality. Upstairs, the finished loft has been turned into a primary retreat with a walk-in closet, something you don't always find in a home like this. The lower level adds even more options with a studio-style setup, including a separate entrance, kitchen, bathroom, and shared laundry at the back. It works well for extended family, guests, or anyone thinking about extra income potential. Outside, the backyard is a treat. The garage has been converted into an insulated usable space, great for a home based business, workshop, art studio, or just a place to hang out. The yard itself is set up for anyone who enjoys gardening, with a low maintenance pond, mature landscaping, and a covered patio just off the main floor bedroom. You're close to Fanshawe College, can walk to the Western Fair Farmers' Market on weekends, and have easy access to downtown and Highbury for getting around the city. A solid option in a convenient, growing part of London.
Property Details
Interior
Features
Main Floor
Kitchen
4.01 x 2.42nd Br
3.5 x 3.263rd Br
3.18 x 2.82Living
5.6 x 3.49Combined W/Dining
Exterior
Features
Parking
Garage spaces -
Garage type -
Total parking spaces 4
Property History
37























