32 Deerview Dr, Ingleside, Ontario K8V 5P4
Contact us about this property
Highlights
Estimated valueThis is the price Wahi expects this property to sell for.
The calculation is powered by our Instant Home Value Estimate, which uses current market and property price trends to estimate your home’s value with a 90% accuracy rate.Not available
Price/Sqft$523/sqft
Monthly cost
Open Calculator
Description
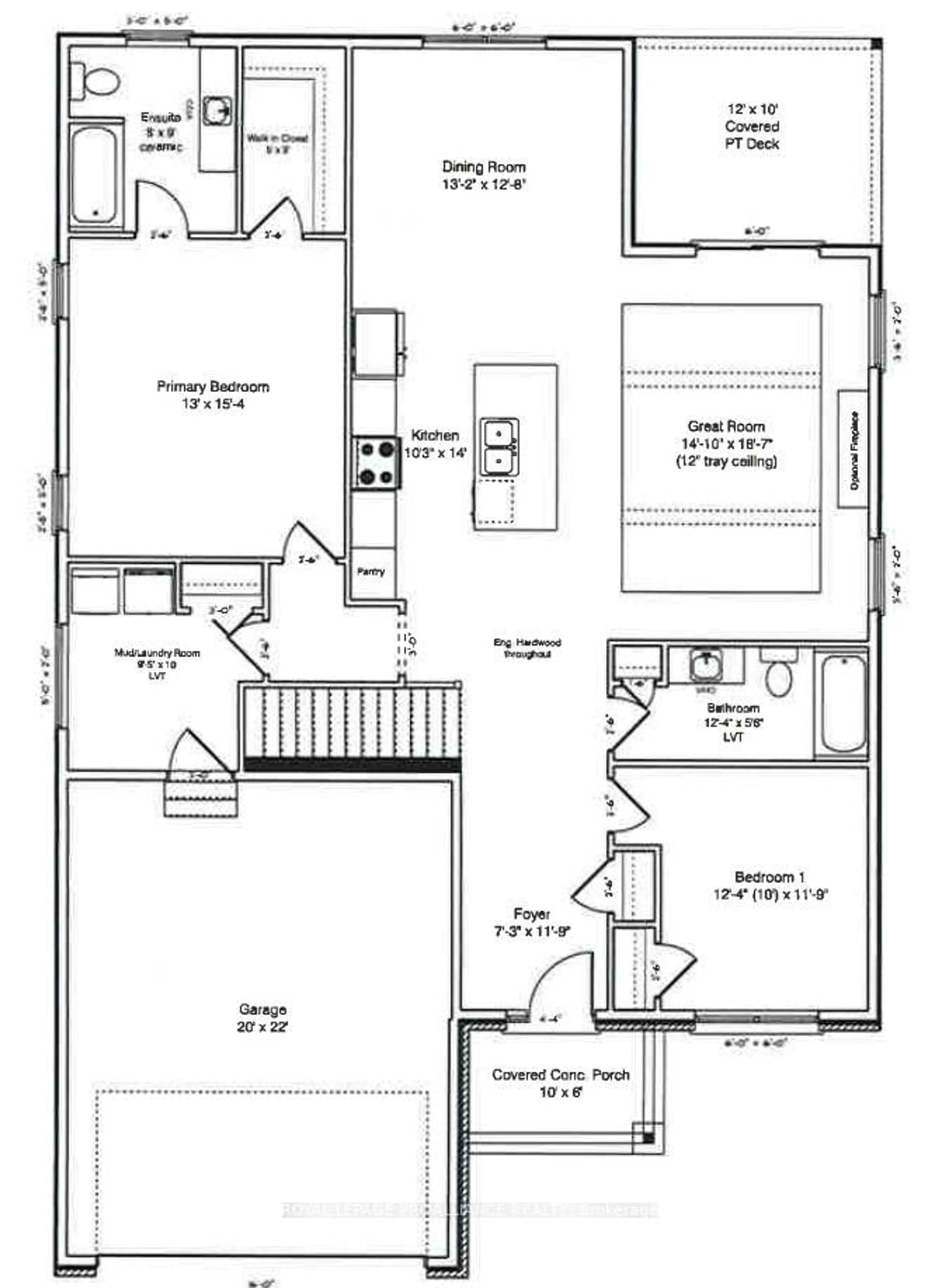
Discover the perfect combination of comfort and style with this custom home by Van Huizen Homes, located in the desirable Woodland Heights community. The spacious primary bedroom includes a 4 piece ensuite and a large walk-in closet. A second bedroom and bathroom on the main level adds added convenience. The open-concept living area is ideal for both relaxing and entertaining, featuring a living room with a tray ceiling and charming beam details that bring warmth and character to the space. The kitchen is equipped with a generous size island with quartz countertops, ensuring plenty of storage and prep space for all your essentials. The mud and laundry room is thoughtfully located with direct access to the attached two-car garage, making day-to-day living a breeze. Enjoy outdoor living with a covered rear deck measuring 10' x 12', perfect for dining or simply unwinding. For those looking to expand their living space, the basement can be finished at an additional cost, adding two more bedrooms, a third bathroom, and a recreation room - creating a perfect retreat for family or guests. Visit the model home at 37 Deerview Drive to explore how Van Huizen Homes can help bring your dream home to life! This new construction home does qualify for the new HST Rebate, with an after rebate value of $814,601.77!!
Property Details
Interior
Features
Main Floor
2nd Br
3.78 x 3.63Kitchen
3.14 x 4.27Mudroom
2.71 x 3.05Primary
3.96 x 4.69Exterior
Features
Parking
Garage spaces 2
Garage type Attached
Other parking spaces 4
Total parking spaces 6
Property History
3


















