28 Deerview Dr, Ingleside, Ontario K8V 5P4
Contact us about this property
Highlights
Estimated valueThis is the price Wahi expects this property to sell for.
The calculation is powered by our Instant Home Value Estimate, which uses current market and property price trends to estimate your home’s value with a 90% accuracy rate.Not available
Price/Sqft$530/sqft
Monthly cost
Open Calculator
Description
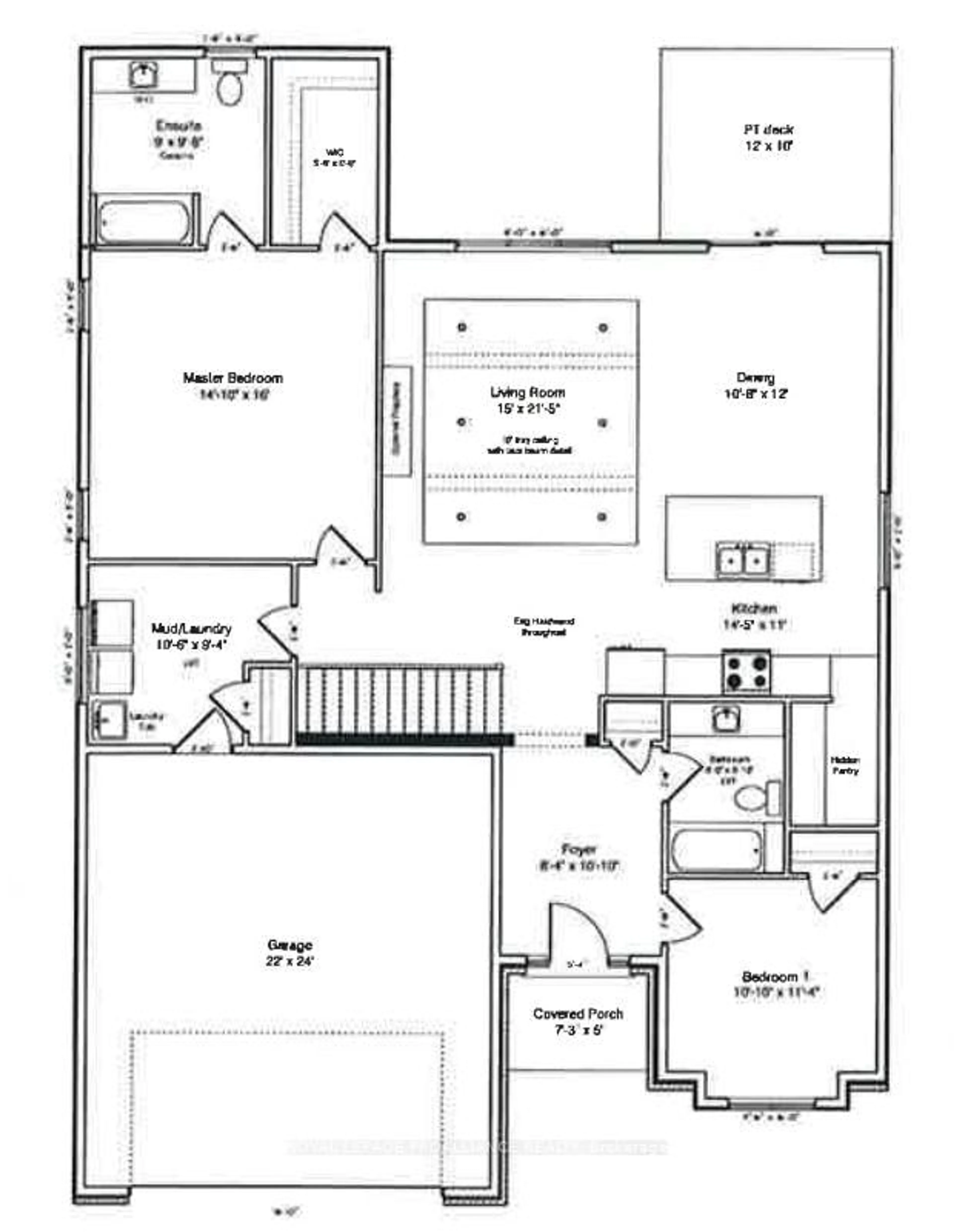
Customize your next home with Van Huizen Homes in the new community of Woodland Heights! This beautifully designed model features 2 spacious bedrooms on the main floor, plus two 4 piece baths. The primary bedroom also boasts a large walk-in closet, offering plenty of storage. The open-concept living area is perfect for entertaining and includes a stunning tray ceiling in the living room that adds a touch of elegance. The kitchen is equipped with custom cabinetry and quartz countertops. Convenience is key with a mud and laundry room just off the attached two-car garage, offering an ideal space for coats, shoes, and other items. Step outside to the 10' x 12' rear deck, perfect for enjoying the outdoors or for that perfect BBQ. For those who need more space, the basement can be finished at an additional cost, adding two more bedrooms, a third bathroom, a recreation room, creating the ultimate space for relaxation and entertainment. Visit the model home at 37 Deerview Drive and experience the quality craftsmanship and thoughtful design for yourself! This new construction home does qualify for the new HST Rebate, with an after rebate value of $826,106.19!!
Property Details
Interior
Features
Main Floor
Living
4.57 x 6.55Dining
3.29 x 3.66Bathroom
2.74 x 2.994 Pc Ensuite
Mudroom
3.32 x 2.87Exterior
Features
Parking
Garage spaces 2
Garage type Attached
Other parking spaces 4
Total parking spaces 6
Property History
3





















