120 EAST 43RD St, Hamilton, Ontario L8T 3B9
Contact us about this property
Highlights
Estimated valueThis is the price Wahi expects this property to sell for.
The calculation is powered by our Instant Home Value Estimate, which uses current market and property price trends to estimate your home’s value with a 90% accuracy rate.Not available
Price/Sqft$789/sqft
Monthly cost
Open Calculator
Description
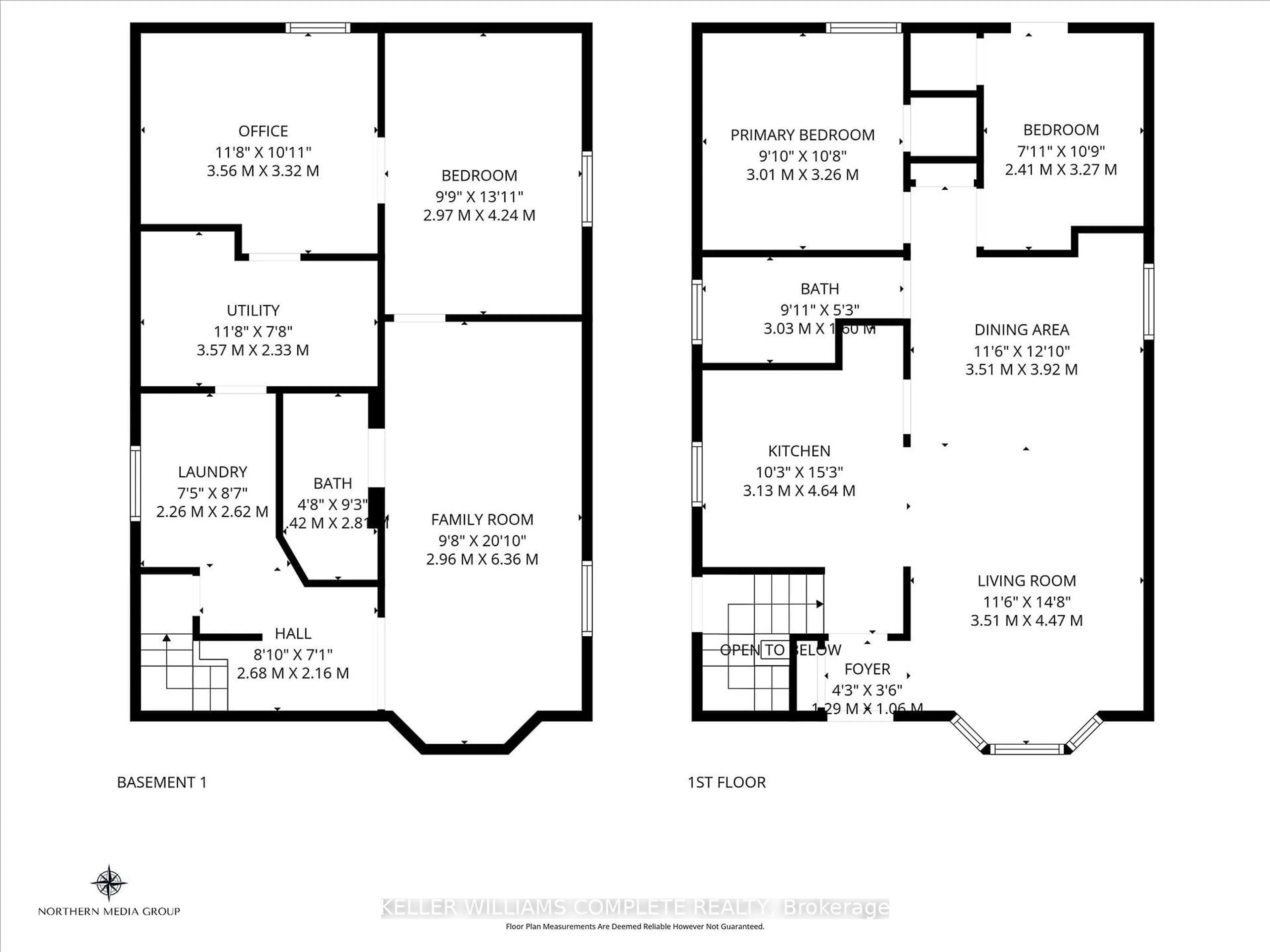
Welcome to 120 East 43rd Street, a thoughtfully updated bungalow located in a well-established, friendly Hamilton neighbourhood. This inviting property blends classic character with modern improvements, beginning with an updated (2024) bright, two-tone white and grey kitchen finished with quartz countertops and plenty of storage. Original stained hardwood floors extend throughout the main level, adding warmth and timeless appeal, while the recently renovated main floor bathroom offers a clean, refreshed feel. The main level includes two comfortable bedrooms, along with an open living and dining space featuring a breakfast bar that opens the space into the kitchen. The finished basement, with a separate entrance, offers a large family room, third bedroom, a dedicated office or storage room, and a second three-piece bathroom. This flexible lower level works well for guests, in-law/income potential, or a convenient work-from-home setup. Additional features include newer vinyl windows throughout, a 1.5-car detached garage, and a long interlock driveway with a gated entrance that provides both privacy and ample parking. With two full three-piece bathrooms and a well-planned layout across all levels, this home is move-in ready and well suited to a variety of lifestyles.
Property Details
Interior
Features
Main Floor
Living
6.76 x 3.68Kitchen
3.84 x 3.1Bathroom
3.12 x 1.53 Pc Bath
Br
3.1 x 2.64Exterior
Features
Parking
Garage spaces 1.5
Garage type Detached
Other parking spaces 3
Total parking spaces 4
Property History
31


























