Contact us about this property
Highlights
Estimated valueThis is the price Wahi expects this property to sell for.
The calculation is powered by our Instant Home Value Estimate, which uses current market and property price trends to estimate your home’s value with a 90% accuracy rate.Not available
Price/Sqft$454/sqft
Monthly cost
Open Calculator
Description
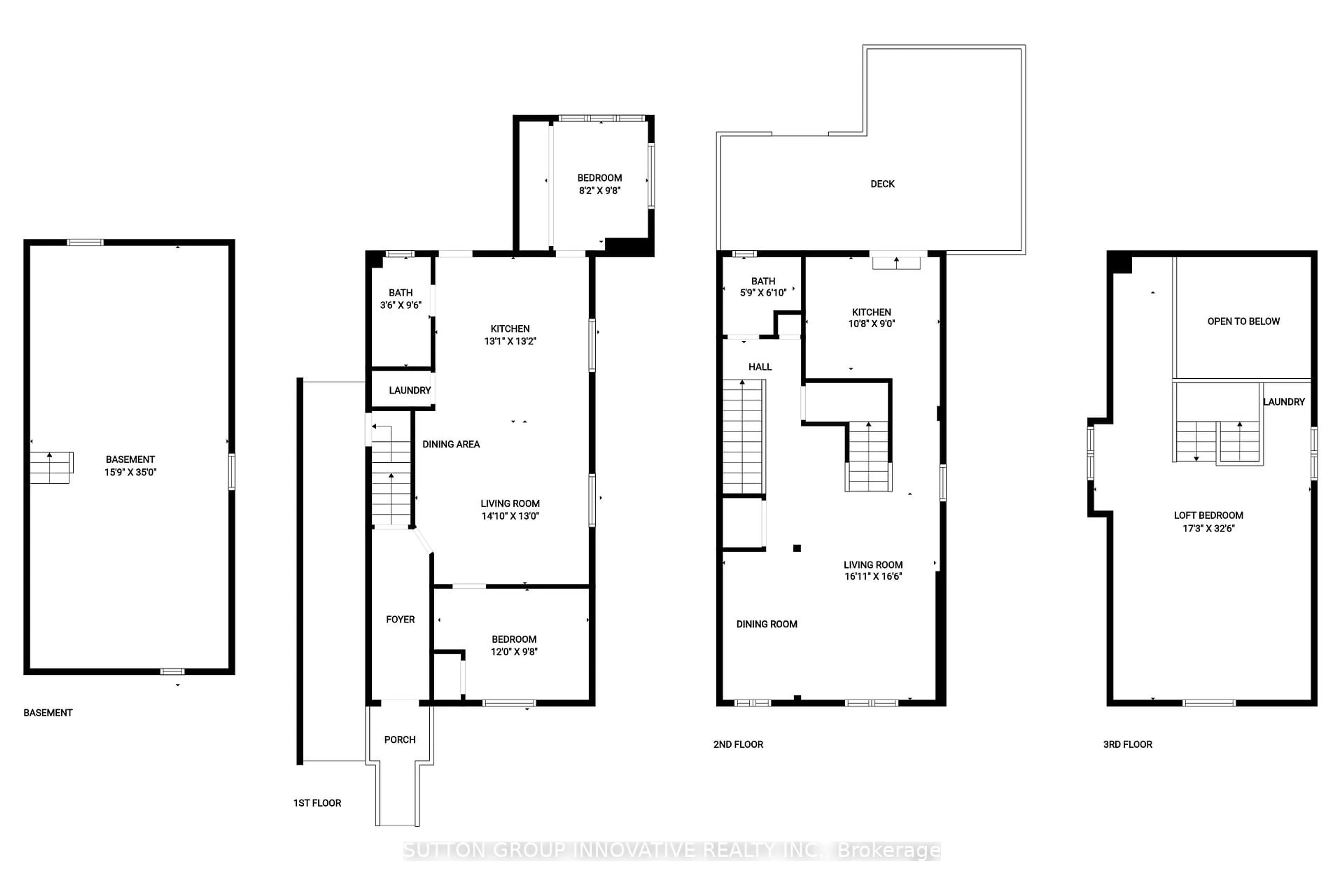
Two family home set up with separate entrances and separate hydro, offering flexibility for investors or buyers looking to live in one unit and use the other for extended family or income potential.Main floor unit is currently rented and features 2 bedrooms, open-concept kitchen with eating area and living room, 3-piece bathroom, and in-unit laundry. 9.5 ft ceilings and tall windows add to the sense of space, and the kitchen offers a walk out to the backyard deck. Upper unit spans the second and third floors with open-concept kitchen, dining, and living area. The 2nd floor kitchen features exposed wood beams and walks out to a generous deck with fire escape. Third-floor loft features a spacious primary bedroom with vaulted ceiling, exposed beams, heat pump for heating and cooling, and laundry.Updated flooring, freshly painted, and tasteful lighting fixtures throughout. Furnace and water heater approximately 4 years old. Unfinished basement.Double detached garage off alley plus 2-car interlocking driveway at the front. Ample green space in fully fenced backyard.Located in West Hamilton on a family-friendly street, just minutes to Locke Street shops, restaurants, and cafés, Dundurn Castle, the waterfront, and McMaster University, with convenient access to transit and major routes.
Property Details
Interior
Features
Main Floor
Kitchen
3.99 x 4.01Breakfast Bar / Walk-Out / Combined W/Laundry
Living
3.3 x 3.96carpet free / Open Concept
Br
3.0 x 3.66Carpet Free
2nd Br
2.95 x 2.54Carpet Free
Exterior
Features
Parking
Garage spaces 2
Garage type Detached
Other parking spaces 2
Total parking spaces 4
Property History
49


























